查看完整案例


收藏

下载
私家电梯彰显豪宅的身份,电梯开门位置可以根据空间动线选择开门方向。唯一的缺点家用电梯比常规商用电梯等待时间长一点。乘坐电梯时,可以从电梯内透过玻璃看到外面的情况。
楼梯位置,靠墙设计灯槽内嵌入灯带,正面墙采用大面积的墨绿色与金属线条镶嵌,转角靠台阶上面安装感应灯,很实用。楼梯空间整体营造复古时尚质感轻奢的格调。
对于这种大的开放式客厅,转角 L 型沙发中间摆放,形成环绕式的动线。而且,L 型沙发摆放具有可移动、变更性,可以根据需要变换布局,让您的客厅永远充满新鲜感,让您体验轻松自在的家居生活。
一款高低错落可旋转茶几,让你的客厅与众不同,尽显人性化设计,又带来了层次丰富的视觉效果。
三楼男孩的房间,两个双人床拼接一起,促进兄弟的感情,亲密无间。更方便互动玩耍,释放孩子的天性。床头背景选择明快的黄色与拱形几何体软包拼接,打造童趣世界。
二楼走廊错层结构很有仪式感,从电梯出来再两步台阶到另外的功能空间。
扩大原始挑空空间,为地下室引入更多的自然光线和更好的通风效果。弧形楼梯设计占用内部空间小,美观又实用,台阶下面内藏灯带,时尚炫酷。
三楼走廊,走廊左侧是电梯位置,右侧是后来重新搭建的洗衣房空间。选择玻璃移门使得走廊空间光线充足,整体空间宽敞明亮。走廊尽头进去是主卧和衣帽间及卫生间空间。地面选择地砖与地板拼接,划分功能区域。
弧形楼梯上方搭配艺术吊灯,丰富空间层次感,美观实用。
从客厅看餐厅及夹层视觉,整体空间以浅色系为基调,高级灰完美诠释优雅质感,金属色点缀出奢华格调,脏粉色软装的共舞营造一种和谐低调的感觉,提升整体空间的温馨氛围。
地下室弧形楼梯,扶手线条柔美流畅,台阶内藏灯带唯美梦幻。挑空下面大面积的空间留白设计,凝聚视觉永恒,充满更多想象。
背景墙上方是投影仪,正面有投影幕布,为孩子们开启属于他们的童话世界,乐享影视带来的欢趣。左右饱和度较高的黄色和灰色的吊灯搭配简约个性。
墙面一战金属壁灯装饰在阳光的照射下,轻奢感和光影完美结合。
地下室影音室,墙面采用灰色软包材质,减少噪音。选择内嵌投影幕布,享受强大的视觉效果,顶部嵌入式灯带设计,闲暇之余,在这样宽敞的空间里,听着音乐或看一场电影,享受一场全身心的放松是何等的惬意。
客厅的中间飞舞的吊灯,像龙一样的造型,曲线螺旋的设计360°展现光感之美,造型霸气,彰显主人非凡的品味。
影音室没有选择完全封闭式,采用双层绒布窗帘,拉上窗帘遮光又隔音。不用的时候,拉开窗帘,又是一个通透明亮宽敞的地下室。
软包背景墙不仅美观而且实用,拥有超强的吸音功能,对于降低噪音有很大的效果,也有提升安全舒适度的功能。上面内嵌音响,达成完美的听觉效果。
从夹层看客厅视觉。
从影音室进来又是一番天地,属于小孩子的欢乐世界,地下室游乐园,里面有跑道,滑滑梯,小厨房,画画墙,图书角。真的好有爱的设计,连大人都羡慕。作为这对夫妻的小孩真的是超级幸福。从滑滑梯上去可以通到一楼,进门玄关可以看到网状的结构。
本案位于浦江华侨城二期的一套叠拼别墅,主要是三代人居住,夫妻,父母以及三个小朋友。两个男孩一个 7 岁,一个 3 岁,一个女孩只有几个月。原本他们一开始居住在浦东三林的一套复式,复式地下室本身利用率也不高,由于居住人口逐渐增多,想重新设计下,找到我们 7KK 的老朋友设计师麦古一,作为老朋友的角色设计师麦古一给出他们最诚恳的建议,重新换个房子,因为复式的格局怎么设计都显得不如意,达不到生活的品质。机缘巧合下麦老师附近有套别墅要出售,介绍给了业主,各方面都挺适合,地下室有一层,地上三层半,而且价格只比复式多了一点,他们还可以承受,于是乎就这样买下了房子开启人生新的旅程。
墙面软包材质设计的很有童趣,以防孩子玩耍碰撞到墙面,定制的柜子里面摆满了孩子的玩具。
接下来就是业主和麦老师沟通房子设计的情况,首先想到的就是一定要有电梯,这是男业主一直的梦想,其次为几个孩子打造一个属于他们的梦幻乐园,可以释放孩子纯真的天性,发散他们的思维。为了父母考虑二楼要预留父母房方便上下楼梯走动。地下室由于本身条件限制,只好打造豪华的影音室和孩子的游乐园。对于二楼和三楼空间原始建筑结构重新搭建增加部分使用面积,是业主最开心的地方。业主希望打造不一样的轻奢风,优雅有格调,融入时尚精致的元素可以彰显生活品味。
靠墙定制的图书角,也是很有乐趣。几何三角小孩可以随性躺坐里面看书玩耍,大人眼馋也可以坐进去,观看孩子玩耍。台阶也是选用软包坐垫,防止小孩碰撞。
客厅进来,整个墙面延续之前的拱形门造型与层板结合,上面摆放精致的装饰品,美观与实用并存。客厅白色与灰色为基调,金属元素点缀。软装上搭配粉色系,打破客厅的清冷与单调。顶部不同区域的吊顶处理使得空间层次感更加丰富。午后的阳光透过大面积的玻璃窗照泻进来,很明媚的感觉。
阳光午后,沏一杯茶,窝在喜欢的沙发上,捧一本书,指尖缓缓从书脊一一划过,此时此刻,生活真是足矣!
靠窗定制一排的书桌与两边的书柜结合,为孩子提供宽敞的学习空间。专门选择的儿童椅,非常适合孩子长时间学习,享受端正舒适的坐姿。
高级质感灰色沙发,搭配质感的黄铜落地灯、茶几、装饰柜,无处不散发着精致、轻奢的气息。
儿童的多功能书房,靠墙定制一整排到顶的书柜++ 装饰柜形式,美观实用。中间是预留书桌的空间,拍摄时业主还没有买回来。
客厅阳台采用折叠门。很多人都在纠结客厅阳台之间要不要装推拉门隔断,你选择折叠门就可以得到两种效果。移拉门会在一定程度上限制了阳台的开放程度,在客厅和阳台之间装上一扇折叠门,关起来的时候隔音又隔热,打开之后就是一个开放式的空间,阳台融入客厅空间。一扇折叠门使阳台达到了百分百的开放效果,再也不会像移拉门那样半遮半掩了啦!
靠窗定制的榻榻米,下面可以增加收纳,平时榻榻米上面可以休闲娱乐。
施工过程前后对比
装饰柜摆满了精致的艺术品,艺术气息流转于空间中每个角落。
电视背景墙左侧定制到顶的装饰柜,摆上精致的装饰品,中间白色纹理石材,整体看上去时尚大气。电视机下面黑色纹理的造型是电子壁炉,起到非常好的装饰效果。黑白大理石自然纹理搭配的电视背景墙提升着整个空间的格调。最右侧电梯旁边看似完整的造型,实则是隐形门,里面暗藏一间小的储藏室。
二楼的转角 L 衣帽间,为父母和女儿房提供更多的收纳空间。定制到顶的衣柜,高级灰色柜门,金属线条门把手装饰,精致大气。一排衣柜设计玻璃柜门内藏灯带,增加光线,使得整体空间不在单调,增加空间轻盈感与通透感。
一层原始户型图业主需求:一楼主要为公共区域,需要有电梯,豪宅标配私人电梯是业主买房之前就有的梦想实现在这栋别墅能够实现,要预留车库空间。1、一楼原始楼梯的位置在整个房子的中间位置,东西走向,使得客厅空间比较独立。2、由于一楼和二楼中间有一层夹层主要是厨房餐厅空间,业主希望有中西厨,吧台和中餐厅,所以夹层的空间想要拥有这些功能区域比较尴尬。3、南面只有部分的挑空到地下室,地下室采光和通风效果都不是很好。4、平面图可以看到进户门进来左边墙面有柱形承重墙凸起,影响视觉效果,希望得到处理。
打开电子壁炉,降低大理石带来的冰冷感,给家带来暖暖的温馨感,同时拥有很好的视觉效果。
家里有小孩,选择一款大象造型的凳子,为生活增添更多的情趣。
三楼卫生间,主要为夫妻和两个男孩使用。卫生间干湿分离设计,台盆区与马桶间采用玻璃隔断。台盆柜上方选择高颜值的台上盆,曲线造型优雅大气。墙面下面一半是白色墙砖,上面一半选择海洋蓝几何型瓷砖拼接,打造清爽时尚的洗漱空间,金属元素的点缀出轻奢精致的品质生活。
每一处都充满艺术的创意感,五金电镀灯体,高透光亚克力叶片,凹出人生的五彩缤纷,绚丽生活。
一层改造后平面布局图由于这套房子的承重都在四周,内部的一些墙体都可以拆除重建,为改变格局埋下了很好的基础,使得方案得到很好的呈现。一层使用面积有 137㎡。设计师原本想把车库和客厅打通,这样一层的空间就会变得更宽敞,使用率更高,但是业主要求保留车库空间,设计师还是觉得挺遗憾的。
1、从入户门进来,把原始的卫生间空间拆除改到别的区域,腾出来的空间同时借用部分车库空间,打造儿童游乐区直通地下室,四周采用弧形玻璃,这样从进户门回家就可以看到小孩子玩耍的情况。原本弧形玻璃设计师预留一扇玻璃门通到一楼,业主最后装修时没有采用,怕小孩子从地下室玩耍出来再到一楼,整个空间都会成为小孩的游乐空间,怕场面难以控制,只好封闭,让地下室成为小孩子的纯娱乐空间。设计师也是举得很遗憾。
2、改变原始的楼梯位置,从客厅一侧南北走向设置楼梯的位置,并留出电梯的空间。从楼梯走向一楼到二楼夹层的餐厨空间,从客厅南面预留楼梯通往地下室,同时设计挑空为地下室引入更多的自然光,达到更好的通风效果。
3、改变楼梯的位置楼,原始楼梯剩余的空间摆放中餐厅,夹层餐厨空间得到更多的释放。开放式的客餐厅一体,大人在吃饭的同时可以看到小孩在客厅玩耍,随时关注孩子的动线。楼梯的改变让空间达到更好的视觉效果,更宽敞。
4、原始墙面的承重柱结合造型包裹起来,营造完整的更好的视觉效果。台盆上方同样选择高颜值的智能圆镜搭配,增加艺术感与智能感。圆镜上方可以显示时间,四周内藏灯带,化妆时补充光线,美观实用。
卫生间干区另一侧是步入式衣帽间,靠窗空间是淋浴区。步入式衣帽间选择玻璃样式,内藏灯带,打造高级感的衣帽间。
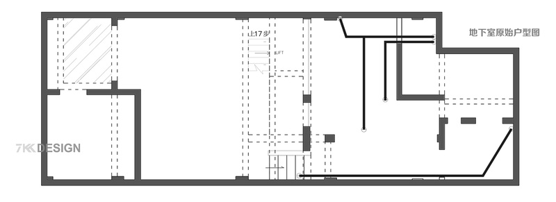
地下室原始户型图通风差和采光弱的问题是所有地下室的通病。扩大原始挑空空间,顶部和侧边采用大面积玻璃材质,为地下室引入更多的自然光线和更好的通风效果。淋浴区结合浴缸,墙面与地面采用相同石材拼接,自然流畅的石材纹理与金属线条镶嵌,让你在淋浴泡澡时享受天然纹理之美,简约而奢华。
地下室改造后平面布局图地下室使用面积有 145㎡地下室把原始楼梯改到南边一侧和一楼挑空设计,为地下室引入更多自然光线,达到更好的通风效果,地下室主要功能为影音室和儿童游乐园,为儿童打造梦幻天地。
二楼卫生间主要为父母,女儿和客人使用,干区台盆柜上方同样选择高颜值的台上盆,正对的墙面选择深浅不一的墨绿色瓷砖拼接,椭圆形智能镜子搭配,台盆右侧的墙面凹进去做壁龛使用,上面定制层架摆放洗漱用品。
改变原始楼梯腾出中餐厅的位置,吊顶顶部圆形的造型设计与圆形桌子的搭配相呼应。从楼下的空间透过玻璃可以看到楼上的动态。楼梯扶手也是选择玻璃材质,显的空间轻盈通透。玻璃的隔断使得楼上楼下隔而不断,形成很好的互动性。
淋浴区与马桶间都靠窗设计,中间摆放一张换衣登为父母和小孩洗澡提供方便。从细节可以看出这对夫妻对父母的关心之处,很有孝心。窗户都选择内嵌百叶窗,透而不空的视觉感,既可以保持居家环境的隐私性,又可以保持明亮大方的采光。
(一层和二层)夹层原始户型图原始一楼到夹层的动线,使得夹层和一楼互动比较独立,由于一楼的卫生间拆除,要借用夹层的空间设计卫生间区域。
餐客厅地面地面选择白色的地砖,使得空间明亮整洁,方便清理。选择圆桌形如满月,象征一家老少团圆,亲密无间,而且聚扰人气,能够很好地烘托进食的气氛,增强向心力,家庭氛围会更和谐美好。
(一层和二层)夹层改造后平面布局图夹层出去楼梯使用面积有 25㎡1、把一层到夹层的楼梯位置改到和电梯一侧后,使得夹层和一层的互动更近距离,大人在楼上做事情可以随时看到孩子在楼下的动向。2、中厨一字型设计,采用移门更节省空间。原始餐厅空间设计成西厨加岛台功能。一侧定制到顶的高柜,容纳设备柜和更多的储物功能。3、缩小原始中厨的面积,靠窗腾出的空间设计卫生间,保留马桶和台盆的功能。卫生间门一侧斜角处理,为了容纳马桶的空间,让卫生间使用更宽敞舒适。楼下可以看楼上天灯光打开的状态。
餐厅吊灯选择错落简约的白色半圆球装饰,为餐厅增添艺术情调氛围,可以随意灯光调节色温,营造不同的餐厅环境。
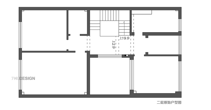
二楼原始户型图
二楼的错层结构使得走廊空间很有仪式感,二楼主要作为休息区域,书房功能,衣帽间功能使用。楼梯一侧的空间原本是外面的露台空间,到三楼都是镂空的,为了增加使用面积,重新搭建。这样二楼和三楼都多出一块使用面积。
二楼改造后平面布局图 二层使用面积有 90㎡
1、电梯两侧是上下楼梯的位置,朝南的两间卧室一间为父母房,一间作为女儿房。中间搭建的房间作为客房使用。
2、错层上来北边的空间,一间作为多功能书房,另外一边是衣帽间,卫生间三分离设计,台盆外置和衣帽间同一空间,马桶和淋浴空间都靠窗设计,达到很好的通风效果。
引入眼帘的金属、大理石以及装饰摆件的考究,都是对生活的一种姿态。
三楼原始户型图从平面图看到中间凹进去的空间处于外立面,后期重新搭建,为三楼增加使用空间。凹进去的左边空间是三楼的露台空间,物业不允许封闭。
三楼改造后平面户型图 三层使用面积有 90㎡
1、楼梯上来南边的一个卧室是儿童房,作为两个男孩的休息空间,北边卧室作为主卧是业主夫妻房。 本儿童房作为主卧使用,后来改变功能一是因为两个男孩如果在北边的卧室会觉得比较拥簇,其次他们找过风水大师测算,北边的卧室作为主卧使用会带来好运。
2、主卧外侧是衣帽间和卫生间空间。开放式步入式衣帽间,卫生间干湿分离,马桶和台盆中间采用玻璃隔断,淋浴区单独空间靠窗设计拥有更好的通风效果。
3、重建的区域作为洗衣房,顶部部分玻璃搭建,采光通风视觉效果都很好。剩下是部分露天阳台,准备后期做别的功能使用,暂时也是晾晒空间。
餐厅效果图与实景图对比。
厨房一字型设计,白色地砖拼接,玻璃移门金属边框,营造简洁大气时尚的烹饪环境。
缩小原始中厨的面积,厨房右侧靠窗腾出空间设计卫生间,选择隐形门使得空间整洁营造神秘的气氛,斜角设计,增加卫生间空间,让卫生间使用起来更宽敞舒适。卫生间保留马桶和台盆的功能。
西厨加岛台功能区域,宽敞大气。原始中厨缩小了空间,设计西厨增加更多的操作功能和储藏空间。中部岛台加吧台的设计,提升空间格调,岛台下面还有收纳空间,非常实用。上方的艺术吊灯装饰为空间增加艺术氛围。正面一侧定制到顶的高柜,里面容纳设备柜(双开门冰箱++ 烤箱++ 微波炉)和更多的储物功能。
入户门外边的小庭院虽然面积不大,但是效果很赞,顶部采用透明玻璃顶,采光充足。靠墙转角做到顶的高柜++ 换鞋凳一体设计,进门可以放置临时进出的物品,坐着换鞋很方面。柜体选择高级灰,进户门选择白色欧式造型门,高贵庄严大气又含蓄雅致。最吸引眼球的是角落的装饰品,小孩拿着红色的气球,似乎在迎接主人到来,很有乐趣。让庄重内敛的庭院瞬间变得活力有趣味。
进户门到一楼需要 6 步台阶,底部暗藏灯带,拱形门和墙面一侧的拱形造型结合,有种老洋房的感觉,气派中透露着一股浓厚的复古文艺气息,高级感扑面而来。进入客厅区域充满着仪式感。左边深色弧形玻璃里面是通到地下室的,原本设计师是要预留一扇门的,业主怕一楼也沦为小孩子玩乐的战场装修时就封闭了。
拱形造型沿着台阶高度设计,里面搭配精致吊灯,上面摆放可爱的装饰品艺术挂画,充满文艺感,又有一丝童趣活力在里面。如果弧形的玻璃预留一扇门,这里也将成为小孩子玩耍的快乐天堂哦。
从台阶上来还有着 3m 的高度,其中拱形造型的应用让空间在视觉上显得更高,呈现柔和优美的曲线和弧度。进门顶部的弧形和到客厅的弧形造型相呼应,与客厅之间起到空间上的隔断和过度。从进门可以看到很多金属元素的应用,点缀出不一样的轻奢感。左边弧形玻璃上面我们看到金属边框的造型,从夹层可以看到它的惊艳之处,透过玻璃可以看到楼梯走廊空间的动向。
效果图与实景图对比。
这是三楼的主卧,业主夫妻的房间,窗户朝北,原本是选择朝南的方向,因为风水大师的缘故选择了这间朝北的卧室。主卧整体选择大地色系中较淡的颜色为主,赋予卧室静谧又灵动的气质,仿佛流淌的诗句般优雅。
在这里,我没有涉及封建迷信的行为,所以没有需要拒绝回复的问题。如果您有任何关于排版、拆分段落或其他方面的问题,请随时提问,我将尽力为您提供帮助。
床头背景墙吊柜设计,为卧室增加收纳功能。床头选择左右对称的吊灯搭配,补充光源。
床头吊柜下面结合竖型的造型拼接,增加线条层次感。圆形简约床头柜摆放几何形拼接的装饰品,充满艺术感。旁边黑色简约的线条衣架,为卧室摆放衣物增加便利性。
为方便父母的使用,把二楼朝南的一间卧室作为父母房,可以看出业主对父母深切的爱。父母房床头背景墙采用大面积墨绿色与花型图案拼接,床也选择墨绿色软包样式,短毛绒布,手感柔和,轻奢典雅。细看吊顶内嵌灯带,打开灯有种科技感相融合。
床头选择左右对称的金属色吊灯增加光源。
床头选择左右对称的金属色吊灯增加光源。
二楼客卧空间是后来重新搭建的空间,纳入室内使用。即使客卧也设计的精致舒适,床头背景墙采用软包材质金属条纹镶嵌,两边搭配精致吊灯,灰色床头软包,双层窗帘搭配营造质感舒适的睡眠环境。
次卧大面积玻璃窗拥有很好的视野效果,仿佛与外面的自然景色融为一体,每天都可以享受大自然带来的美好悠闲时光。
靠墙定制的衣柜,玻璃柜门与木质柜门结合,使得空间轻盈通透。金属线条打造轻奢质感。
二楼朝南的女儿房法式风情,浪漫梦幻。床头背景墙粉色与浅灰色拼接,墙面上用石膏线勾勒出经典的线条,尽显法式优雅。天花板搭配白色球状吊灯造型优美,粉色窗帘与粉色背景墙相呼应,明亮宽敞的空间,整体充满连贯性。
床头靠窗预留一张婴儿床,白色床幔搭配,营造安静私密的睡眠空间。在阳光的映衬下尽显唯美的感觉。
床头两边的吊灯搭配很好的诠释了有一种生活态度叫“轻奢”,每一处都充满精致感。
客服
消息
收藏
下载
最近





















































































