查看完整案例


收藏

下载
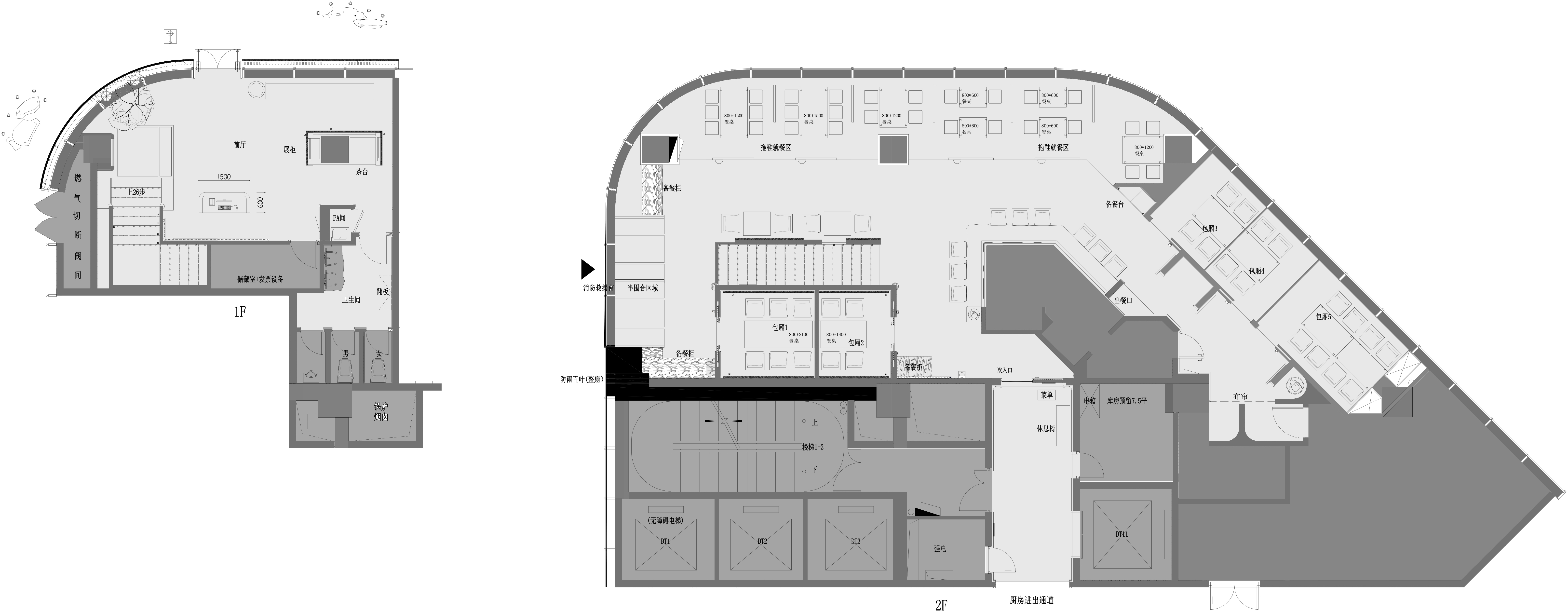
项目名称|一瓦日料
Project Name:One watt of Japanese food
项目地址|上海市奉贤区蓝湾天地
Project Address:Blue Bay World, Fengxian District, Shanghai
设计面积|300㎡
Design Area: About 300㎡
室内设计|上海之见空间设计有限公司
Interior Design Company: Shanghai Zhijian Space Design Co., Ltd.
客服
消息
收藏
下载
最近
















