查看完整案例

收藏

下载
业主需求:
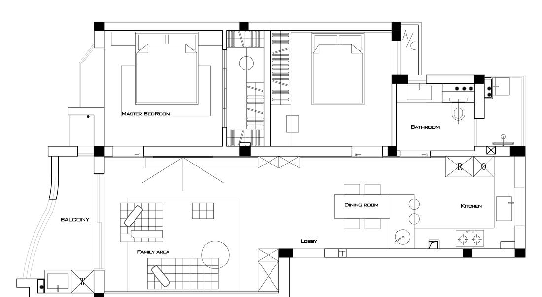
必要的玄关收纳;
门洞太多造成过道空间的浪费;
厨房封闭使用太局促,且影响餐厅采光;
北阳台较为鸡肋,可以重新规划和利用
改造说明:
将原有对门的主次卧进门改为隐形门,充分利用了原有过道空间实现储物空间的增加;
厨房改为开放式,改善了客餐厅的采光,呈现出南北通透的空间格局,打造了更利于交流和互动的烹饪就餐空间;
利用北阳台改造为淋浴房,扩大次卫整体使用空间。
L型拼接的储物柜,同时增加了玄关和客厅的储物空间。
L stitching store content ark, increased the store content space of porch and sitting room at the same time.
从电视背景墙延伸出来的储物柜,正对进门,也充当了一角风景。
Expand the store content ark that comes out from TV setting wall, be opposite take the door, also acted as one horn scenery.
封闭和开放共存,减少了一整面橱柜的压迫感,也让手办潮玩拥有展示空间。
Close and open coexist, reduced the oppressive feeling of a whole ambry, also let the hand do tide to play to have to show a space.
电视背景墙的大面积黑色,搭配纯白色的简约电视机柜,与灰色艺术漆纹路的墙面完美地在“黑白灰”中转换。白得纯净,黑得深邃,灰得高级。悬空的收纳柜,开放式的储物格,减少了卫生死角,让视觉更轻盈,摆上了书籍手办,让生活感倍增。
The large area black of TV setting wall, the contracted TV machine ark of tie-in pure white, with the metope of gray art lacquer grain is perfect ground is in "black and white ash" in conversion. White is pure, black is profound, gray is advanced. Suspended receive ark, open mode store content case, reduced wholesome dead Angle, let a vision more lightsome, put on book hand to do, let life feeling multiply.
整屋黑白灰的配色和简单的线条造型,设计师再一次让「简」深入人心;
The whole house of black, white and gray color matching and simple line modeling, the designer once again let "less" deeply rooted in the heart;
背景墙上的抽象画和格栅浮雕装饰,却给空间增加了一些层次。
The abstract paintings and grille relief decoration on the background wall, however, add some layers to the space.
光线从北面引来,是因为开放了厨房。融为一体的餐厨空间,甚至利用原墙体位置多出了一个水吧台。隐藏在两道隐形门之后的次卧和公卫,你看出来了吗?
The light draws from the north, because opened the kitchen. The eat hutch space of be in harmony, use former wall body position to give a water much even stage. The second bedchamber and the public guard, hidden behind the two invisible doors, do you see it?
橱柜,是厨房的主角。地柜吊柜的大面积黑色,带来极为纯净的视觉感受。简洁的门板造型将吸油烟机和嵌入式电器整合在其中,结合深邃沉稳的黑色,烹饪的专业感油然而生。
Ambry, it is the leading role of the kitchen. The large area of ark of ground ark condole is black, bring extremely pure visual sense to experience. Concise door panel modelling will absorb lampblack machine and embedded electrical appliances are integrated among them, combine deep and composed black, the professional feeling of cooking arises spontaneously.
水吧台有序地连接了餐厅和厨房,也串联了烹饪的时光。你在做,我在看,时而交流,时而对视,是再和谐不过的时光。
The water bar connects the dining room and kitchen in an orderly way, and also connects the cooking time. You are doing, I am watching, and sometimes exchange, and sometimes look at each other, is the most harmonious time.
隐形门的加入,弱化了门的存在感,使得这种规整更加极致,呈现出极强的一体感。推门而入便是主卧。
The addition of the invisible door weakens the sense of existence of the door, which makes the regularity more extreme and presents a strong sense of unity. Push the door and enter is master bedroom.
从客厅延伸至主卧的艺术漆特殊纹理,让内外更具整体感。通过更改主卧门而获得的步入式衣帽间,也收获了更大的满足感。
The special texture of art paint extends from the living room to the master bedroom, making the inside and outside more integrated. The walk-in cloakroom obtained by changing the master bedroom door also achieves greater satisfaction.
黑镜窄框玻璃门的衣帽间,对主人的收纳提出了更高的要求,即便是衣帽间内部,也要整整齐齐。封闭的空间中灯光不可或缺,线型灯带简洁明快,暖色温低照度的光,迎接屋主每一个取放衣物的早晨、夜晚。
The cloakroom of door of vitreous of black lens narrow frame, received to host put forward higher requirement, even if it is cloakroom interior, also want neat. The lamplight in the closed space is indispensable, linear lamp belt is concise and lively, the light of warm color temperature and low illumination, greet house advocate each take the morning and night that puts clothings.
将原本与厨房相连的北阳台作为淋浴房,实现了在卫生间内部的干湿分离,从干区到湿区不同明度和纹路的灰色,形成了友好的过渡,耐脏且耐看。
The north balcony, which was originally connected with the kitchen, is used as a shower room, which realizes the separation of dry and wet inside the toilet. The gray of different lightness and grain from dry area to wet area forms a friendly transition, which to bear or endure dirty and be beautiful.
壁龛四四方方,呼应了全屋的简约气质,也方便了洗浴物品的收纳取放。矫饰吸睛,繁杂功能,唯有形式和功能的有机结合才最为永恒。
Niche square, echo the contracted temperament of whole house, those who also went to the lavatory to wash bath article receive take put. It is only the organic combination of form and function that is the most eternal.
足够空间的南阳台,通过大落地窗增加了客厅的采光,也让不同材质的肌理质感倍增。阳台空间也进行了充分利用,洗衣机烘干机、洗衣池和壁挂式洗衣机一应俱全,满足一家人的各种清洁需求。
The nanyang stage of enough space, increased the daylighting of the sitting room through large French Windows, also multiplier the texture of texture of different material. The balcony space is also fully utilized with a washer and dryer, laundry sink and wall-mounted washing machine to meet the family's various cleaning needs.
结语:给空间做「减法」并不难
难的是将品质感和设计力充分展现的「简化」
用必要结构和功能作为设计的落脚点
才能真正做到去繁就简,给予空间更高的品质呈现。
It's not hard to "subtract" space
The hard part is "simplifying" the sense of quality and the power of design.
Use the necessary structure and function as the foothold of the design
In order to truly achieve to complex is simple, give the space a higher quality to present.
客服
消息
收藏
下载
最近





























