查看完整案例


收藏

下载
西班牙建筑师巴埃萨因对自然元素与光的运用,堪称西班牙第一人。
而其偶像巴拉甘也擅长色彩与光线。
巴埃萨在墨西哥建造的这座房屋,不仅仅只是充满了光线,也更多的展示了巴拉甘式的金色光芒,也以此来致敬偶像。
Caro的家
装着金色光芒的建筑
■ 三层的黄金屋。
从功能上来说,这座黄金屋划分为三个部分。
一楼是公共区域,二楼为卧室与起居室,而在最高的屋顶则设计了更多的私人空间,以及一个露天泳池。
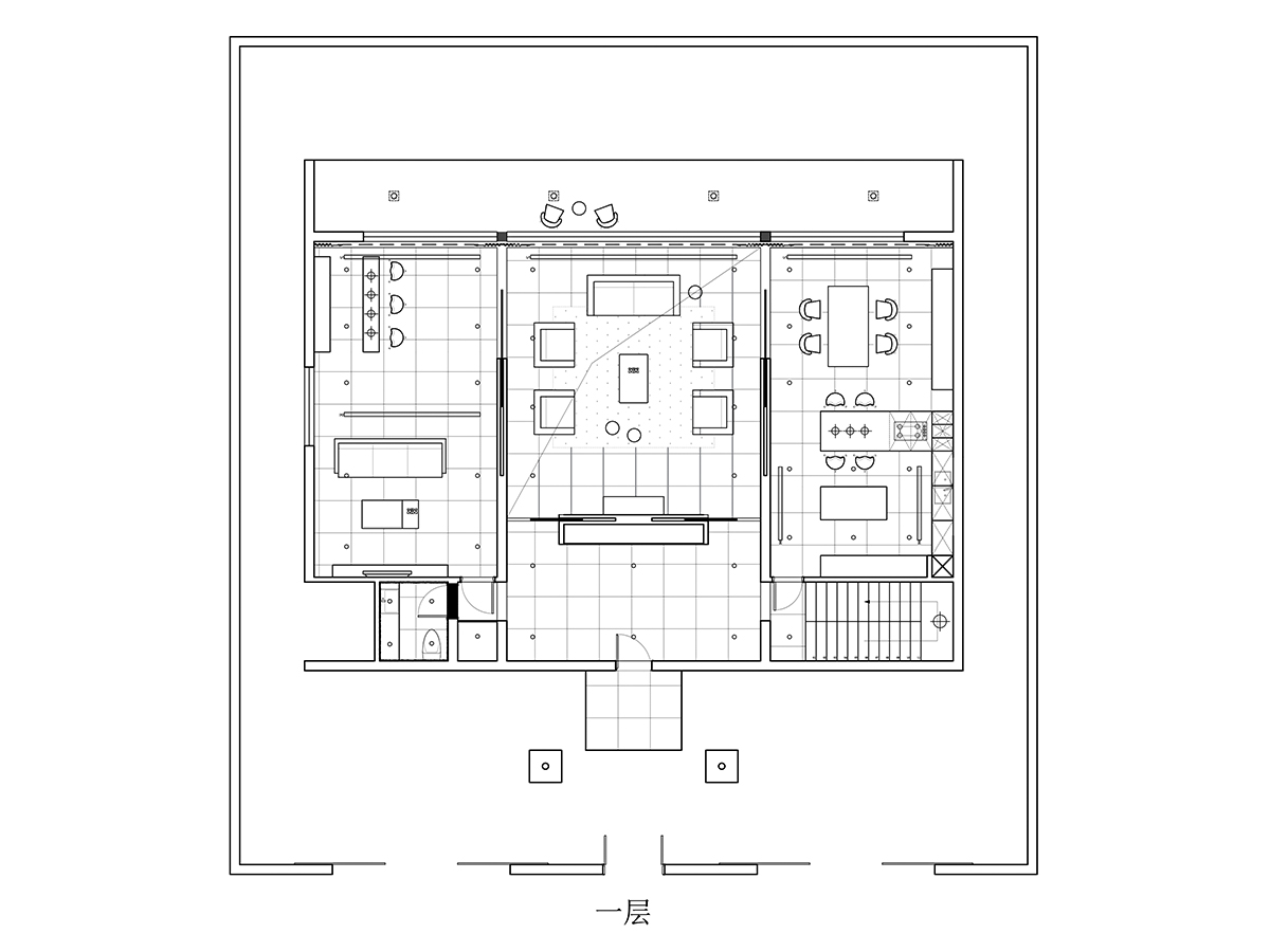
■ 一楼平面图。
■ 一楼客厅、就餐区、厨房、吧台。
不管是巴拉甘还是巴埃萨,向来都不愿在室内大费周章,只留有用、能用的,最基础的设计。
而巴埃萨又擅长“拆墙”,喜欢将室内打通,不受墙壁的局限。于是在一楼的公共区域,各个区域都互相敞开,彼此间并未受到阻隔。仅仅是通过家具、陈列装饰来划分空间功能。
■ 就餐区、厨房与客厅用半堵墙相连。
■ 位于就餐区后方的厨房。
即使是相对私密的就餐区,或许有油烟打扰的厨房,也只是留了半堵墙,依旧与四周紧密相连。
■被绿植包围的一楼。
一楼依旧以白色作为主要底色,偶尔穿插一张原木色餐桌,几把深棕色的高脚凳。
除了展现巴埃萨一贯的纯净感之外,白色也让空间的视线变得更加开阔。
■ 一楼的室外花园。
当然,也是为了更好的将室外的花园风景邀请进来,为室内带入自然元素。围绕一周的透明墙壁,分不清是室内还是室外。
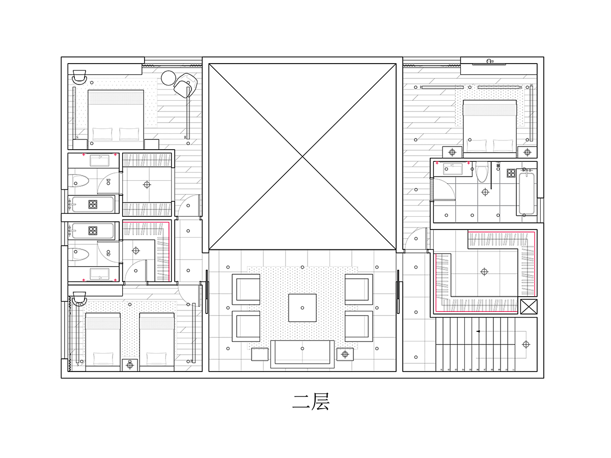
■ 二楼平面图。
■ 二楼的金色墙壁。
■ 在二楼可俯瞰室外花园。
而与花园绿植正对的便是二楼的金色墙壁。
在这二楼,不仅可将金色墙壁反射至一楼,也可俯瞰室外的花园。
■ 二楼起居室。
在金色墙壁下,巴埃萨并未一如既往的选用纯白色调,而是选用了较为浓郁的棕色、深灰色。
而这些饱和度较高的颜色,在阳光的作用下,会显得更为温馨与温暖,为二楼的起居室多添了一份暖意。
■ 二楼卧室。
暖意从起居室延续至卧室。
饱和度较低的灰色带来舒适自在,又不显得压抑徒增睡眠压力。墙壁上的画作倒是为单一色调的卧室多加了几笔颜色,让卧室不觉单调。
■ 楼顶。摄影:Javier Callejas。
■ 楼顶镂空的墙壁。摄影:Javier Callejas。
再往上走,便是屋顶的世外桃源。镂空的墙壁方便室外的自然穿透进来,通过另一面的玻璃,再继续跨进室内。
而在两堵墙之间的泳池,也是倒映风景,留住自然与阳光的好帮手。
■ 触手可及的白云。摄影:Javier Callejas。
巴埃萨在建造这座黄金屋之前曾说,他梦想着一个充满金色光芒的,宁静的住所,让居住的人在此感到快乐。
如今,这个梦想实现了。
而他作为粉丝,致敬偶像的心愿,大概也实现。
客服
消息
收藏
下载
最近




























