查看完整案例


收藏

下载
City life位于米兰市中心,是欧洲城市复兴运动的最大项目之一,改造后的项目以注重生态环境为特色,为Flavia带来了充满活力与时尚的全新居住体验。
Flavia的家融入了意式的优雅时尚,家具的选择和摆放都考虑到空间与建筑之间的一致性,在强调自由浪漫的同时也不失纯真趣味。
Flavia的家
融入创新思维的未来主义公寓
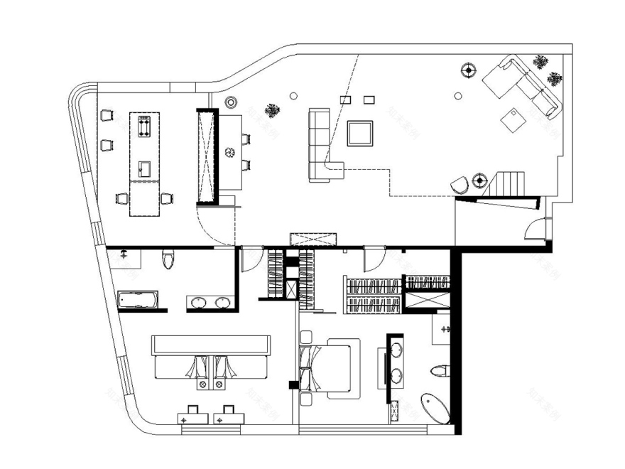
户型图
户型图
这是一套总面积达380㎡的复式公寓,温暖的日光穿透落地窗照进室内,引入窗外的自然景观,并将露台构筑成一条日光走廊,让非凡景致与舒适的室内空间融为一体。
视线可以穿越玻璃屏风看到后方清浅的休闲空间,猴子造型的边桌现代感十足,结合树脂材料的稳定性,适用于多种场景,堪称实用之外的趣味之作。
厨房的墙壁上点缀了多幅装饰画,是Flavia自由发挥想象力的完美空间。
餐厅
一体式的橱柜设计将烹饪工具有序收纳,不仅更加节省空间打造出宽阔的视觉效果,也让用餐环境更加舒适。
休息室
透明椅子冲破了传统家具的概念,彰显出现代摩登的时尚风格。
不仅能搭配现代风格的家具,更能与极简、工业等多种室内风格相得益彰。
主卧
卧室清雅高级,局部墙面采用莫兰迪色系,在红色中渗入一丝灰白色调。
使其失去了原本强烈而浓重的观感,柔和地与其它的颜色调和在一起。
浴室
干湿分离的设计让浴室更加人性化,孔雀蓝色调的洗手台与大理石瓷砖遥相呼应,呈现出格调十足的意式风情。
Flavia的家抛却繁复的修饰,通过极简主义设计和跳跃的色彩,去构筑极具扎哈风格的律动空间,营造出一番清爽有趣的活力世界。
客服
消息
收藏
下载
最近



















