查看完整案例


收藏

下载
England Old ambulance station rehabilitation vacation home
设计方:Marta Nowicka & Co
位置:英国
分类:居住建筑
内容:实景照片
图片:23张
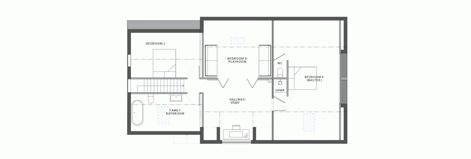
在英国苏塞克斯东部,Marta Nowicka & Co将之前的圣约翰救护站进行了改造,创造了一座以裸露的砖墙和工业风格的装饰为特色的家庭住宅。救护车车库位于Rye镇上,由总部位于伦敦的公司进行了彻底的整修,创建了一栋有四间卧室的住宅,内部设有一个招待客人的大空间。该站最初是由圣约翰医院在20世纪50年代期间建造的,可以容纳两辆救护车。它坐落在一个有私人围墙的庭院里,旁边的Georgian住宅被列为二级保护建筑,这里曾作为服务总部。Marta Nowicka在双山墙的屋顶空间中创造了新的卧室层,并拆除了底层的一面隔墙,为厨房、起居和餐饮区创造了开放式的空间。砖墙在整个修建过程中被恢复。通过灰色的橡木板补充,覆盖在整栋建筑的地板以及双层楼梯和卧室的墙壁上。在不使用橡木的地方,白色粉刷的墙壁使空间明亮起来。
英国老救护站改造的度假住宅内部实景图
英国老救护站改造的度假住宅-18
英国老救护站改造的度假住宅示意图
英国老救护站改造的度假
住宅平面图
英国老救护站改造的度假住宅平面图
客服
消息
收藏
下载
最近

























