查看完整案例


收藏

下载
建筑师:Marta Nowicka
“外部:我们用倾斜屋顶重建了1970年的延伸部分,从视觉上突出了原来建筑的倾斜屋顶形式。然后,在当地的Lydd手工粘土瓦片,以补充原来的钉瓷砖,然后继续下去,并包住墙壁的侧壁延伸。保护风格的屋顶窗户被放置在前面和后面,直接将南北自然光带入屋顶空间。
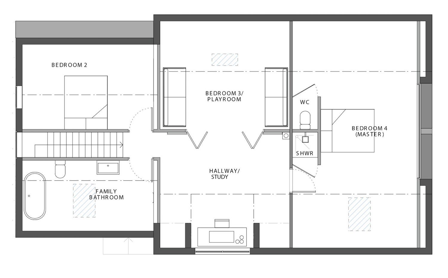
捷克共和国的玻璃一直被用来装饰成背景,重点放在原来的建筑上。一个令人惊叹的三角部分玻璃已插入到原来的屋顶球场,创造了令人屏息的屋顶和乡村景观从主卧室。对齐的现代门通向中世纪,就像墙上的花园一样,一目了然。
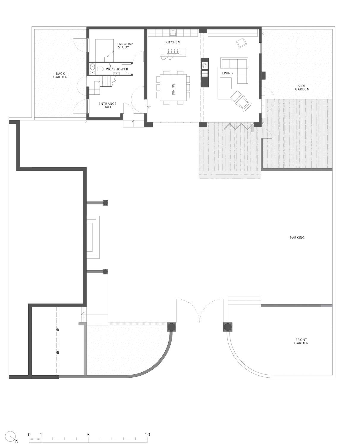
我们在一楼建立了一个面积780平方英尺的开放式生活、餐饮和厨房空间,方法是拆除一堵非原始的中央墙,将办公室从救护车车间/车库隔开。这创造了一个惊人的娱乐空间,在整个楼层规划的原始救护车站。为了在空间内划分区域,我们在房间的中央铸了一个大的混凝土基座,坐着一个双面烧木头的炉子和木材商店。
现有的I梁沿着桥墩上方的天花板运行,已经暴露在外面,原来的滑动门已经被完美复制,以保持工业的感觉。精心复制的救护车门双折叠在一个大型的再生木材露台和围墙的庭院上。
厨房结合了灰色木材橱柜和令人惊叹的Carrera大理石工作台和溅起的背。一个刷过的不锈钢岛单元赞扬木材和大理石,同时提到这种材料在医疗行业的使用。
我们在地面和第一层使用了广泛的工程橡木地板,然后继续将双高度楼梯和卧室的墙包在屋顶空间中。
一楼的潮湿房间和楼上的大家庭浴室都是用意大利华丽的‘花边’瓷砖做的。一辆不锈钢护士手推车在浴室里被用作梳妆台,上面有一个大脸盆和一面镜子。“
谢谢你阅读这篇文章!
keywords:Conduit Hill England Marta Nowicka & Co Rye
关键词:导管山,英格兰Marta Nowicka
客服
消息
收藏
下载
最近


































