查看完整案例


收藏

下载
出入艺术空间位于宁波东部新城的核心商圈,紫荆汇商场中庭空间,实用面积 300 平方,呈长方形空间。
由于原状空间是店铺的方式,一面朝中庭空间,我们设计的初心是注重艺术空间如何和中庭空间融合、对话、互为背景。
最终,面向中庭的立面全部敞开,用两面完整的大玻璃窗,结合一扇 1800 的轴门,做到立面极简,四周用 5*5 的喷黑色氟碳漆的角铁围合,中轴门我们用了一个折线形的把手,和方正的大窗门形成对比。
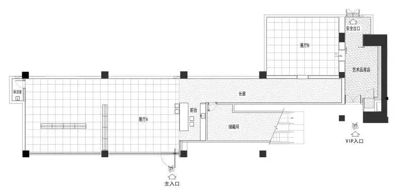
整个艺术空间由四部分组成,两个长方形展厅和一个长廊外加一个艺术的商店。
在设计中融入一些方便以后运营的设备。例如,这次和奥美兰插座合作,把轨道插座和踢脚线融合在一起,来适应各类布展的需求。
入口处,我们用热轧钢板做了一个 3000 长 900 高的大吧台,成为日常咨询、喝茶等小规模交流的生活化的空间。
由于是一个艺术展厅,我们尽量弱化设计的痕迹,突出展示的艺术品。
出入艺术打造的是商业街区中的生活化的艺术空间,让艺术走进人们的城市生活,艺术让生活更美好。
平面图
DESIGN PLAN
轴侧图
DESIGN PLAN
项目信息
ABOUT THEPROJECT
项目面积|300 平米
项目位置|| 宁波市东部新城紫荆汇一楼中庭
主案设计|| 潘高峰
艺术指导|
IABBAI Architecture
视觉平面
丨
为什么设计
设计撰文
丨
潘高峰
主要材料
丨
瓦帕茵特艺术涂料、多少家具、青松家具、奥美兰插座、欧锦门窗
关于设计师
ABOUT DESIGNERS
潘高峰
设计理念我一直坚持在做的,就是赋予空间感情,做独立有创性的作品,设计的核心价值就是拥有一颗为设计的匠心。这离不开生活,离不开文化,离不开艺术。荣誉出入艺术主理人慧空间设计总监 T10+设计联盟联合创始人本案由潘高峰提供,为授权稿件。
POPULAR ESSAY RECOMMENDATIONS
首发 | DAS 大森设计:以未来时光,拟星空之境
首发 | 融创 & UMA 伍玛设计:梦幻“乌托邦”,尽享新生代潮流生活
首发|红山设计:盈透与色彩结合,乍见也欢,久处不厌
# 投稿&商务
肥橘/小越/1900/宁宁/叮当
客服
消息
收藏
下载
最近






























