查看完整案例


收藏

下载
慧舍—改造源于追求—“愿你既可以朝九晚五,又可以浪迹天涯。”浪漫的话,浪漫的人懂,设计师无疑是最懂浪漫的人群之一。当诗和远方成为都市里多数上班族心中的愿望,设计师敏锐的感觉到这是人们对现状空间的不满,当然也包括设计师本人。为什么不让“诗和远方”来到朝九晚五的生活当中?于是设计师决定改造现有的空间,实现都市里的诗和远方。听起来似乎有些冲动,不过实践证明,就是这样的冲动和追求被衍生出了触手可及的诗意空间——慧舍。—不破不立—
项目地点
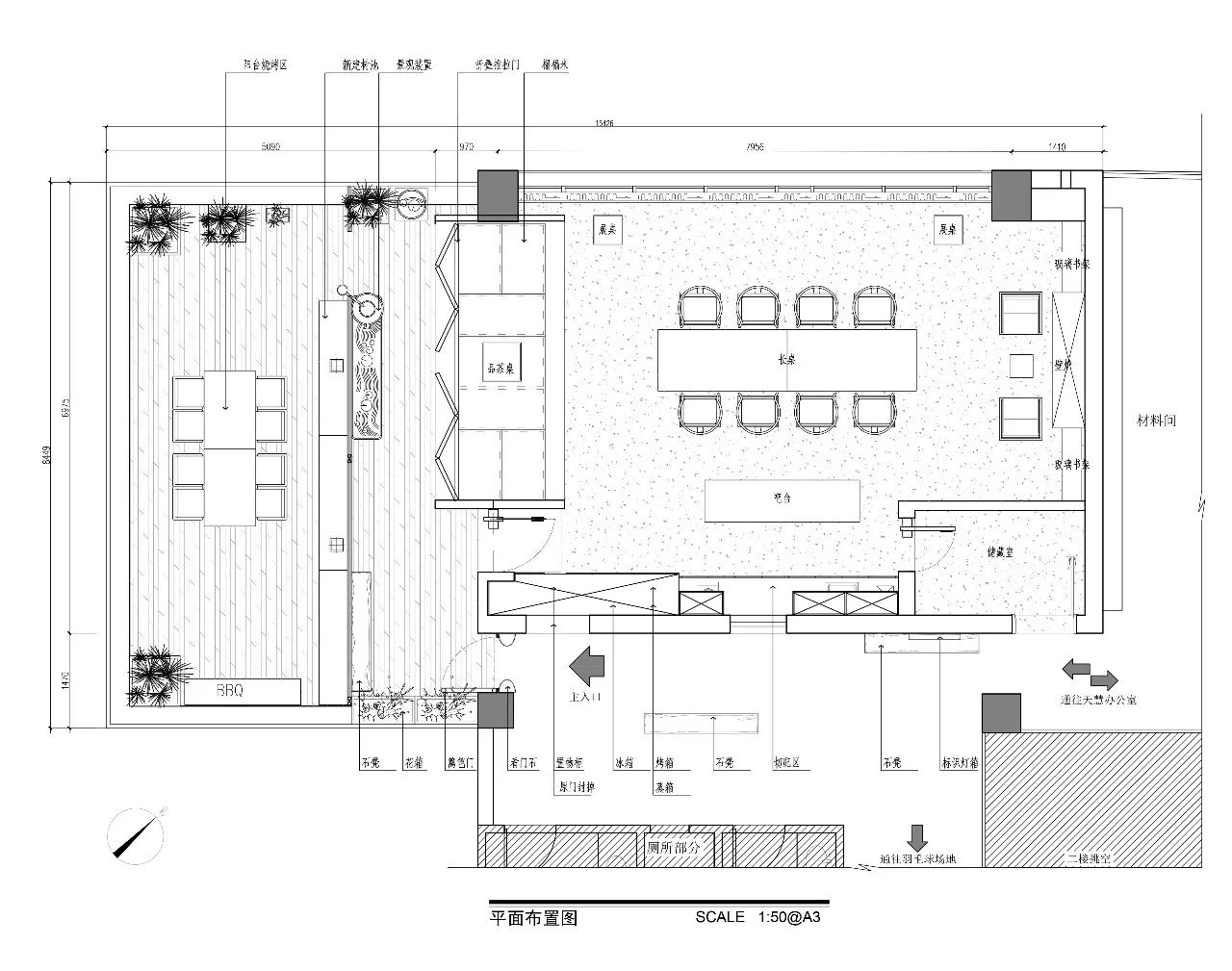
平面图慧舍是慧空间设计的一部分,位于宁波市高新区华之大厦的三楼,由75㎡的室内空间和45㎡的露台组成。由于慧舍处于整个大楼的三楼,客人是先进入大楼再走出到露台,然后再进入慧舍空间。流线和传统的园林空间流线有反向的差异。而慧舍所在的大楼设计初心也是营造一个现代城市中的园林空间,这和设计师的想法不谋而合,同时为改造提供了有利的先天条件。
立面彩图
慧舍空间里室内有一个茶室,一个8个人座的长条茶桌,一个吧台,一个储藏室,一个酒精壁炉墙面,室外露台有个8个桌位的户外长桌和一个BBQ。整个功能分区主要分室内空间和露台空间,中间用一个抬高300mm的榻榻米茶室过渡。
本来面对露台的墙是封闭的,在设计师的努力下终于打动了大楼的主人,同意把墙打掉,把满目的绿色引入空间。设计师如果找到一个空间最亮的亮点,且把它凸显出来,设计已成功了大半。
铁盒茶室
设计师把一个方形的铁盒子置入茶舍和露台之间,取代了原先的封闭墙面,通过可以完全打开的折叠门,完成这个空间的延续。于是,从茶舍进入露台的经历又添惊喜——穿过空间的过程多了榻榻米式的茶室,静谧而又灵动,一个开放空间一个封闭空间,在形成室内外对话的过程中,绿意,阳光,氧气和匠心亲密的融合在了一起。
— 初心不改 —
城市中最珍贵的是柔和的阳光、清新的空气、满目的绿植,然而现在许多空间剥离了人与自然的关系,特别在现代化的办公楼空间里,白天用遮光帘,空气用新风系统,人们穿行在高层的住宅和办公空间里,完全与自然隔离了。
如何在现代化的城市空间里营造一个有当代特色的江南文人空间?如何不模仿传统的样式,用当代的材料和空间布局手法,就能让诗和远方来到身边?这是设计师一直在思考的问题,而慧舍就是一个实验性的尝试。
由于慧舍的周边大树环绕,让慧舍里面的空气充满了氧气,坐在慧舍里喝茶,人自然便得到了放松。若谈笑间,风满座,得水声入耳,岂不妙哉?为此设计师养竹造景,用近3000mm的旧马槽,旧时的石磨和当地的竹筒,做成水循环,空间里有了潺潺水声,送锦鲤入池,空间便几分添生趣。再配上有几百年历史的石凳,点缀在全新的空间里,形成对比,让全新的空间里有历史的痕迹。
— 共享空间 —
改造后的慧舍,它集茶室、艺展、设计于一体,是一个能够体现江南美学生活的空间。同时这里不仅是招待客户的地方;还是一个以茶会友的雅舍;也可以是以烧烤为主题的party现场;更是一个可以共享的“诗和远方”。
在我们当代人的生活当中,必定有中西结合的特点,在慧舍室内的另一端用真火酒精壁炉做了整个空间的中心,在慧舍的两头分别用水,火来做呼应,水的表现形式是江南的,火表现形式是西方的。现代化的一体式橱柜已然可满足日常生活所需。
用真实、简单、自然的材料,打造精致而舒适的空间,一直以来是慧空间始终在坚持的,改造选用的是最普通的材料——水泥、水磨石、铝方通、锈板,既是基层和结构也是所见所触的完成面。通过重新组合有了设计感,这是设计的价值。
整个改造是一个整理思路重新出发的过程在繁华的都市里辟得一域诠释着都市亦可同大自然亲密相容诗和远方亦可以在朝九晚五之中项目名称:慧舍项目坐标:宁波市国家高新区建筑面积:120㎡建设周期:
2017/5—2017/9
设计单位:宁波天慧装饰有限公司
主创设计:潘高峰
设计团队:高慧琼、陈燕南
施工团队:孟祥存
摄影师:刘鹰
潘高峰浙江舟山人,毕业于中国美术学院环境艺术设计专业,高级室内建筑师,CIID中国建筑学会室内设计杭州分会理事,宁波市室内设计师协会理事。2009年创立慧空间设计机构,2014年成为杭州国美建筑设计研究院宁波分院院长。2013年度国际空间设计大奖艾特奖,2014现代装饰国际传媒奖,2015中国室内设计年度评选金堂奖,2015CIDA中国室内设计奖,2015师客莱德空间设计奖,2015年度·浙江设计精英年度佳作奖,芒果奖&十间坊2015年度最佳创意设计奖。慧空间设计全称:宁波天慧装饰有限公司,是由设计师潘高峰先生创立于2009年,是一家聚集了一批优秀专业设计师的甲级空间设计单位,同时也是杭州国美建筑设计研究院在宁波的分院。设计专业技术雄厚,对各类空间设计有着超百实际工程的丰富经验。公司团队致力于建筑室内外装饰装修的设计服务。本文由慧空间授权稿件。
【 集优文化传媒 】我们期待在宁波这个城市可以遇到共鸣的您
想了解更多?那就赶紧来关注我们吧!!
微 信 号:jiyoumedia
客服
消息
收藏
下载
最近




































