查看完整案例


收藏

下载
当代中式——君子如玉
Contemporary Chinese Style-Gentleman Like Jade
楚宋玉《神女赋》中:“貌丰盈以庄姝兮,苞温润之玉颜。”“情深不寿,强极则辱,谦谦君子,温润如玉。《国风·秦风·小戎》里有“言念君子,温其如玉。”
SENSE · AESTHETICS
当代中式 · 质感 · 美学
CONTEMPORARY CHINESE STYLE
凡尔赛 600m²
现场直录视频及那些设计背后的故事
空纳万境-- 巫娜
凡尔赛 600㎡ | 当代中式——君子如玉
主题创意全案设计师 | 田艾灵项目组-- 田艾灵
方案深化设计师 | 田艾灵项目组-- 刘佳佳
软陈设计及落地 | 桓墅空间艺术设计机构
施工单位 | 十二分装饰
全案主材合作伙伴:玛格全屋固装定制、汉斯格雅卫浴、杜拉维特洁具、名森科技木面板、倍果建材||芒果瓷砖、伟奇石材、煜鑫隆诚金属建材、舍可舍家具定制、嘉妮亚瓷砖等
特别鸣谢:麒文摄影
Versailles 600㎡ | contemporary Chinese Style-Gentleman Like Jade
Theme Creative Case Designer | Tian Ailing Project Team-Tian Ailing
Scheme deepening designer | Tian Ailing Project Team-Liu Jiajia
Soft Chen Design and Landing | Hertrue Art Design Institute Construction unit: Perfect Decoration
君子如玉
GENTLEMAN IS LIKE JADE
谦谦君子,温润如玉,飞扬跳脱的个性不属于谦谦君子,因为,玉的光芒是凛于内而非形于外的。
雍容自若的神采,豁达潇洒的风度,不露锋芒,不事张扬,无大悲大喜,无偏执激狂,正所谓“宠辱不惊,闲看庭前花开花落;去留无意,漫随天外云卷云舒。”而生命的状态在这里呈现出一种成熟的圆润。
/ SPACE DESIGN LANGUAGE /
空间设计语言构建 600 平方米的大宅,通过将中式线型组织、对称留白意境置于当代空间,重新组织传统经典与当代对话。运用不同层次变化的自然染色特殊处理的科技木结合玛格定制的技术,呈现比纯人造化板材更自然的肌理、更温暖的触感。原始空间碍眼的大承重柱,通过功能规划成为自然空间分隔,简化中式线型构成,巧妙修饰于无形、同时修平原来土建墙面基础的严重错位不平整,铺陈出既有大宅气质又不乏居家温情的当代中式风范。
|设计传承中式理念于空间精神,始终寻找向心而生的唯一注解。从硬装规划到软陈布局,犹如范宽的溪山行旅图,近景如细节清晰占据表达的 1/3,远景如空间架构意境悠远占据表达的 2/3。树与叶如材质质感与色彩搭配,采用夹叶的“刚”与点叶的“柔”营造出利落静默之姿;善用雨点皴和积墨法,犹如空间点线面,以造成如行走于崇山之间的层峦叠嶂之感、于室内空间转承起合间的一气呵成之意蕴。不同层次的高级木调灰与中性沙色木纹石材、纯净白的岩板与暗黑中绽放雅白片状裂纹的石材地面在质感灰调里融合;雅蓝灰、暗橘的跳色邂逅与携手,就像是沉静世界里绽放出璀璨的生命之花,那份悦动与鲜亮直入眼帘,演绎禅意静默里的愉悦。无论何种设计手法,始终寻找向心而生的唯一注解。
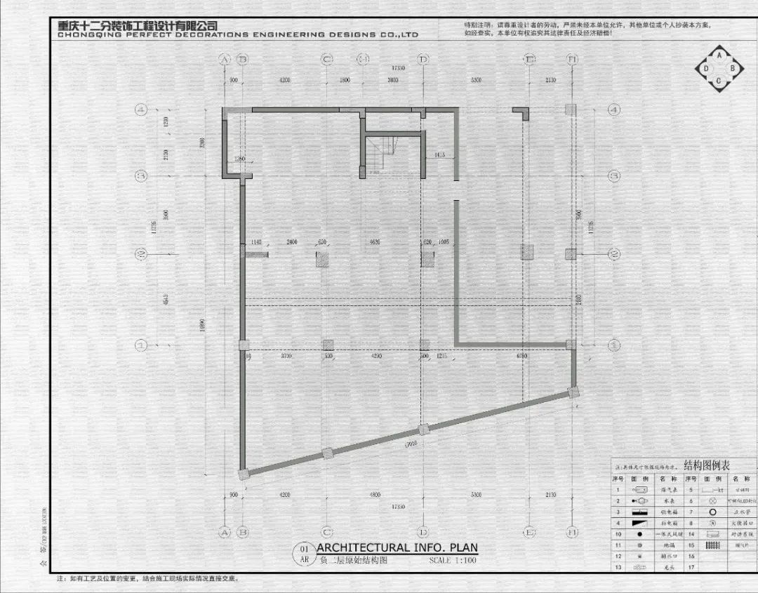
/现场原始图/
从生活的道场里去思考设计,贴身定制专属于业主气质的空间,去营造那一份悠然自在的宅居慢生活理想,将东方哲学与当代人的审美情趣完美融合。
在变幻的审美与空间艺术之间,超越生活本身,承载着温润而安然的内心世界。
在人与空间自在而悠扬的对话中、开启一段传统与当代的家宅诗意栖居梦想篇章。
01一层客厅
First floor
赏心乐事,谁家院
一层原始&平面布置图,左右滑动查看更多
花园置景采用小而精的侧花园、两进感的正花园、观景与功能区分布合理,逐步引人入胜;“院子”是一种根植于心的情节与向往,蕴含着诗的想象和光阴的故事,潜藏着天地春秋、家人共欢、内心的豁达与安定;让视觉游走间、伴随潺潺流水声、鱼儿嬉游消融了地处堡坎下的逼仄感,反而有中式传统园林的移步换景灵动意蕴。
在城市喧闹之中有这样一处可以静静享受时光的空间,与自然毗邻而居,是诗意栖居最好的理解,它将在灵魂深处承载起东方神韵的别致与温度。
一层门厅调整入户位置,将餐厨功能整体下移到负一层,拥有了完整阔景客厅的同时,更拥有了匹配大宅的艺术独立门厅,巧妙融进主人收藏的古件,让当代与传统经典对话,构造气蕴空间。
封闭原入户位置围合纵向大客厅,同时原入户位置成为一处安静对坐的休憩坐榻区,隐约百叶外是静态山水,阔厅中有小惬意。
负二层茶室
Negative second floor
浮生不在,茶语清香
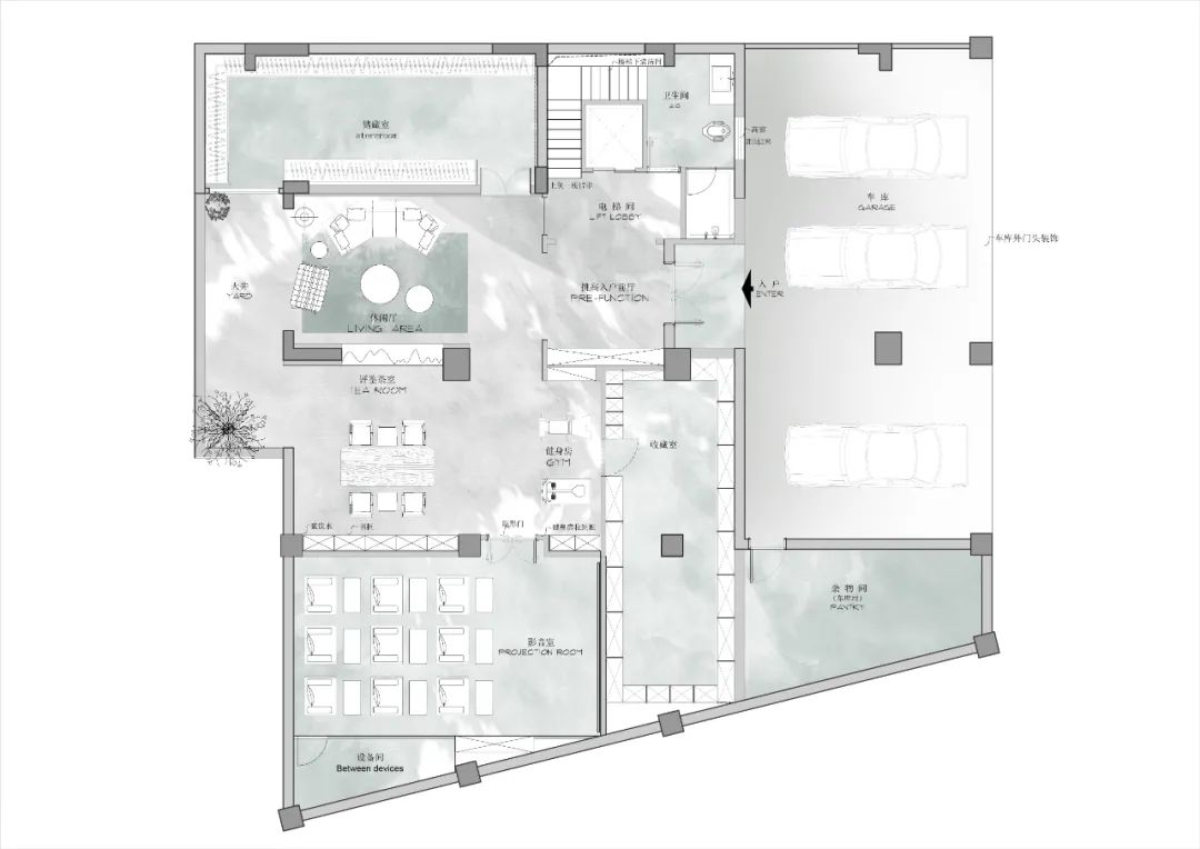
负二层原始&平面布置图,左右滑动查看更多
负楼层引进自然光及空间架构模型示意
负楼层退合适距离为车库入户留出外前厅,整理过渡再入室内;解构负二负一层功能动线,调整楼梯位置于一处贯穿上下,设置电梯位置,挑空入户玄关、合理规划天井借光,将需要安静的茶室、收藏间、家庭影院置于负二层;成就入户高挑空玄关以及茶室,于青砖竹韵里一室干净明。
自然染色特殊处理的科技木结合玛格定制的技术呈现比纯人造化板材更自然的肌理、更温暖的触感。
将中式线型留白意境重新组织语言,巧妙修饰大型承重柱,并起到修平原来土建墙面基础的严重错位不平整。
自然顶光倾泻而入,曾经的黑暗、功能鸡肋的负二层通过合理设计,转换为满足主要功能的舒适空间,专业设计费的价值体现就在如此。
从负二层休闲厅回望车行入户大门玄关
依然精选的科技原木板组成暗含隐藏门的背景木墙,为负二层营造出一室的质感品味。
*抬头是取自于莲灵感的玄关吊灯吸引我们向上。
03 负一层餐厅
Negative layer
人间烟火色,闲观岁月长。
负一层原始&平面布置图,左右滑动查看
一组安静的静物迎接我们来到负一层
将餐厨空间挪至负一层,满足家人操作实用又大气的厨房与中岛区,还单独设置了厨房杂物、储备食品房,精致与功能兼备。
质感里透露着关于家的温暖,餐厅是现代人在家时最多时间坐在一起的,一边享受着美食、一边交谈,在充满雅趣的用餐氛围里,自然顶光倾泻而下,有竹韵为伴。
一日、三餐、四季,家的仪式感与人间烟火色,凡间的温暖挚爱,在百般滋味间得以修炼。
通过解构的手法,与负二层的互动关系,自然的天光是空间的语言。
从结构到质感到软陈细节,一步一步构建出最后和谐统一的语言,曾经的负一层变得如此愿意逗留的主要活动空间。
回望过厅枢纽,每一角度都能入画
家庭成员喜喜好有镜头感
04二层孩子套房
Children’s suite
冥然境间,万籁归寂
二层原始&平面布置图,正经建议只滑到第二页,后不小心乱入
来到家庭成员私人区,首先是儿子的书房,故意打开的空间,让过道与书房借用,形成空间气度,自然质感的木与岩板中性色系质感里,那一抹暖橙是空间的贯穿呼应。
二层楼梯与电梯主动线贯穿归顺以后,现浇挑空夹层部分成为儿子大套房,视野直达户外借景。
以线为谱,以光赋诗,一室静雅熠熠生辉,温润的高级灰主色调,演绎空间舒适安静的调性。
另设置了中性格调的第三代未来孙子辈套房,一套大宅就是各安其所,未来规划完善。花园生活区顶面对应搭建平二楼地面成为二楼的户外大活动区,独立而幽静。
05三层主人套房
Master bedroom suite
言念君子,温其如玉
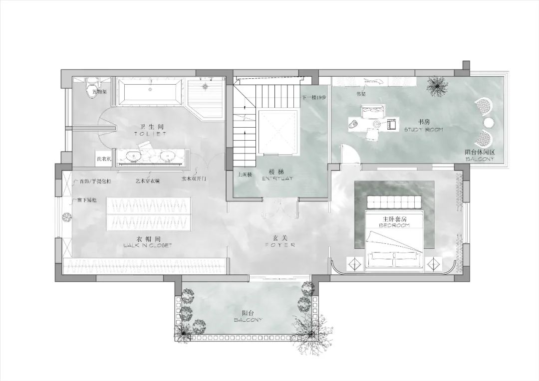
三层原始&平面布置图,左右滑动查看
来到三层主人主要生活楼层,功能齐备的衣帽间让生活井然高效的美丽。
与卧室玄关区依然沿用对称简约线条构成屏风弱间隔。
如莲一样的女主人,知性雅致地绽放在岁月里。近弧形的吊顶线条沿用于此,营造静谧雅致的空间氛围。
利用露台设置的阳光书房,春夏是一室葱茏掩映、秋冬是写意枝丫的静默。生活的艺术在于一餐一饭、一花一茶,在于闲暇之时间,如同室中之空隙,光与影在时空里留下刻度。
质感而分区明确、功能齐备的主卫(晾晒小阳台、独立座厕、沐浴间、双盥洗台、卸下疲惫的浴缸区)让洗浴成为享受。
项目信息
凡尔赛 600㎡ | 当代中式——君子如玉
主题创意全案设计师 | 田艾灵项目组-- 田艾灵
方案深化设计师 | 田艾灵项目组-- 刘佳佳
软陈设计及落地 | 桓墅空间艺术设计机构
施工单位 | 十二分装饰
特别鸣谢:麒文摄影
全案主材合作伙伴:玛格全屋固装定制 汉斯格雅卫浴 杜拉维特洁具 名森科技木面板 倍果建材||芒果瓷砖 伟奇石材 煜鑫隆诚金属建材 舍可舍家具定制 嘉尼亚瓷砖等。
推荐阅读
新中式++ 轻奢,时尚的中国格调!
新中式丨简约到极致,便是轻奢
100 例·新中式玄关设计
最美·中国红
客服
消息
收藏
下载
最近

















































































