查看完整案例


收藏

下载
序
来自岭众联合-田艾灵设计
人生走过半程,我们的日常似山涧的清泉。虽低吟浅唱,却流动着生活的意蕴。乐在其中,享受当下。
家里常年就业主夫妻二人,不与长辈同住,在上海读大学的女儿寒暑假回家。在知命之年,他们过上了二人世界,格外恬静安适。
ENTRANCE
了解一个人的生活,从推门进入他的家开始。进出大门的玄关景以端正稳定的结构搭配为主,粗陶花瓶、斑驳感抽象画、中古韵味储物柜等,变换着不同的元素。这就像是我们的生活,时间的变化,看似不变而变,唯一不变的是本真美。
老木料的换鞋凳,充满残缺的自然本身,将岁月的痕迹表露无遗,搭配人文图腾地毯,玄关的整体设计给进出人展现了整体空间的缩影,居于俗世生活的自在与洒脱,与之能够快速的融入到空间里。
为了让空间在拓展性上既独立又相互联系,在通往茶室的路上,产生了一些艺术的小情景,它们安静沉默,如同画框,营造丰富细腻的感受。
TEAROOM
夫妻俩都是比较宅的人,不喜应酬。工作之余,他鼓捣音响听音乐喝茶,她看书喝咖啡练瑜伽,互不打扰,各得其所。
茶室便为方便男主人接待客人和听音乐所用,选用老木料的茶桌和原生木料壁柜体增加空间的质感。夜深人静,俩人一起聆听曲目,焚香饮茶,吾心悠然。
茶室一侧的休闲厅,整体的设计以浅调弱化花园绿意引景入室,卷帘和略带禅意以竹为主的肌理画,呼应空间所用的竹木藤艺材质。在此与三五好友谈笑风生,家庭聚会嬉戏,消磨放松而不失乐趣的时光。
在这里,建筑空间构建朴实、宁静、且易于生活的空间状态。而室内空间又与室外绿植、阳光、风雨产生着自然而然的共生关系,它们因时间、季节、气候而流转变化,以此作为新的生命启示。
KITCHEN
一楼的餐厨空间的材质以柚木为主,配以洞石岩板,所选材料质地和色调温润。
厨房画艺布帘配色以抽象浅淡色调让空间免去沉闷感,以柚木偏胡桃色为重色,通过洞石色的暖灰与软装配饰的色调对比、中古造型家具繁复与简约的对比、细腻质地与斑驳材质的对比,来形成空间丰富的层次质感。
生活与艺术进行合理搭配,柴米油盐酱醋茶在这里遇见窗景、绿植、音乐、收藏画,屋主对于生活的热爱在此杂糅。
DINING ROOM
餐厅考虑到整个空间的结构比例,选择自然木板的超长餐桌,搭配藤编中古餐椅增加氛围感,营造出安宁温暖的用餐环境。
LIVINGROOM
客厅为家人、朋友间增进感情的娱乐空间,布局采用主沙发+单沙发+皮墩+边柜的组合形式,设计考虑到功能和美观,体现在常用的家具使用频率高的地方,选择宽大的牛皮沙发增加空间舒适度,茶几选用深色大理石台面带年轮雕刻。
使用频率略小且考虑装饰性上的白色单人沙发,让整个空间不沉闷且调性融合,独特的弧形扶手给直棱角的盒子空间带来形体的柔和美,同时,牛皮墩的装饰符号元素与抱枕元素遥相呼应。
沙发背后的画艺和装饰椅柜形成形体互补的组合,致敬 KellyHoppen 的设计,追求色调和谐不张扬,元素质感丰富,造型有序的多变。
静止的中古边柜选用老船木再造,柜身的孔眼细节仿佛述说了它与风浪的故事。
二楼书房为男主人工作和阅读所用,书吧区域用以安放喜欢搜集的画作,为适合整体空间重新组合搭配利用,单人沙发靠窗而放,便于与楼下家人间的互动交流。
KIDS ROOM
业主说,女儿现在是“客人”,只有寒暑,再无春秋,常带着她旅行,广博的见识对她的成长注入了丰沛的养料,作为二十岁的年轻人,需保持独立并尊重她的喜好。
不同于整体沉稳木色调,女儿房使用了相对明亮轻快的橡木色,浅色的松果灯和米色窗帘增加空间柔和轻快感。
空间与空间之间跌宕起伏,做到了互相连接融合又互不干扰,漫漫而走,生活随着层层楼梯不断地更换场景。
MASTER BEDROOM
三楼的主卧设计采用大主卧、小主卧和早餐吧的形式。大主卧进门以若隐若现的隔断进入,整体空间挑高且宽敞明亮,顶部造型为仿中式形的斜屋顶。
家具色调以简洁沉稳色调为主,材质延续一楼所用,在平调的基础上装饰吊灯呼应若隐若现的隔断,形体以薄纱形式的中式吊灯,配以舒适感的皮质软包床,床头以边几加储物柜的不对称形式多样化搭配。
小卧室为男主人休息用,空间方正开阔,软装造型收边利落为主,体现男主理工科的简洁实用派。
CLOAKROOM
衣帽间是空间的承让,编织的衣柜增加空间温润质感。光线斜入此间,在纵横细密的纹理上产生漫反射,由暗到亮,再由光至影,空间氤氲且拙朴。
BREAKFASTBAR
在窗前留有一桌、两椅,为夫妇俩提供简单餐食的早餐吧,以简练框架造型和干净的布帘装饰,用带浮雕花纹的吊灯增加温馨的氛围情绪。日有阳光作伴,夜有灯光可亲,为夫妻俩开辟专属于他们独有的空间。
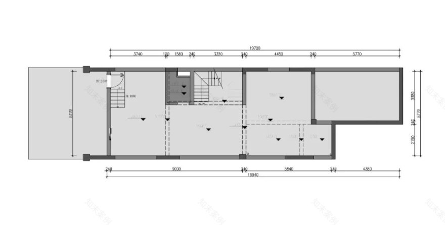
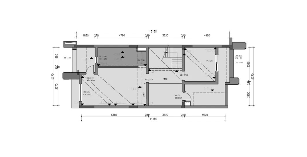
-1F
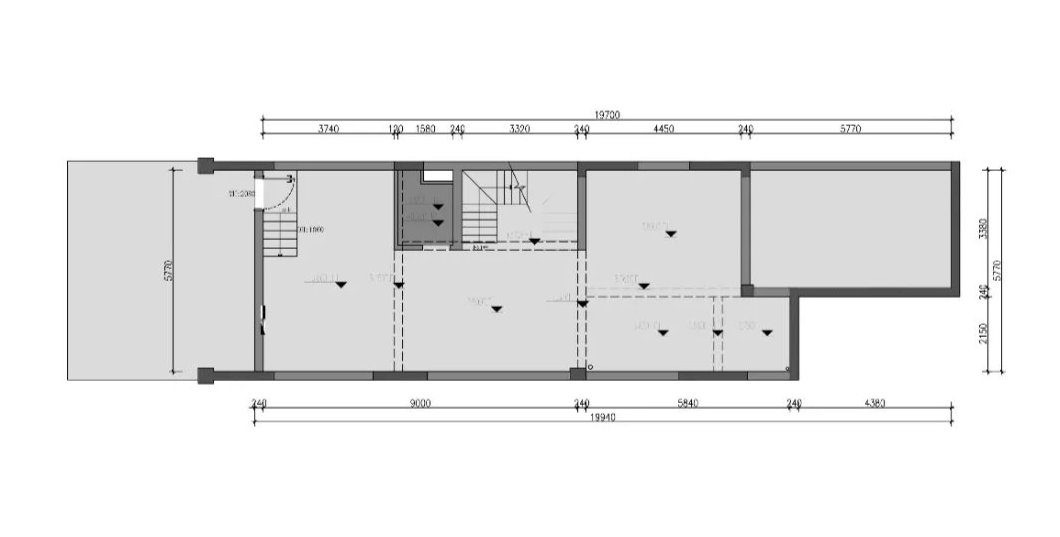
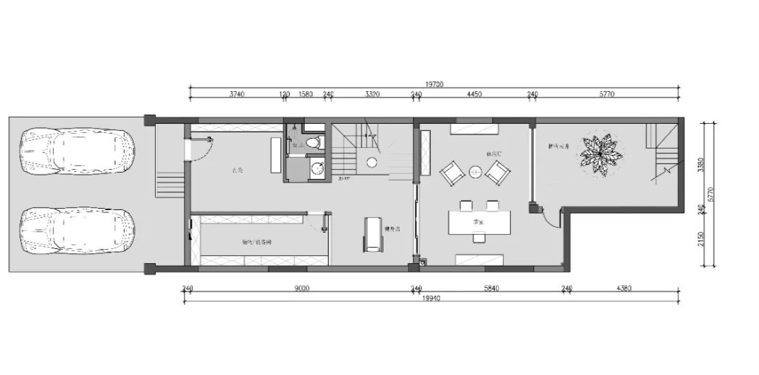
1F
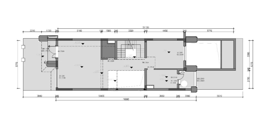
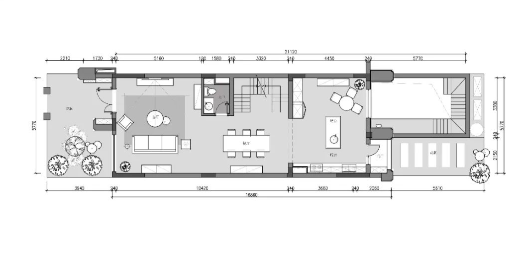
2F
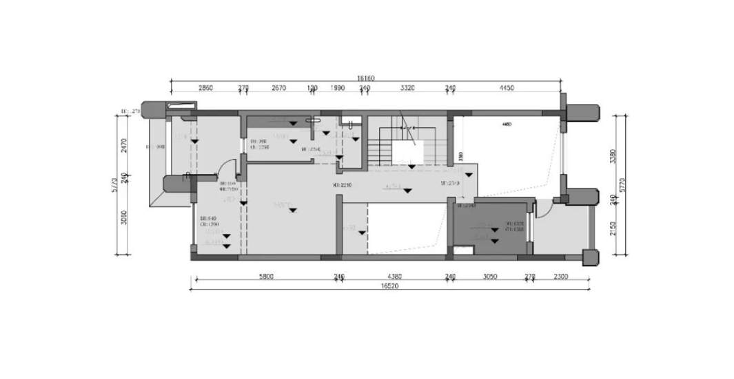
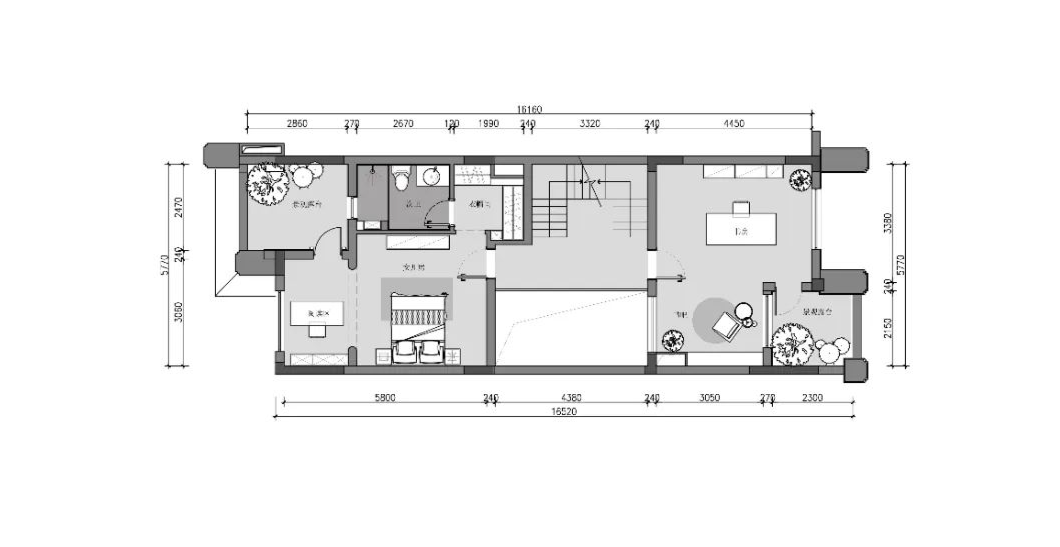
3F
左右滑动查看更多原始结构
空间划分
负一楼把原本需要室内上台阶的部分移到车库,把一楼的部分花园挖下去一部分做采光,让休闲厅、茶室也能享受到花园的景观。
一楼是主要设立客厅、餐厅和厨房,厨房设立了一个小餐桌,方便夫妻两人吃饭时用餐。同时,将餐厅挑空,书房衔接餐厅的地方开一扇上推窗,增加互动性。
二楼为书房和小孩房,每个房间都设立了景观露台。
考虑到男业主平时工作回家较晚,为不打扰女业主休息,三楼采用双主卧设计,这不是疏远而是对对方的尊重。为了保持分开之后的衔接,发现女业主有做早餐的习惯,则临窗设计了早餐吧,为夫妻俩开辟专属独有的交流空间。
-1F
1F
2F
3F
左右滑动查看更多平面布置
设计机构 | 岭众联合-田艾灵设计
全案空间主理设计师 | 彭洋洋
软陈设计师 | 杨茜
项目地址 | 重庆龙湖·紫云台
项目面积 | 400㎡
项目风格 | 自然风格
软陈产品 | 桓墅空间艺术设计机构
项目模式 | 全案高定
岭众联合-田艾灵设计机构(简称 EIID),以 2002 年创立品牌十二分设计的田艾灵女士领衔,二十年经验厚积薄发再创立的精分品牌,专注于服务对设计高定制化、对系统落地能力高需求的专属客群,涵盖私宅和商业项目。2022 年品牌落地于上海,在上海、重庆设有办公地点。以“开创新空间、创意就是创造空间与人的记忆。”为设计理念,擅长用泛艺术化手法打造真正为人所能顺畅使用,引起艺术、情绪共鸣的设计。
创始人&艺术总监田艾灵二十年如一日的专注成就「设计师」和「创业者」双重身份,同时带领十二分空间设计、桓墅空间艺术、岭众联合-田艾灵设计三大设计品牌。作品多次斩获美国、意大利、英国、法国等国际大奖。
推荐阅读
▽
涅槃重生,“老破小”的明媚春天
空间与色彩的情绪表达 | Max Aparovich
联系设计品鉴
客服
消息
收藏
下载
最近



































































