查看完整案例


收藏

下载
©崔旭峰 时差影像
校园的设计,更具体地说是一种复杂条件约束下的空间经营,犹治印之法,在方寸之内通过减法操作,要有天和地留给孩子们嬉戏,也要有街有巷,有孩子们能读懂的“古韵”。
感谢象外营造工作室。
2019 年底至 2020 年初,一场突如其来的疫情,拖慢了我们前进的脚步,也让北大新世纪章丘实验学校的建造进度受到了较大影响。幸而,在各方的共同努力下,我们的校园还是如期和孩子们见面了。
▲校园鸟瞰崔旭峰时差影像
▲绣惠故城东延轴线上的校园
崔旭峰 时差影像
校园所在的绣惠,曾是历史上名城章丘的治所。女郎山下,绣江河畔,往来“如入画图邑”。
▲校园与绣惠故城的环境关联
象外营造工作室
在章丘新的总体发展愿景中,绣惠故城将成为重要的城市文旅综合体和慢生活小镇。
位于故城轴线东延节点上的校园,将不可避免地受到故城传统风貌的控制。
▲紧凑的用地犹如一方刻印
崔旭峰 时差影像
▲主入口
崔旭峰 时差影像
▲立面细节尚待完善的剧场
崔旭峰 时差影像
3.17 公顷的校园用地,需要容纳 1300 名孩子的学习生活。根据校方提供的课程和运营模式资料推算的建筑规模达到 4.8 万平方米。以“新”为内核的教育诉求,和故城的历史风韵,在接近大城市中心城区土地利用强度的紧凑场地内发生碰撞。
▲校园空间的生成过程
象外营造工作室
校园的设计,更具体地说是一种复杂条件约束下的空间经营,犹治印之法,在方寸之内通过减法操作,要有天和地留给孩子们嬉戏,也要有街有巷,有孩子们能读懂的“古韵”。
▲教学区
崔旭峰 时差影像
▲生活区
崔旭峰 时差影像
突破北方环境条件极限的容积率意味着校园在垂直维度的发展是一种必然策略。架空运动场形成的半地下空间提供了室内运动场所和寄宿制学校必须的通学集散场地。更具意义地,随着运动场标高的抬升,西侧并置的教学和生活空间中,学生们大量的日常活动也被提升至距离阳光更近的地方。
丰富的空间层次
象外营造工作室
▲架空运动场崔旭峰时差影像
作为垂直空间策略的副产品,校园的整体尺度也得到积极的优化。紧凑的建筑间隙,反而提供了更加接近传统街巷的体验。当孩子们在校园中的日常行走有了“穿街过坊”的体验,想必承担建造校园和引导孩子们成长责任的大人们也能够省去刻意的“古韵说教”,用更轻松的方式告诉孩子们,老祖宗留下了不少好东西。
▲“穿街过坊”的校园体验
崔旭峰 时差影像
▲室外剧场
崔旭峰 时差影像
半架空的底层空间,为校园体验的进一步丰富留出了足够的操作空间。庭院不再是尺度失真的牵强围合,它能够通过强烈的指向性传达仪式感,也能够通过向心性的暗示引导群体性的体验,可以借助形式元素的重复叠置引发思考,也可以经由多元的通行路线选择带给孩子自主选择的乐趣。
▲仪式性的入口庭院
崔旭峰 时差影像
▲教学区的向心性庭院
崔旭峰 时差影像
▲ 综合楼庭院
崔旭峰 时差影像
▲教学区庭院
崔旭峰 时差影像
▲生活区局部
崔旭峰 时差影像
▲架空运动场下的风雨操场 崔旭峰 时差影像
受到疫情的影响,校园从土建到基装的建造周期被大幅度压缩到仅剩 6 个月。建设者们日以继夜在极限的工期下保证了校园的按时交付,却也为整个校园的设计建造过程留下了诸多遗憾。仓促间,校园的宏观空间框架得到了完整呈现,却无暇考究更多触手可及的细节。先人谓之“天时不可知”,大抵可以此略作宽解。
▲校园鸟瞰
崔旭峰 时差影像
项目图纸和模型
▲模型推敲
象外营造工作室
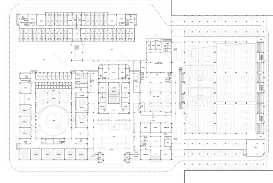
▲一层平面图象外营造工作室
二层平面图象外营造工作室
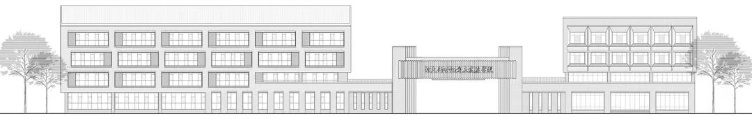
▲南立面图象外营造工作室
▲西立面图象外营造工作室
▲东立面图象外营造工作室
项目名称:济南章丘北大新世纪实验学校
设计方:山东建筑大学建筑城规学院象外营造工作室
设计时间:2019.12
竣工时间:2020.09
主创及设计团队
主持建筑师:刘伟波 项目建筑师:于文原、张增武
建筑方案团队:焦尔桐、邹宝娟、张洪川、杨银娟、王洪强、许兆淏、袁龙玉、吴新超
施工图团队:山东建筑大学设计集团有限公司第四分院
项目地址:济南市章丘区绣惠街道
建筑面积:4.8 万㎡
摄影版权:崔旭峰 时差影像
客户:北大新世纪教育集团
小号小号
客服
消息
收藏
下载
最近




































