查看完整案例


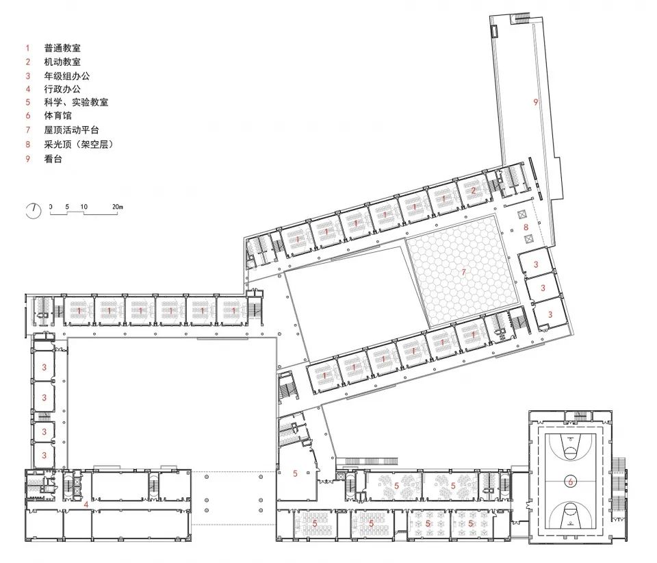
收藏

下载
报告厅屋顶平台©章鱼见筑
感谢浙江大学建筑设计研究院有限公司
随着教育理念的不断发展,现代化教学模式也日趋成熟,它不断推动滞后的建筑设计理论顺应时代发展的需求,催生出更加贴合现代化教学模式的现代小学校园设计。本项目聚焦老城区重生的重要地段,面临城市用地紧张、邻里生活流失、自然互动消亡等问题,我们提出“童年在校园中穿行”的构想,以适应现代化教育的时代背景,通过创新的操作手法,回应项目用地高度集约的规划条件,为儿童创造更多的活动空间。
▼老城新生 ©章鱼见筑
项目背景
2016 年,淮安市老城规划更新,中心两区合并成立清江浦区,并于钵池山公园北侧设立水渡口中心商务区及淮安高端住宅板块。区域空间密度加剧、人口膨胀迅速、学位需求扩增,本项目应运而生。
根据业主要求,校园设定 9 轨 54 个班级,配建 63 个普通教室(含机动教室)、若干专业教室、行政办公用房、图书馆、500 座餐厅,500 座报告厅、300m 田径场、两片篮球场、地下车库等,总建筑面积 4.5 万平方米,容积率约为 1.2,远高于江苏省规定的合理小学容积率 0.8 的要求。
▼校园综合体 ©章鱼见筑
复合/链接——消融界阈的校园综合体
综合不规则地形的约束、高容积率的用地条件、校园设计规范的限制,我们设计出布局更高效的校园综合体。
300m 操场只能南北向布置于场地东侧,建筑功能空间则以围合之势集中于场地西侧:首先布置行政楼与科学实验楼平行于南侧支六路,通过两层连廊限定校园主入口,普通教室分三块布置于场地北侧,并旋转一定角度,使得庭院以开敞的姿态面向操场东侧的城市。其次,年级组办公则作为服务功能,结合交通,以南北走向链接行政楼、科学实验楼与普通教室。
▼满铺 旋转 链接 倒置©UAD
最后体育馆嵌入科学实验楼东端起头,餐厅厨房压住普通教室东北角收尾,利用水平连廊和垂直楼梯作为骨架,设计将所有教学空间复合为一个全天候的校园综合体,呈现流体的建筑形态。原本边界分明的功能空间编织交错,屋顶、平台、走廊、室内的界限逐渐模糊,儿童学习和游戏的空间多出了无限可能。
▼总平面图 ©UAD
顺应链接之势,主立面以木纹铝板勾勒出水平窗洞,通高的室外平台打断水平窗洞,营造长长短短的韵律和节奏;连续的敞廊栏板设计多个 15m 长的花坛以及 6m 长的栏杆,打破过长的交通空间带来的压抑感受,也为校园增添了生动活泼的氛围。
▼校园主立面 ©章鱼见筑
丰富的光影 ©章鱼见筑
▼节奏和律动 ©章鱼见筑
▼庭院立面 ©章鱼见筑
倒置/漂浮——归还儿童在地奔跑的权利
建筑的创新往往得益于科技的进步,垂直交通的介入助力建筑高度不断突破,一如地块周边密布的百米高层。然而城市用地紧张导致建筑的过度垂直生长,最终疏远了人们与地面的距离。
通过归纳和梳理,笔者将小学主要的功能空间分为两类,一类是日常使用的单元式功能空间,包括普通教室、专业教室、行政办公等;另一类是特定使用的集中式功能空间,如图书馆、合班教室、音乐教室、体育馆、报告厅、餐厅等。
在本项目设计中,由于用地有限,集中式功能无法获得足够的空间独立布置,因此我们倒置校园两大功能类型,将集中式功能与地面结合,把图书馆、音乐教室、报告厅、餐厅等功能分散布置于底层,支撑起单元式功能整合的完整教学体量,营造悬浮之态。
▼漂浮的校园,Floating Campus©章鱼见筑
校园以米白色质感涂料作为整体基调,底层辅助功能采用深灰色质感涂料达到消隐的效果,来强调上部体量的漂浮感;底层集中功能利用大虚大实的设计语言跳脱出来,报告厅和音乐教室饰以木纹铝板,以近人尺度与儿童互动,餐厅的东立面设计通长落地窗,视线越过柱廊限定的檐下空间,跟随操场上的小伙伴一起奔跑。
▼报告厅前小剧场 ©章鱼见筑
倒置功能空间,一方面回应了高密度地块的设计难点,提高了多样功能空间之间的易达性,另一方面为儿童释放了大量的地面活动空间,把在地奔跑的权利还给儿童,让他们可以仰望星空,拥抱大地。
▼在地奔跑 ©章鱼见筑
流动/透明——电影长镜头式的空间体验
“时间必须流动起来,空间感受才真实。”(金秋野《面壁·破壁》)西方传统绘画讲究透视和视点,画作仅表现一个空间;二十世纪初,立体主义艺术流派的兴起打破了绘画手法的定式,追求碎裂、解构、重组,顺应人们在连续时间和空间里认知事物的习惯,并推动了建筑学理论的发展。柯林罗和罗伯特斯拉茨基于 1964 年发表《透明性》,提出了“物理透明性”与“现象透明性”的概念。物理透明性表现在材质的透明度,视线可以穿越;而现象透明性正是来源于立体主义,指一系列空间相互遮挡相互渗透,却又能被完整感知的现象。
▼架空层的活动课 ©章鱼见筑
本项目设计出电影长镜头式的空间体验路线:驻足合班教室旁的通道,眼前是去往报告厅舞台表演的敞廊,敞廊前是做课间操的开阔广场,抬头可见踢毽子比赛的报告厅屋顶平台;穿越广场,是报告厅入口逐级升起的下沉小剧场,可以围绕多排圆柱捉迷藏的架空层,和架空层外水池边写生的景观水院;水院尽头布置了田径场和篮球场,还有跑向室内篮球馆的大台阶;沿着田径场的楼梯走上二层的看台,视线穿过餐厅采光天窗的架空平台,又见踢毽子比赛。
报告厅屋顶平台©章鱼见筑
如同电影的长镜头一样,脚步不断前进,故事不停发生,空间无限流动。校门上方连廊的木色格栅和彩色玻璃借景城市;山墙面的“思”“学”“知”“行”四个大字,都在阳光的投射下,呈现出丰富的光影效果;饮水处不同暖色的洞口则是看到了多彩的未来。
▼借景城市 ©章鱼见筑
多彩的未来©章鱼见筑
得益于倒置的功能布局,营造出多样的近地活动空间;细节的设计,材料的选择,又强化了多重空间的互相渗透。在定格画面里,这些空间以一面或一角客观存在,但在儿童奔跑的连续时间里,空间却主观介入,解构重组,展现全貌,叙述着空间的透明性。
▼借景城市 ©章鱼见筑
结语
本项目设计利用高效集约的总体布局来应对狭小异形的用地,在各类条件及规范的限制下获取高容积率的建设规模,并由此触发了“归还儿童在地奔跑的权利”的设计初衷,通过倒置使用功能,释放大量近地活动场地;利用服务功能链接主要体量,将校园正空间复合为校园综合体,将校园负空间拓展为流动的交往流线,完成了童年在校园中自由穿行的构想。
项目图纸
▼一层平面图 ©UAD
▼二层平面图 ©UAD
▼三层平面图 ©UAD
四层平面图 ©UAD
▼主入口立面 ©UAD
▼敞廊立面 ©UAD
▼教学楼、展陈连廊剖面 ©UAD
项目名称:清江浦区基础教育设施建设一期工程(装配式 EPC)项目(万达小学项目)
设计方:浙江大学建筑设计研究院有限公司 UAD
公司网站:
项目设计 & 完成年份:2017 年设计,2019 年完成
建筑设计:孙啸野、唐秋萍、戴飞宇、万云程
结构设计:张正雨、陈伟、曹云中
给排水设计:王铁风、何博迪
电气设计:袁松林、袁鹏、邹帆
暖通设计:曹志刚、吴洁清
智能化设计:陈佳、倪高俊
景观设计:吴维凌、吴敌
幕墙设计:王建忠、王皆能
项目地址:江苏 淮安
建筑面积:44826㎡
摄影版权:章鱼见筑
客服
消息
收藏
下载
最近




























