查看完整案例


收藏

下载
©鲍威建筑工作室
改造后的空间为 2021 年北京国际设计周提供了展览空间,成为水彩画家作品展出的场地,实现了空间多功能应用的场景。现有改造空间以及院子剩余空间如何被更好的利用,将是在接下来几年中继续探讨的课题。
感谢
鲍威建筑工作室
设计初衷
BWAO 之前做过项目的模型漂泊在外,一直想重新回到胡同的氛围中。这次设计初始就是给这些模型在胡同中找一个家。
▲模型在胡同中的家
鲍威建筑工作室
改造背景
28 号院是靠近南半截胡同南口的一间独立院子。
▲区位图
鲍威建筑工作室
院子主体结构为一间五开间的北房,每个开间 3 米面宽,却有着近 7 米的进深,因而屋脊梁下室内净高达到了 5 米,为模型储藏展示提供了理想空间。
本次改造范围为进院门后的第一开间,其余开间有居民居住。
▲由庭院望向周围环境
鲍威建筑工作室
▲由入口望向庭院
鲍威建筑工作室
▲屋檐细部
鲍威建筑工作室
剖面与立面的挑战
本次设计出发点为对胡同房子剖面与立面应用场景的挑战。七个连续标高的平台被置入到空间中,形成了多层的建筑模型展览平台,第二层平台延展至室内,形成了工作台面,三四层平台延展成书架,整体空间形成了剖面模型展示与平面工作室的格局。
▲立面图
鲍威建筑工作室
▲剖面图
鲍威建筑工作室
立面为整扇可开启窗,当打开时,院子作为第八个标高纳入到剖面中来,完成了剖面从外到内,由下及上的连续变化,形成了与胡同房屋屋顶曲线呼应的走势。室内平台以及门窗雨棚都采用钢板与方钢焊制完成,外边统一刷水性灰色涂料,与胡同色彩协调。
▲室内一瞥
鲍威建筑工作室
▲立面窗户整扇开启
鲍威建筑工作室
▲模型空间
鲍威建筑工作室
▲模型空间背后的办公空间
鲍威建筑工作室
▲办公空间细部
鲍威建筑工作室
节省预算的考虑
改造的许多设计决策都是出于预算的考虑:之前房屋拆除墙体垃圾回填成 150 高地面;原房屋立面拆除后被用作院门和栅栏;院子铺地为之前胡同改造项目拆除后回收留下来的老砖;工作室的凳子为隔壁胡同因疫情而关闭的饭店所赠等。这些元素都在新的项目中获得了新生,增加了胡同的故事性。
▲新旧元素
鲍威建筑工作室
开放的课题
改造后的空间为 2021 年北京国际设计周提供了展览空间,成为水彩画家作品展出的场地,实现了空间多功能应用的场景。现有改造空间以及院子剩余空间如何被更好的利用将是在接下来几年中继续探讨的课题。
▲北京国际设计周展览
鲍威建筑工作室
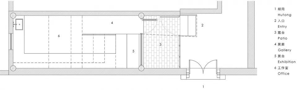
项目图纸
▲平面图
鲍威建筑工作室
项目名称:模型之家-- 南半截胡同 28 号改造
设计方:BWAO/鲍威建筑工作室
项目设计 & 完成年份:2021.04-2021.09
主创及设计团队:鲍威、黄探宇
项目地址:北京
建筑面积:25 平米
摄影版权:BWAO/鲍威建筑工作室
客户:BWAO/鲍威建筑工作室
小号小号
客服
消息
收藏
下载
最近





















