查看完整案例


收藏

下载
650miles 时尚买手店
650miles 买手店坐落于无锡市近年新兴发展的城区,事实上基地周边是快速城市化导向下的典型结果:重复的街区面貌、一致对外的商业铺位,表情一致。单调的环境导致街区氛围的缺失,设计者希望对这不足一百平方的店铺营造一个具备吸引力的小型商业空间,给平静的街区注入新活力。
将原本均质的柱网结构转换为不同体块,通过缝隙与开窗强调了视线的贯通,内外空间以白色为主通过差异化的表达带来耳目一新的感受。
立面呈现出互相咬合的拓扑关系,同时以窗洞的比例回应周边步行街区的尺度,让建筑与行人具有了某种对话的可能。
空间内部并不规则,利用这一条件创造出变化的内部环境,以光影做媒介营造出散点透视般的自由式布局,空间演绎出丰富的表情。
△ plan
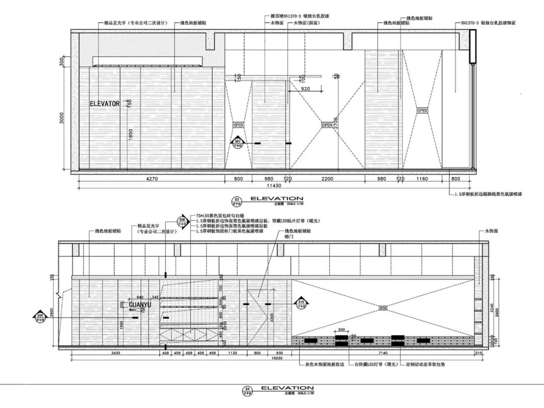
△玻璃砖外墙尺寸
△ 分析
△ 立面 A
△立面 B
项目名称:650miles 时尚买手店
项目地址:江苏无锡
项目面积:90 平方米
设计公司:南筑空间设计事务所
设计主创:张峰率 王海 陈颖 费玉祯
摄 影:陈铭
主要材料:水泥自流平、金属定制、玻璃砖
龙湖冠寓无锡日报社区
冠寓
”定位为青年生活社区,打造一个以长租公寓为核心,融合居住、社交、商业、娱乐、生活服务等功能在内的多元化社区。
对此,我们对年轻人的需求做了梳理,提出 CITY HUB 居住综合体的理念,将各个可被独立的功能通过开放空间连为一体,带来居住体验的变化与升级。
“空巢青年”是很多都市的年轻族群正面临的问题,在冠寓的设计中,我们希望建立一个注重线下社交与生活的交互空间,以空间作为媒介,设定聚会、讨论、分享学习、游戏娱乐等多个使用模式,通过运营与组织管理实现“多元生活”的构想。
冠寓日报店位于无锡市区中心位置,原为无锡日报社办公大楼,公区设计暗含了“家园”的概念,通过构架的“廊檐”,区隔服务功能与客用区域,将原来全开放的入口缩小了比例,让空间围合出向心的状态,交流与独处都能找到合适的区域。
休闲区域散点式的布局营造了轻松的氛围,空间南向被整个打开,以大面积的落地玻璃连接室内外贯通视线。
顶部的造型将视线导向了共享厨房与图书馆两个端点,以开放形态过渡安静和热闹的功能空间。
图书空间被刻意安排在了末端,转折的角度带来了安静气氛,设计将该区域抬高,一方面视野的变高获得更为独立的场域,界定功能属性,另一方面踏步与活动座椅构成了一个阶梯教室,可容纳集体分享活动。
△ 立面图纸
△ 平面图
△轴测图项目名称:龙湖冠寓无锡日报社区项目地址:江苏无锡项目面积:9000 平方米设计公司:南筑空间设计事务所设计主创:姚伟国王海深化执行:姚育铭袁雅妮主要材料:木饰面、木地板、铁板喷塑、黑色瓷砖摄 影:陈铭关于南筑设计南筑设计事务所在 2016 年成立于无锡,成员分别来自建筑、室内、陈设软装等不同专业领域,作品及研究涵盖了商业、居住、公共空间等方面,致力于结合不同文脉语境下设计的精确表达与创新。——往期推文 点击图片——
黄永才新作 NOT CLUB / 浸没式星舰酒吧,离开已知,穿越庸常
派尚设计 | 寻一处理想之所,安放身心与灵魂
首发 | MYP 设计 • 积木-- 惠州中洲理想仓销售中心
地毯不是摆设,知己知彼才能让设计更出彩
看点笔记小程序
无需电脑,只要一部手机最新尝鲜还不赶紧来试试!
客服
消息
收藏
下载
最近












































