查看完整案例


收藏

下载
△入口朝向城市街道,设计以体块感强化了界面。
平面以开放性为主,将收银与明厨结合在了一起,入口的视线也刚好能看到收银区域与上方的菜单。
△入口的视线也刚好能看到收银区域与上方的菜单。
△收银处
△厨房内景
餐饮客座区利用了原本不规则的空间做了合理化区隔,对应不同人数的就餐需求。不同的功能区域通过设计结合为一个整体,排除了不必要的装饰。
△对不规则的空间做了合理化区隔
△不同的功能区域通过设计结合为一个整体。
内部以黑白灰作为主色调,当中考虑了以材料特性作为空间质感呈现的一部分,白色硅藻泥墙顶面与灰色水磨石墙地面作为基础,辅以定制的黑色家具与吊灯。在建造过程中保留并改造了原有的局部坡顶,使空间层次更为立体。
△内部以黑白灰作为主色调
△白色硅藻泥墙顶面与灰色水磨石墙地面作为基础
△白色硅藻泥墙顶面与灰色水磨石墙地面作为基础
△入口细节
△分析图A
△分析图B
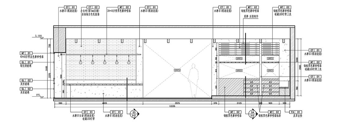
△立面A
△立面B
△平面图
项目名称: 井梅酥面
项目地址: 江苏无锡
项目面积: 100平方米
设计公司: 南筑空间设计事务所
设计主创: 王海 苏阳 张峰率 姚伟国
摄影: 陈铭
主要材料: 水磨石、硅藻泥、铁板喷塑
客服
消息
收藏
下载
最近



















