查看完整案例


收藏

下载
这个房屋的主人公是一个“非典型猫奴”,时而宠猫宠上天,时而恨不得分分钟丢掉。养猫已久,自己也带点猫的脾性,看起来随性,却对某些事有很深的执念。在自己房屋的设计上,在一个单层面积 40㎡的小小 LOFT 里,折腾出不一样的花样!
原始平面图
单层面积 40㎡的 LOFT
住着一人一猫,屋主准备把自家打造成一个简洁又大气、清爽有质感的“单身豪宅”。
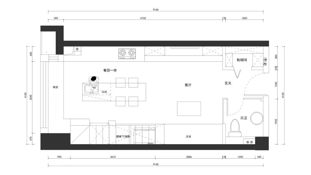
一楼平面图
在这个小面积的 LOFT,要想满足屋主的各种需求可真的是不简单,屋主想要的简洁大气,就要在设计上,首先考虑采光及视野,然后要选用一些轻巧,干净的家具。
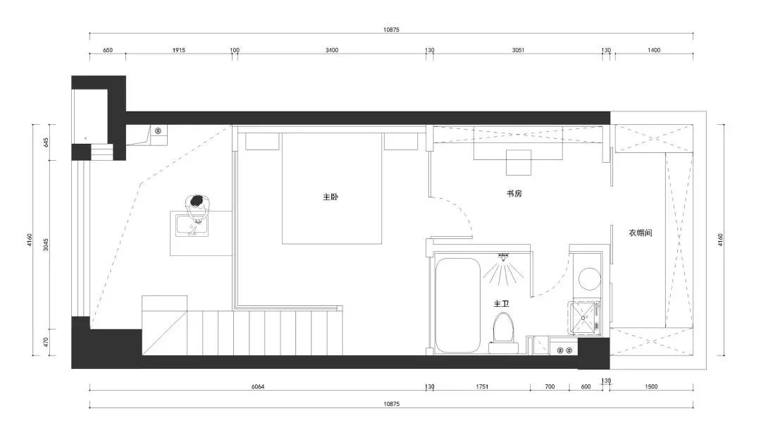
二楼平面图
要实现屋主的要求,在装修上就要做出这些改动:1、把原来厨房和卫生间的砖质敲掉,这样会在视觉上让空间变得更大一些;
2、卧室和卫生间用玻璃进行隔离,因为屋主是一个人住,隐私性要求不是很强;
3、原户型有一整面超大落地窗,为了让房屋的采光能更好。这个区域继续保留下来。
硬装上要做的就是以上,而
在软装上,首先选用轻巧通透的家具,房屋的色系采用的是黑白灰简约的风格,一起来看看改造之后的样子吧!
客厅进门,一眼就能看清楚整个房屋的格局,在区域分割之间采用了不用的色系,黑白色的变化再加高整合度布局,整洁又大气。
沙发的左右侧分别是柜子和洗手间,为了让沙发不突兀,把沙发打造成一个半包围盒子的设计,这样就和储物柜直接连接在一起了,躺在这样的沙发上,给人很温馨的感觉。
沙发对面的电视背景墙采用的是黑色的装饰,和旁边白色的橱柜搭配在一起,非常简约大方。
屋主是一位烹饪爱好者,在餐厅和厨房这边的空间下了大工夫,餐桌和操作台连接在一起,对于一个人做饭空间完全足够。
吧台两端的顶天立地柜有很强的收纳作用,吧台选用的是结实又轻盈的石英石。
烤箱、冰箱完美嵌入橱柜,还有平时烧菜用的油盐酱醋也可以收纳到橱柜中,让台面一直保持着整洁。
为了隐藏起空调管道,在墙面做了石膏板造型,超大的落地窗让采光非常足够,夜幕降临坐在餐桌上对着窗外的美景,吃一顿美味的晚餐是多么的惬意!
屋主的厨艺秀
一个好的厨房,会让人下厨的次数也增多了不少,厨艺也越来越高超。
一楼卫生间只有一个洗漱台和马桶,镜子也是定制的,整面墙都是镜子的设计,会让小空间在视觉上变大。
在做玻璃墙面无边框设计时,要先做好凹槽基层,在泥工阶段预埋配件,最后把玻璃放进去。
黑白相间的瓷砖作为楼梯,扶手是透明玻璃材质的,要注意的是楼梯下方一个小小的空间,那就是猫主人的小窝哦。
卧室在二楼,超大的落地窗让二楼的采光也非常好,定制的床配上黑色的床头柜,玻璃墙非常考验师傅的手艺。
书房就在卧室旁,黑色书架非常简约大方。
主卫的装修也是将每一尺寸都利用的很好,洗衣柜和干衣机布置在梳洗台的一旁。
躺在浴缸里,看着窗外的夜景再配上一个高脚杯,再忙碌的生活在这一瞬间,也会被治愈了!
书房++ 主卫是相对着的,因为二楼是属于私人空间,所以用的是玻璃进行隔断。
不管是简约的装修风格,还是多种色彩,家不管应该设计成什么样子,都应该是我们自己内心最喜欢的模样。
客服
消息
收藏
下载
最近


























