查看完整案例


收藏

下载
项目地址:武汉市 汉口城市广场
设计机构:桃弥空间设计
这是一个标准的常见的两室两厅的户型,女业主是工装的软装设计师,所以接受度很高,沟通也不费劲,有自己的想法也很能接受我们的建议,所以注定有个良好开始,美好的结束。
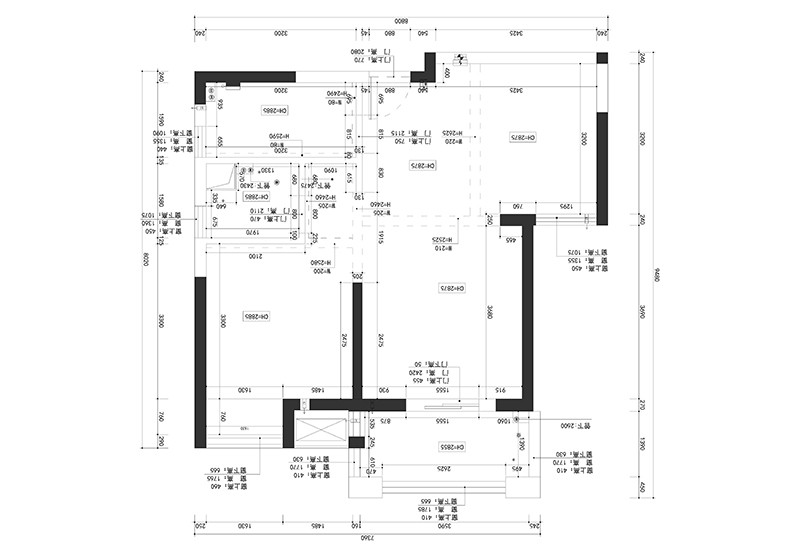
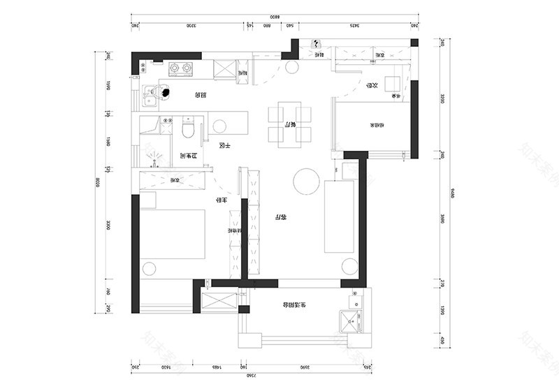
户型面积不大,业主脑洞却很大,全程对于户型改造的基本中心思想是,能拆就拆,能不要墙就不要墙,不想给自己添堵,要!Open!要!敞!开!……所以,基本上除了必要的墙体以及承重墙之外,都采取了其他隔断方式来划分空间与空间的界限,也模糊了空间与空间的界限。嗯……要Open。
在户型的改造上,划分干区与厨房的墙体全部拆掉,化身开放式厨房和开放式干区,干区用石英石台面以及不锈钢圆盆,功能上可以兼任岛台的作用,进行临时的备餐和清洗果蔬,可以弥补厨房先天操作台面的不足,也实现了干湿分区,把寸土寸金又关乎生活质量的卫生间面积使用最大化。因此,干区变成了多么善解人意的存在~~次卧的分隔也没有用到实墙,而是以铁艺加玻璃隔断的形式打破了僵硬的界限,开启窗帘的时候,透过隔断次卧作为书房一览无遗,女主人一边做饭一边可以观察到爱人在书房的举动,避免“孤独烹饪”。家就是应该服务于家人,加深家庭成员之间的联系。阳台门自然也是拆掉啦。
地毯是淘来的印度孤品,猴子台灯是Seletti的,大的玫瑰金果盘出自Tom Dixon。
金色边几是Jaime Hayon的T-TABLE蘑菇边几。当时找了假植物给业主,女业主傲娇脸:“我要买活的,自己养!”掌声……
整排电视柜是为了增加储物,像长的手提卷纸之类的大尺寸日用品,在偏小的户型里更要考虑到如何放置,柜子不到顶是因为比例问题,以及适度的留白会有拉伸空间的效果。
正面对阴阳角的视角……
餐桌来自国内原创品牌XiangCASA,餐椅分别是出自muuto,以及Jaime Hayon设计的Milà Chair,花瓶则是出自Jonathan Adler之手。隔断的另一面是次卧兼书房,墙面采用了上下错位的分色,弱化了阴阳角,把原本的三个面变成了两种色块的划分,等于把空间的面揉碎了重组,使空间更加俏皮活泼,而且无论是横向还是纵向,视觉上都得到了拉伸,并且随着光影和站立位置的变化,感受会有所不同。事物的边界某一程度上就是主观意识来判定的,一旦挣开原有的模式,一切不可能都可以变成可能。
干区洗漱台兼任岛台的职能,下面的柜子利用厚度也做了分隔,面对厨房以及面对干区都有独立的柜内空间可以开门使用,上面用层板的方式进行简单的区域划分,镜子采用壁挂的形式,异于常规的东西都需要跟业主沟通确认才能实施。左边分别是主卧门和卫生间的门。
站在洗漱台看厨房,做好的饭菜可以直接放在洗漱台上备餐。
主卧的床头采用了女业主的心头好,也是当下流行的脏粉色,挂盘和烛台出自Fornasetti,宇航员花瓶出自Seletti。右边的衣柜也是为女业主特制的,五扇柜门,一扇是平开的,四扇是折叠的,柜内全部都是打通的,因为据说每组柜门独立的话,她永远不知道要找的衣服在哪一组柜子里,所以索性一览无遗好了。
次卧的墙绘依旧出自Jaime Hayon,层板架出自丹麦品牌Bloomingviile。左边是一整面的衣柜,满足储物。
家里的每一寸地方都不能辜负,阳光和你都在,才是想要的未来。矮凳出自Kartell。
北欧 住宅 色彩 清新
客服
消息
收藏
下载
最近

















