查看完整案例


收藏

下载
©Sergio Pirrone
降落的飞船,负载自然。这套房子的主人是一位年轻的飞行员和他的家人,为了他未来的家居空间,房子轻巧地落在了仁川机场附近的新开发小镇的地块上。
©Sergio Pirrone
©Sergio Pirrone
建筑 “飞行”
我们将韩国传统的建筑形态特征与飞行员的日常行为特征即飞行联系起来,试图象征性地构建房屋的文化特征。在院子顶上飞行的 Rumaru 的承载面屋顶和冰冻的家的动态运动,隐喻了航空公司的飞行。同时,为了抵消飞行的不稳定性,我们规划了韩国传统建筑结构(客厅与地面接触)的暖石系统的坐下形式。这样,我们试图通过考虑天空和土地之间的环境平衡,赋予住宅常规化的稳定性。
©Sergio Pirrone
▲剖面图 2
©Sergio Pirrone
建筑的“自然”。我们将韩国传统建筑师的院子、花园、罗丸亭等空间和景观元素转化为现代住宅方案,应用住宅的主要外部空间,并在屋顶上进行植树造林,当你从庭院走到屋顶时,它为倾斜的屋顶花园提供了一个景观,允许漫步循环。使住宅与自然共存,形成景观山丘。
©Sergio Pirrone
©Sergio Pirrone
©Sergio Pirrone
低预算建筑
我们必须克服小的建筑成本预算,为了实现设计的概念结果,如程序和空间术语,所以我们必须建立一个经济和简单的预算计划。这意味着隔热性能要高,外墙材料要用便宜的传动装置,不使用花粉、步伐和从动装置,我们要暴露混凝土框架面和混凝土砌块墙面,使结构材料成为饰面材料,使总造价降到最低,创造一个简单的室内空间。
©Sergio Pirrone
©Sergio Pirrone
©Sergio Pirrone
©Sergio Pirrone
©Sergio Pirrone
©Sergio Pirrone
©Sergio Pirrone
©Sergio Pirrone
©Sergio Pirrone
©Sergio Pirrone
©Sergio Pirrone
©Sergio Pirrone
©Sergio Pirrone
©Sergio Pirrone
©Sergio Pirrone
项目图纸
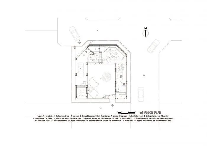
▲一层平面图
▲二层平面图
▲PH 平面图
▲屋顶平面图
▲正立面图
▲右立面图
▲背立面图
▲左立面图
▲剖面图 1
▲剖面图 3
项目信息
建筑师:IROJE KHM Architects
面积: 195 m²
年份:2017 年
摄影:Sergio Pirrone
制造商:LG Electronics, posco, MOUN
建设者:Moun construction
客户:Sungwon Seo
负责建筑师:HyoMan Kim
设计团队:Jiyeon Kim, Mihwa Oh
城市:Incheon
国家:韩国
客服
消息
收藏
下载
最近




































