查看完整案例


收藏

下载
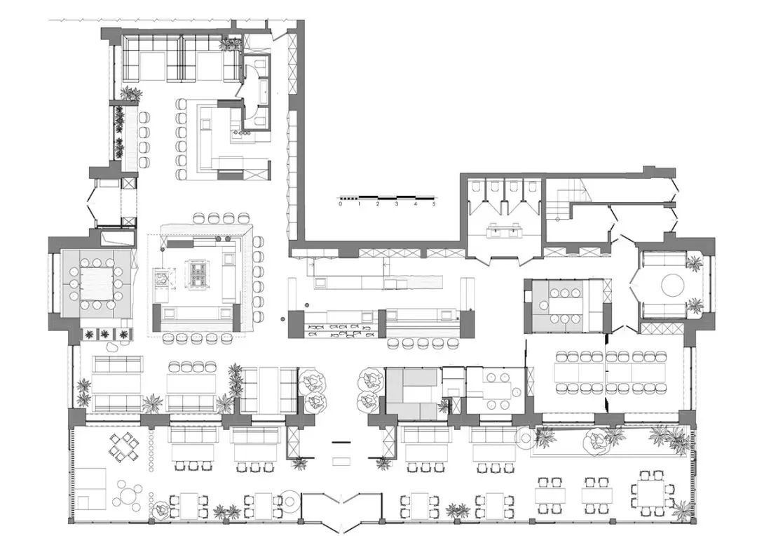
项目类型:餐厅
项目面积:800平方米
项目地点:乌克兰基辅
材料:木材,钙华
主创设计:Sergey Makhno,Illia Tovstonog
设计公司:Sergey Makhno Architects
摄影:安德烈·阿夫登科
Fujiwara Yoshi是一家拥有乌克兰灵魂的日式餐厅,这是你不想离开的迷宫。
在这里,美学与功能融为一体,管道变成灯,花朵从天花板上长出,苔藓-从盘子上长出。这里是您休息眼睛,屏住呼吸并品尝日本美食的地方。
跟随追逐者,您将永远不会迷路。
应大厨藤原义广的要求
,这里由Sergey Makhno Architects工作室设计,是乌克兰最大的日本餐厅。
Fujiwara Yoshi是一个800平方米的迷宫,旨在迷失于日本文化的精髓,甚至不试图寻找出路。您的眼神会被细节所吸引,请注意每一个细节。
“我们的主要任务是传达日本哲学,而不是与某些陈词滥调大呼小叫。这家餐厅的设计是日本规定的舒适程度,但带有乌克兰精神。”,谢尔盖·马赫诺建筑师工作室创始人谢尔盖·马赫诺 说。
寿司师傅在大型富士灯下制作即食卷,谢尔盖·马赫诺(Sergey Makhno)亲自设计了它们。
“ 大多数日本餐馆都是低调,小型而绝对舒适。因此我们非常注意布局,以便同时容纳250位来宾。但是,这里仍然有一种舒适和安心的氛围。 ” 谢尔盖·马赫诺建筑师事务所的首席建筑师Illia Tovstonog说。
客服
消息
收藏
下载
最近




























