查看完整案例


收藏

下载
融创 • 一池半海
有时,外面下着雨心却晴着;又有时,外面晴着心却下着雨。心晴的时候,雨也是晴;心雨的时候,晴也是雨。
——汪国真《雨的随想》
△窗前一池清水,宛如一面明镜
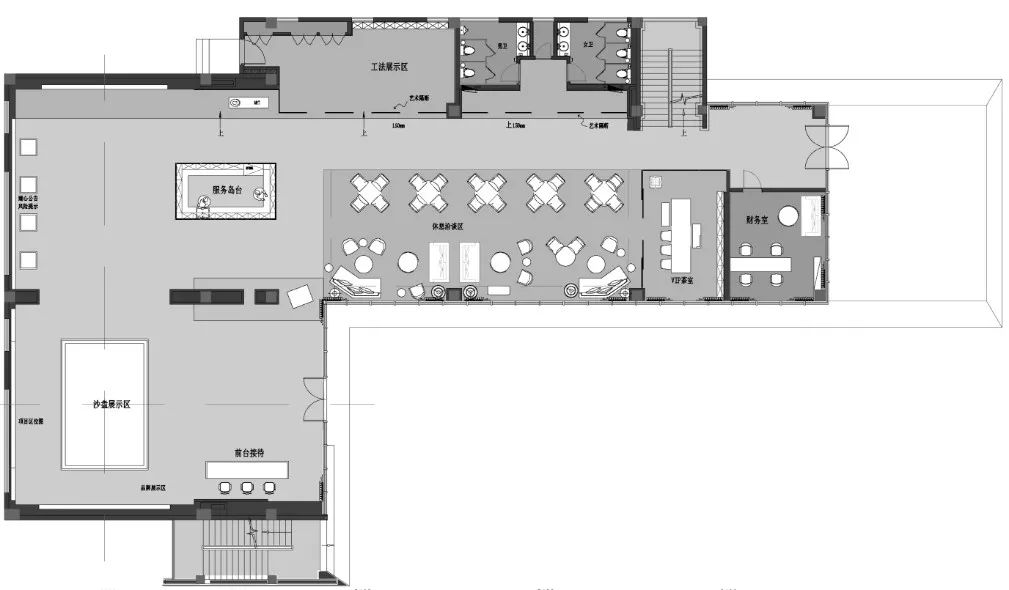
一池半海售楼处是标准的L型单体两层建筑,整体挑高的玻璃幕墙,即便是在室内,也能把中庭的水景一览无余。
△ 售楼处前台
前台设置在第一时间能接触到客户的入口处。
△ 沙盘区
沙盘展示区与入口成轴线正对,沙盘上方,一颗颗晶莹剔透的琉璃艺术吊灯纵横排布,似雨滴落下,时间定格,落雨成诗,撩人心弦。
△水吧区
顺着空间的动线,移步至水吧区。水吧区设置在沙盘展示区和休闲洽谈区的之间,能更好的兼顾到两边的服务功能区。
△ 艺术装置
高低错落的玻璃盘,在灯光的照射下,地面形成阵阵光晕,如同水面上大大小小的涟漪。“嘈嘈切切错杂弹,大珠小珠落玉盘。”此处借用白居易诗句来形容,再合适不过了。
△ 休闲洽谈区
洽谈区倚靠窗边,窗外一片水景。室内大面积以天然木色为基调,暖灰色系皮革与棉麻布艺结合的家具,营造舒适的洽谈区。
△童乐区
|上一步台阶,便是另一片天地
小朋友们在此嬉戏玩乐。
巨型艺术雕塑KAWS显得格外亮眼,小小的家具错落有致,书架上随处可见童趣满满的绘本图书,可爱的卡通摆件点缀着每个角落。
△VIP茶室
屏风模糊了空间界限,茶室似隔似合,艺术画的选择以留白注解,若隐若现。器皿选色素雅,插花艺术更是展现了不一样的空间诗意美学。文人墨客,清茶一杯,谈吐风雅;芸芸众生,一茗在手,静谧中返观自心。
△ 雨落玉盘定画在空中,泛起层层涟漪。
△丝丝雨滴织成帘
售楼处效果图
△售楼处平面图
淳则之居
淳则之居为四室两厅三卫的叠拼户型,整体面积为119平方米。本案选用暖灰色为主色调,局部木纹肌理和大理石,使空间散发出当代的气息。
△ 客厅
△ 餐厅
餐厅与客厅做好区分,餐厅背景墙选用整面的暖色木纹,营造温暖又和谐的用餐环境,既增加了整体的区块感,也最大限度的保留空间的通透性。
△厨房
△长辈房|简洁雅致的材料工艺点缀空间
△ 主卧
△ 次卧
效果图
△一层平面图
△二层平面图
季悦之居
季悦之居为三室两厅两卫的叠拼户型,整体面积为142平方米。空间主色调为浅灰色,微妙的灰色变化,层层延伸,营造紧密而又轻盈飘逸的变化。绿植、阳光、窗外的风景与室内的空间,虚实相生,交融一体。
△餐厅
△ 客厅
△ 主卧
△ 次卧
△儿童房
△ 卫生间
效果图
△ 一层平面图
△ 二层平面图
项目名称:融创三亚南田御泉项目
项目地点:海南省三亚市
项目面积:售楼处
1017㎡;叠拼AC:119㎡、142
完工时间:2019年12月
硬装设计:胡中维室内建筑设计
软装设计:胡中维室内建筑设计(售楼处)软装执行:胡中维室内建筑设计(售楼处)灯光设计:深圳市明亮照明有限公司
项目摄影:大斌摄影
胡中维室内建筑设计公司设计总监胡中维"设计就是找回其本来拥有的美由胡中维先生创立的胡中维室内建筑设计有限公司,是一家植根于东方文化,对地域文化当代化及可持续发展进行践行探索的空间设计公司,中维设计提供国际化的建筑、景观、室内、软装,一体化设计服务,拥有全球顶级的合作伙伴;尤其在绿色建筑,精品酒店,极简空间等领域。
在项目创意中,中维秉承"设计就是找回其本来拥有的美"为设计原则,根据项目的地域性,空间特性,客户特性品牌特性,探索寻求属于每个项目的独特气质。关注空间精神性,减少空间中人为的因素,尽一切的可能让空间呈现其因地域、气候、阳光、通风形态、质地......等,在人与空间及原生态之间寻求最佳平衡点,减少空间中的符号性,因为所有的符号都代表过去的某个时间,只有让空间成为谦卑的介入,才能呈现出空间中人与自然的变化之美。
客服
消息
收藏
下载
最近


























































