查看完整案例


收藏

下载
有时,外面下着雨心却晴着;又有时,外面晴着心却下着雨。心晴的时候,雨也是晴;心雨的时候,晴也是雨。
——汪国真《雨的随想》
△ 窗前一池清水,宛如一面明镜
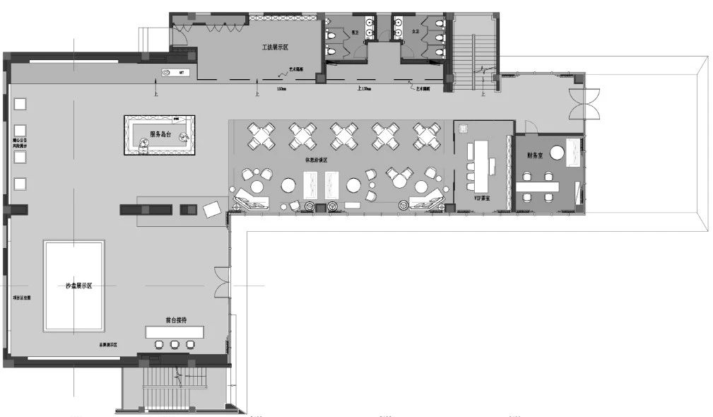
一池半海售楼处是标准的L型单体两层建筑,整体挑高的玻璃幕墙,即便是在室内,也能把中庭的水景一览无余。
前台设置在第一时间能接触到客户的入口处。
沙盘展示区与入口成轴线正对,沙盘上方,一颗颗晶莹剔透的琉璃艺术吊灯纵横排布,似雨滴落下,时间定格,落雨成诗,撩人心弦。
顺着空间的动线,移步至水吧区。水吧区设置在沙盘展示区和休闲洽谈区的之间,能更好的兼顾到两边的服务功能区。
高低错落的玻璃盘,在灯光的照射下,地面形成阵阵光晕,如同水面上大大小小的涟漪。“嘈嘈切切错杂弹,大珠小珠落玉盘。”此处借用白居易诗句来形容,再合适不过了。
洽谈区倚靠窗边,窗外一片水景。室内大面积以天然木色为基调,暖灰色系皮革与棉麻布艺结合的家具,营造舒适的洽谈区。
| 上一步台阶,便是另一片天地
小朋友们在此嬉戏玩乐。巨型艺术雕塑KAWS显得格外亮眼,小小的家具错落有致,书架上随处可见童趣满满的绘本图书,可爱的卡通摆件点缀着每个角落。
屏风模糊了空间界限,茶室似隔似合,艺术画的选择以留白注解,若隐若现。器皿选色素雅,插花艺术更是展现了不一样的空间诗意美学。文人墨客,清茶一杯,谈吐风雅;芸芸众生,一茗在手,静谧中返观自心。
△ 雨落玉盘定画在空中,泛起层层涟漪。
淳则之居为四室两厅三卫的叠拼户型,整体面积为119平方米。本案选用暖灰色为主色调,局部木纹肌理和大理石,使空间散发出当代的气息。
餐厅与客厅做好区分,餐厅背景墙选用整面的暖色木纹,营造温暖又和谐的用餐环境,既增加了整体的区块感,也最大限度的保留空间的通透性。
△长辈房 | 简洁雅致的材料工艺点缀空间
季悦之居为三室两厅两卫的叠拼户型,整体面积为142平方米。空间主色调为浅灰色,微妙的灰色变化,层层延伸,营造紧密而又轻盈飘逸的变化。绿植、阳光、窗外的风景与室内的空间,虚实相生,交融一体。
项目名称:融创三亚南田御泉项目
项目地点:海南省三亚市
项目面积:售楼处1017㎡ ;叠拼AC:119㎡、142㎡
完工时间:2019年12月
硬装设计:胡中维室内建筑设计
软装设计:胡中维室内建筑设计(售楼处)
软装执行:胡中维室内建筑设计(售楼处)
灯光设计:深圳市明亮照明有限公司
胡中维室内建筑设计公司 设计总监 胡中维
设计就是找回其本来拥有的美
由胡中维先生创立的胡中维室内建筑设计有限公司,是一家植根于东方文化,对地域文化当代化及可持续发展进行践行探索的空间设计公司,中维设计提供国际化的建筑、景观、室内、软装,一体化设计服务,拥有全球顶级的合作伙伴;尤其在绿色建筑,精品酒店,极简空间等领域。
在项目创意中,中维秉承设计就是找回其本来拥有的美为设计原则,根据项目的地域性,空间特性,客户特性品牌特性,探索寻求属于每个项目的独特气质。关注空间精神性,减少空间中人为的因素,尽一切的可能让空间呈现其因地域、气候、阳光、通风形态、质地......等,在人与空间及原生态之间寻求最佳平衡点,减少空间中的符号性,因为所有的符号都代表过去的某个时间,只有让空间成为谦卑的介入,才能呈现出空间中人与自然的变化之美。
客服
消息
收藏
下载
最近

























































