查看完整案例


收藏

下载
两馆连接处设置门厅入口 ©CreatAR_Images
自20世纪80年代以来,毗邻港澳的南方城市珠海从一个小渔村发展成为中国最负盛名的度假胜地之一。珠海依山傍海,岛屿、海湾星罗棋布,吸引了国内外众多游客。同时,珠海在上世纪80年代就成为中国最早的自由贸易区之一,持续保持着经济高速发展。2009年,gmp·冯·格康,玛格及合伙人建筑师事务所赢得了珠海博物馆的设计竞赛,这座文化场馆将珠海的滨海文化历史与城市结构发展结合一体,将极大地丰富珠海市的文化生活资源。
▼项目外观 ©CreatAR_Images
▼项目鸟瞰 ©CreatAR_Images
这座新建成的城市博物馆位于珠海海滨,背山临水,毗邻郁郁葱葱的城市绿地公园,与珠海大剧院隔海相望。新两馆建筑,即博物馆和规划展览馆,与大剧院一起构成珠海市北侧的入口地标。
▼博物馆毗邻城市绿地公园 ©CreatAR_Images
▼博物馆前的景观 ©CreatAR_Images
博物馆的设计基于矩形的基本几何造型,整体建筑由两块体量组成,一个竖直向上,一个水平延展,共同打造出极具雕塑感的外观。这种极富张力的二元性既诠释了山脉与海岸之间的地理关系,又体现了博物馆的布展设置:在博物馆里,访客将在珠海的过去和未来之间自由游走。gmp的建筑师将这一二元性巧妙地融入统一的建筑构造中。
▼分析图 ©gmp Architekten
访客从沿海道路经两馆连接处的门厅进入博物馆。南部面山的水平建筑分为三个展览层,展示珠江三角洲沿海地区悠久的城市发展历史。而城市规划展览馆共有八层,展厅层叠排列,访客沿着螺旋上升的步道拾步而上,可进一步了解珠海的城市规划,参观流线的终点是容纳30 x 40米城市模型的展厅。内部的螺旋步道作为展览的一部分连接展厅各层,当然,访客也可从外部通过室外开阔的阶梯进入博物馆。
▼两馆连接处设置门厅入口 ©CreatAR_Images
▼八层的城市规划展馆 ©CreatAR_Images
▼连接两个展馆的室外平台 ©CreatAR_Images
▼大厅 ©CreatAR_Images
▼走廊和休息区,可以看到海面景色 ©CreatAR_Images
▼参观流线终点的城市模型 ©CreatAR_Images
立面设计延用了二元性的基本设计理念。浅色天然石材的实体横向墙面与玻璃、金属立面部分在光线的明暗逆转间形成强烈对比,并清晰地勾勒出城市规划展览馆的螺旋外观。可移动式遮阳系统由铜黄色铝材构件组成,印刻出优雅传统的中式纹理。夜幕降临,柔和灯光点亮螺旋外观立面,弱化了石质水平墙面的厚重感,使建筑在夜色中更加剔透灵动。八层的建筑立面以全玻璃幕墙代替了石质幕墙,在此香洲湾的景致可以尽收眼底。
▼立面细部 ©CreatAR_Images
▼夜景鸟瞰 ©CreatAR_Images
项目图纸
▼总平面图 ©gmp Architekten
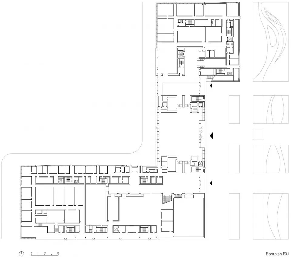
▼一层平面图 ©gmp Architekten
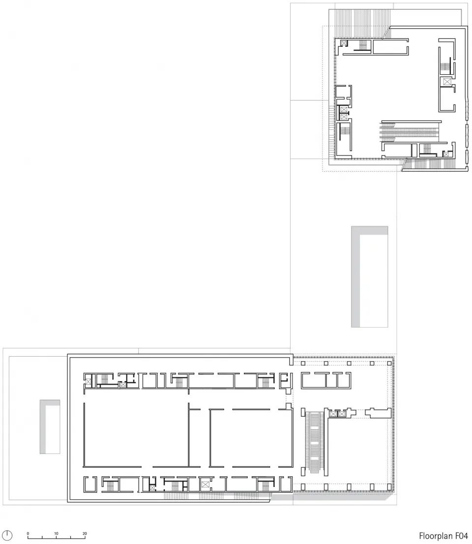
▼四层平面图 ©gmp Architekten
▼剖面图 ©gmp Architekten
设计竞赛:2009年一等奖
设计:曼哈德·冯·格康与施特凡·胥茨以及尼可拉斯·博兰克
竞赛阶段项目负责人:Clemens Kampermann
竞赛阶段设计团队:Verena Kiewardt, Michael Reiss, Jochen Sültrup, Thilo Zehme, 周斌
实施阶段项目负责人:Clemens Kampermann
实施阶段设计团队:Anna von Aulock, 李民, Andreas Maue, 潘昕, Michael Reiss, Kristin Schoyerer, Sabine Stage, Jochen Sültrup
中国项目管理:徐吉
业主:珠海华发集团有限公司
合作单位:中国建筑科学研究院 (CABR)
景观设计:Rehwaldt Landschaftsarchitekten
照明设计:Lichtvision Design GmbH, Schlotfeldt Licht
总建筑面积:约5.58万平方米
地上面积:约4.14万平方米
地下面积:约1.44万平方米
客服
消息
收藏
下载
最近






















