查看完整案例


收藏

下载
【项目名称】:Hapa Sushi
【项目位置】:美国·科罗拉多州 丹佛
【设计单位】:Roth Sheppard Architects
【创意阐述】
Roth Sheppard Architects创建的位于丹佛的一家日本料理店设计,其厚重的木制隔板和独特的照明装置提供了“意想不到的兴奋之光”。这家餐厅提供精致的日式料理,寿喜烧日式火锅,寿司,以及日式烧酒,是科罗拉多州知名的寿司烧烤和清酒酒吧之一。
这家餐厅位于丹佛的一个高档社区Cherry Creek的一座四层多功能建筑底部。设计团队的目标是创造一个与餐厅的创造性菜肴相一致的环境,将传统的日本料理与其他地区多重文化相互影响相互结合的空间。
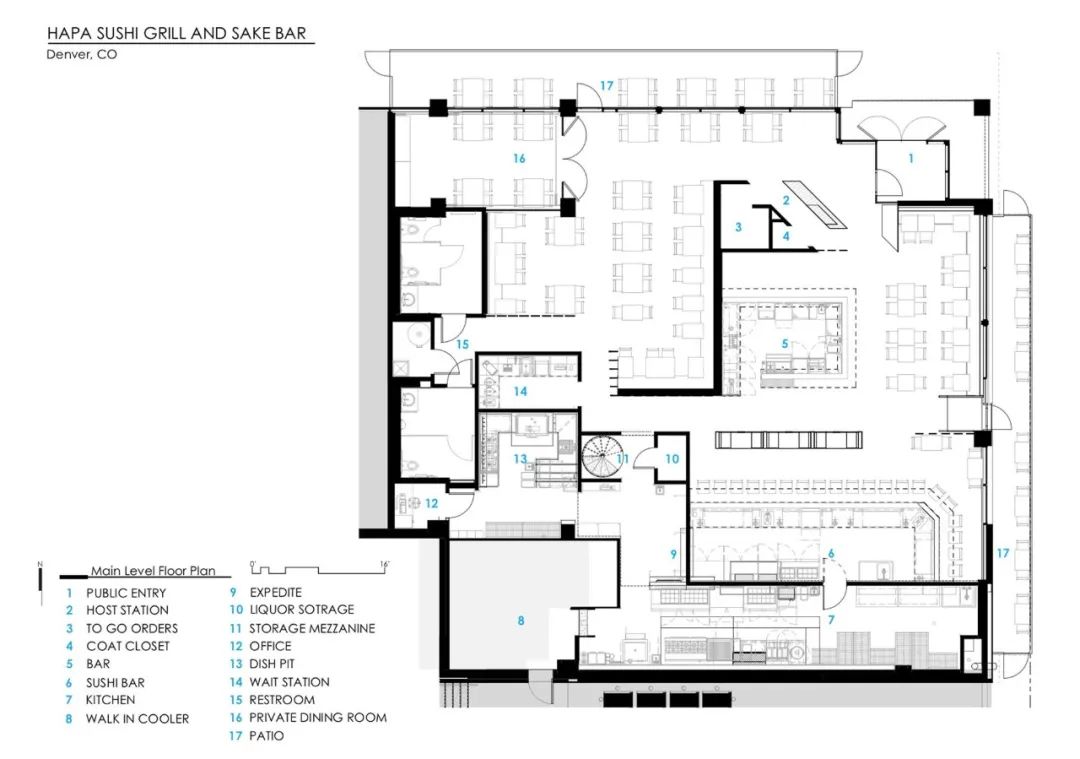
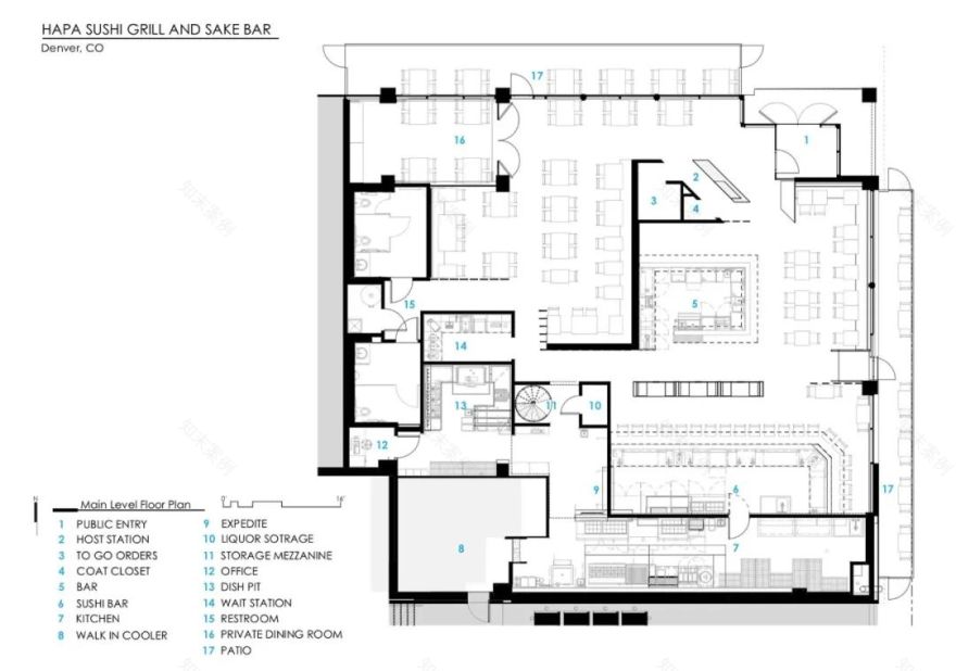
【设计图纸】
【空间简述】
“hapa”一词来源于夏威夷语,指的是亚洲和美国文化的融合。Hapa Sushi的设计美学是一种二元性——平衡新旧、本地和外国,并带来意想不到的兴奋。餐厅的平面大致呈方形,分为几个区域,包括主用餐区、酒吧、寿司吧和露台。玻璃立面为路人提供了室内活动的视野。在整个餐厅中,团队使用对比鲜明的元素来创造一种充满活力和接地气的氛围。
店内最有特色的是,设计师用坚硬的樱桃木板制成了厚实的雕刻屏风。“这些屏幕并不精致,”工作室说。“它们大胆而生动,唤起了动漫的活力和岛屿棕榈叶的平静。”在餐厅,团队在芝加哥公司的焦点上悬挂了一个大的矩形灯。天花板的固定装置有助于划分下面的座位区域,同时也提供照明。
另一个区域的特点是墙上安装了一个安装在隔音板上的有角度的sconces。在丹佛的另一种Hapa寿司中也发现了类似的寿司。设计师希望这个樱桃溪的位置是特定的,特别是在其豪华的感觉,但也编织整个品牌,从其他分支的小碎片。
在饮酒区发现了各种各样的材料,从石英吧台到用网纹织物和人造皮革包裹的长凳。相邻的寿司吧有盒式照明吊坠,让人联想到日本灯笼。这两个区域被一排排小隔间隔开,这些小隔间带有由涂漆的复合材料制成的帘形屏风。在餐厅的地板上,该团队使用了一种类似于深色木材的乙烯基材料-被称为豪华乙烯基瓷砖(LVT)。
时
系删除
:
---------------------------------
在变好
看
客服
消息
收藏
下载
最近


















