查看完整案例


收藏

下载
2021年9月16日,香港华艺设计顾问(深圳)有限公司设计的深圳龙华文化创意交流中心项目中标,方案以“一舟”为设计理念,一生万物,舟载前行。“一”生万物,孕育创造;“舟”为容器,承载前行,象征源源不断的文化与创意及永不停止的启发与思维。
设计师从中国传统文化出发,在局促的用地面积中,以简洁的形体回应周边环境,将方案打造成为一个精致的“盒子”,而在“盒子”内部延伸出交错灵动的空间感受。“盒子”仿若一叶轻舟,且代表了承载创造前行,引领时代的容器。设计师希望在整体复杂拥挤的环境中,为市民创造一处精致多元、文化时尚的创意中心。
设计概念
建筑采用多层布局,体量简洁。设计师根据功能分布,对体量进行切分;由于北侧教育用地将带来拥堵的视觉感受,故局部扭转建筑体块,形成体块错动,为建筑争取更大视野,同时将上段幕墙外扩,形成轻盈飘逸的悬浮感。为完善城市尺度展示界面,设计师将建筑顶部曲线收分,并在屋顶设计精美的花园景观,形成优质的第五立面。
形体生成
室内公共交通系统贯穿共享大厅与各层相通,结合电梯运载和垂直疏散系统,形成高效均衡的交通流线。共享大厅通过大台阶和悬挑阶梯串联各层公共区域,盘旋交错,开放通达,高拓空间为不同创作领域提供了对话和交互场所。
方案采用灵活多元、自由开放的空间设计,通过特色中庭及其内部盘旋而上的公共楼梯连接各个尺度不一、形态各异的空间节点 ; 并结合中庭采光、自然通风、屋顶花园等技术措施,营造具有多感官丰富体验的文化艺术空间。
共享大厅
在这样一处小而美的文化创意建筑中,设计师希望将屋顶花园同样设计的精致独特。中心的采光天窗不仅为室内中庭带来了良好的光影效果,同时丰富了屋顶花园的空间体验;阶梯式屋面绿化与地面景观设计遥相呼应,在有限的屋面中创造多元立体景观效果;屋面起伏错动,拓展绿色研学营地。地面采用石阶和坡道过渡高差,配合绿化创造友好城市空间。
景观分析
剖透视分析
建筑立面表皮采用玻璃和金属相互交织的形式,工艺精巧灵动,汲取时尚元素,雕刻精致立面的同时透射时尚美学的轻奢质感,极尽创意。下段立面幕墙采用高透超白玻璃,保证室内舒适物理环境,同时消除室内外视线阻隔,室外景色和室内空间融合互通,使外部人群在近人尺度感受到室内空间的张力。
下段立面中段立面采用半透光线性夹胶玻璃,确保适度采光的同时使室内沐浴柔和的光线,营造文创商业的场所氛围,引起精神共鸣;线性纹理也在一定程度降低来自西南侧相邻建筑裙房的对视影响。
上段立面采用风铃幕墙,其活动构造使各个单元根据风环境的变化摆动,随机摆幅在立面上形成不断变换的波纹,配合材质本身的微闪烁,颇具灵动之感,契合时尚创意主题。
上段立面
精致的金属与玻璃表皮使整个建筑呈现动态、律动、闪烁的立面效果,风铃幕墙跟随时光推移、天候变换展现出不同视觉效果,犹如永恒的进行式。幽玄清晨,建筑宛如城市中的一片静谧之光;黄昏时分,建筑呈现霞明玉映般的天景融合;静夜苍穹,建筑折射星尘,彩光曜变,宛若天目,指引创客归家。
设计师将建筑主入口设于新业路靠近道路交叉口位置,将近人尺度展示面和城市尺度展示面有序切分;沿主展示面设置视野通透的共享大厅,接纳城市视线形成内外互动,同时营造舒适的内部空间;根据功能关联和空间需求,依次将展厅、文创商业、时尚创意中心、“非遗赋新”交流中心和时尚发布中心由首层从下至上排布,屋顶设置生态研学营地,数字创意中心位于地下一层,垂直延展体验动线,形成创展一体的落位布局。
室内动线
本项目总投资为10500万元,用地面积约4000平方米,总建筑面积约为17500平方米,包含公交首末站、展览、文创商业、时尚创意中心、“非遗赋新”全国示范交流中心、数字创意中时尚发布交流中心等功能的公共配套设施类文化时尚创意交流中心。
技术图纸
总平面图
负二层平面图
负一层平面图
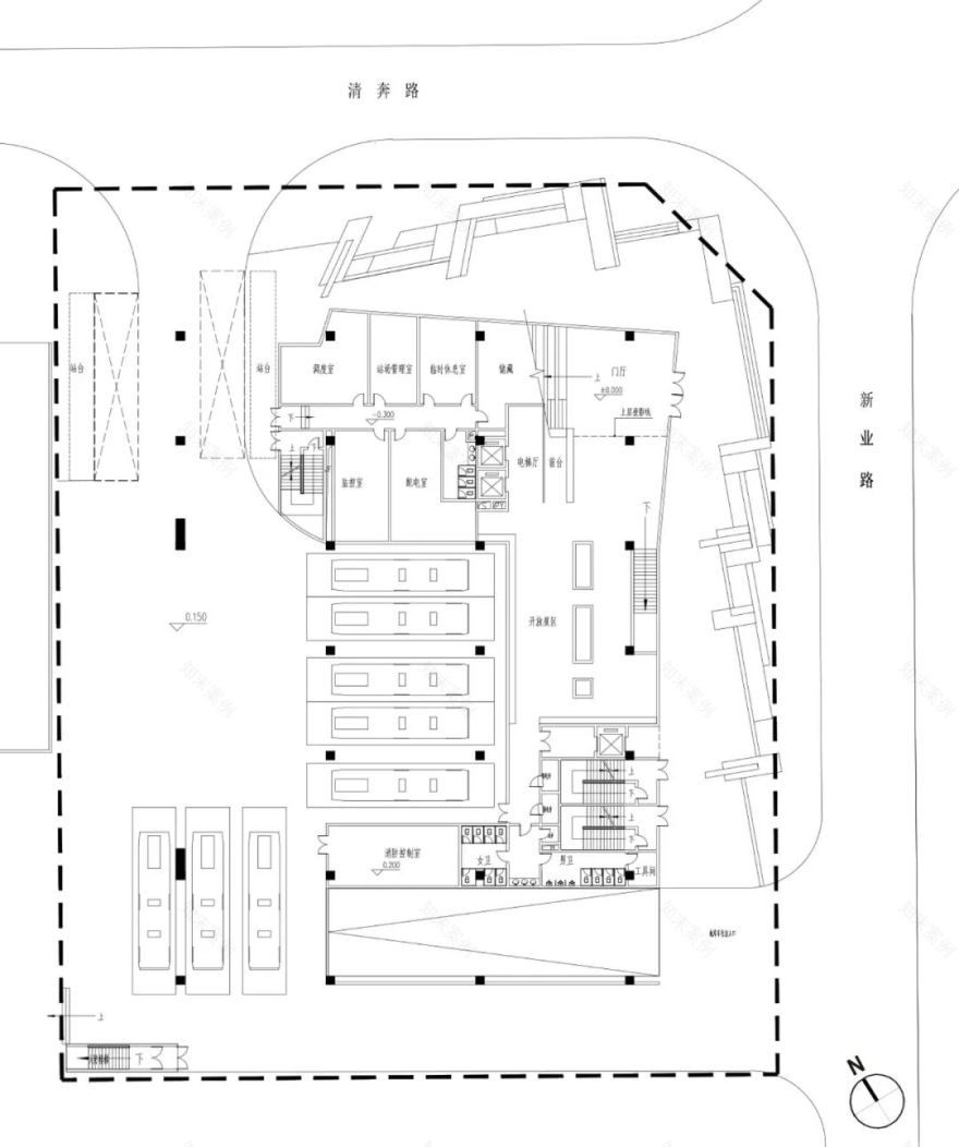
一层平面图
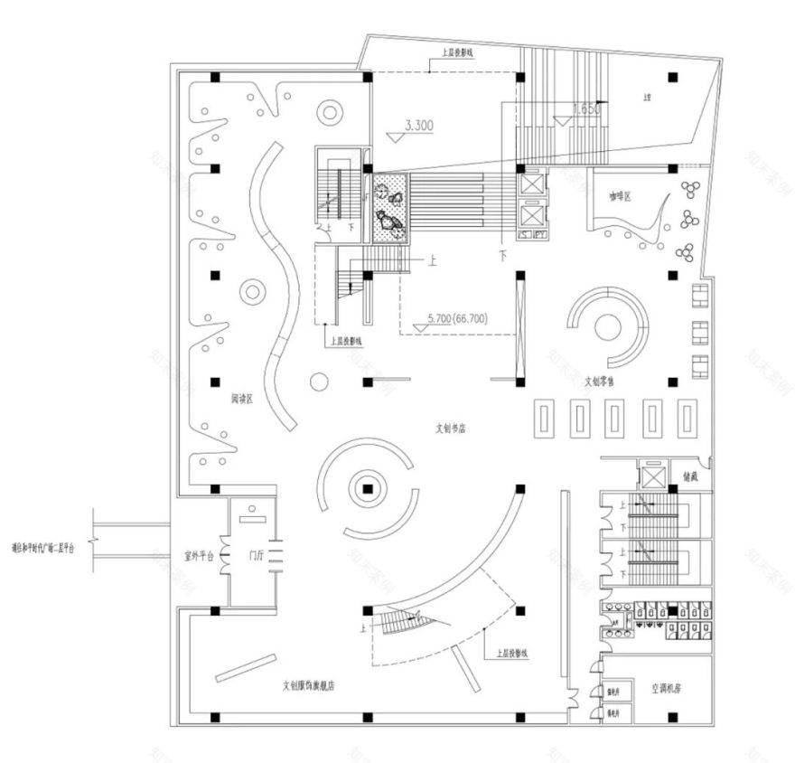
二层平面图
三层平面图
四层平面图
五层平面图
屋面层平面图
立面图
立面图
剖面图
项目信息
项目地点:广东,深圳,龙华区
项目名称:深圳龙华文化创意中心
建筑设计:香港华艺设计顾问(深圳)有限公司
业主单位:深圳市龙华区政府投资工程项目前期工作管理中心、深圳市龙华区建筑工务署、深圳市锦富房地产开发有限公司(代建)项总负责:陈日飙、林波
项目总师:黄楠
建筑专业:黄泽林、周美琴、陈春宇
结构专业:刘智忠、卢文汀、邓雄杰、王国明、刘霞、冯兆瑞、李鑫荣
中标时间:2021年9月16日
目前状况:进行中
建筑面积:1.75万平方米
客服
消息
收藏
下载
最近































