查看完整案例


收藏

下载
©Jeetin Sharma
“把一些被遗忘的东西,赋予它新的生命,这是很迷人的。”这是一个复苏的世纪没有空间、没有森林、没有水,无法继续生产新的东西。所以,把一些古老的东西变得特别。Akshat Bhatt,首席建筑师从这一思想出发,位于新德里市中心的Rug Republic总部的设计是对其工业环境的一种反应:对我们的城市所带来的影响的一种控诉。客户提出的要求是在有限的预算内,用最少的干预措施,使现有的破旧建筑重新可用。因此,我们非常强调通过撤销对建筑空间布局的临时改动和拆除之前住户所铺设的地板,来重新获得可用的空间。
Jeetin Sharma
Jeetin Sharma
平面图
Jeetin Sharma
这个设计,是一个哭泣的变压器,是对仓库的一种表达方式的重新诠释,它源于建筑师对物理环境和它所带来的挑战的理解。通过将Okhla等同于一个战区,在结构周围笼罩了一个金属外壳,以保护内部免受敌对和尖锐环境的影响。因此,一座内向型建筑在该地的工业天际线中找到了它的合理性,在视线范围内没有任何视觉吸引力。
Jeetin Sharma
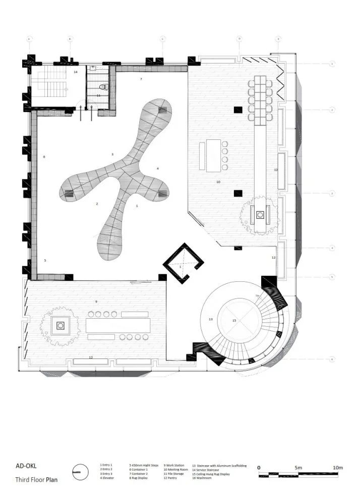
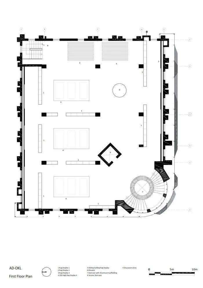
此外,空气质量的恶劣和附近猴子的喧闹要求我们偏离传统的玻璃建筑,并阻止外立面的大开口。在建筑内部,运动的中心是一个螺旋形的楼梯,因此,一个弯曲的光圈与直线形的天花板形成了强烈的对比,并在所有楼层之间建立了视觉联系。弯曲的形式进一步反映在外立面上,有助于将视线吸引过来。在空间组织上,有一个明确的层次结构。经常使用的空间,如办公室和临时展览被安置在底层,而公司各种产品的长期展览和私人办公室隔间被安置在上层。
Jeetin Sharma
三层平面图
两个集装箱区域被设计为工作休息时的溢出空间,而顶部的小露台则可以看到远处的绿色植物。由于该建筑是为国际最大的地毯和软体家具出口商之一设计的,所以我们的想法是创造一个裸露的外壳,以产生一个非侵入性的背景来庆祝他们的精致工作。这已经实现了使用裸露的黑色内饰,钢筋笼和其他廉价的干预,为展览提供未完成的美学空间。此外,临时干预措施的使用为内部布局增加了一定程度的灵活性。地面使用防火砖铺设,便于将来拆除重新施工。在外立面上,使用科腾钢制作的可控孔洞,保持了与外部的视觉联系。
Jeetin Sharma
jaali允许最小的日光穿透内部,防止猴子进入建筑。然而,在靠近入口处的下层,使用了易于维护和坚固的劈面花岗岩石材。为了达到功能的高效性和维护的方便性,服务设施都规划在外部。该建筑是当前时代的反映,并与旁观者产生强烈的印象。它被设计成一个保护性的盔甲,提供了很少的外部视野,将恶劣和尖锐的环境拒之门外。通过这样的设计,它提出了一个迫切的问题:”我们是否把自己带到了这个地步?即使如此,我们还能让它变得有趣吗?” 设计的目的不是躲在玻璃和花岗岩的面纱下,而是要做出一个后工业化的声明,让参观者感到好奇。通过精心的设计干预,为该结构赋予了新的生命,并使其在未来的岁月中具有针对性。
Jeetin Sharma
Jeetin Sharma
Jeetin Sharma
Jeetin Sharma
Jeetin Sharma
Jeetin Sharma
Jeetin Sharma
Jeetin Sharma
Jeetin Sharma
Jeetin Sharma
Jeetin Sharma
Jeetin Sharma
Jeetin Sharma
项目图纸
一层平面图
▲立面图
项目信息
建筑师:Architecture Discipline
面积:20000平方英尺
年份:2020年
摄影:Jeetin Sharma
制造商:AutoDesk, Saint-Gobain, Tata Steel, SPECTRUM PAINTS
设计团队:Akshat Bhatt, Heena Bhargava
城市:New Delhi
国家:印度
客服
消息
收藏
下载
最近


























