查看完整案例


收藏

下载
来自 WY-TO。更多请至:Appreciation towards WY-TO for providing the following description:
这冰淇淋店的设计概念以大胆对比的色盘、风趣的插画,味美“手机先吃”的时代。
Bold colours in the brand’s contrasting hues and quirky illustrations are some of the delicious interior details to indulge your phone’s appetite for Instagram worthy shots in this gelato spot.
▼室内一览,overview©FRANK PINCKERS
兴奋的气氛因设计的影响,让你一踏进门就回到 5 岁时候的你。这意想不到的空间由线条以及弯曲所创造的对称,将目光重点放在店铺特征上。品脱大小的空间也因这设计视觉小技巧开阔起来。
In contrast to the mature street right beside, the shophouse’s doors open up to an unexpected, lively symmetrical paradise that will bring out the 5-year-old in you. Filled with intriguing design elements that excite, the curves within draw focus on focal features of the shop and visually expands the space.
▼入口区域,entrance area
©FRANK PINCKERS
▼线条与曲线创造的对称性,the symmetry created by lines and curves©FRANK PINCKERS
就像夏天融化的冰淇淋一样,前台的曲线延伸到地板上。这“熔体”从一面彩色墙延伸到相邻的混凝土墙,产生出一股流动性关系。它生动的连续汲取店主另一热情——运动,暗示着一场竞赛,在营业时吸引好奇的路人目光。一旁的白色瓷砖以华夫格的呈现方式表达冰淇淋店实用性概念,也实现了在设计上彩色和混凝土过度的完美结合。
The heart of the shop extends its fluidity onto the floor like a gelato melting in summer. Taking cues from the owner’s other passion, sports, the “melts” continue from the coloured wall to the adjacent concrete. Its vivid continuity suggests a race to the fantasy of flavours, attracting curious passers-by to peek at operating hours of the day.
Done in a waffle-inspired pattern, a white-tiled wall creates the perfect transition from concrete to colours and serves as a practical approach for the dry kitchen.
▼前台,the reception©FRANK PINCKERS
▼前台的曲线延伸到地板上,thecurve of the reception extends to the floor ©FRANK PINCKERS
▼地面细部,details©FRANK PINCKERS
▼彩绘墙面,painted wall ©FRANK PINCKERS
▼前台内部视角,internal perspective from reception©FRANK PINCKERS
▼墙面细部,details©FRANK PINCKERS
通过有意思性的概念而技巧上的衬托,NOM 邀请您沉浸在一位男孩追求优质冰淇淋的梦境旅程。
By optimizing their pint-sized layout and sprinkling design purposefully,NOMinvites you to be immersed in a boy’s dream of scooping up quality gelato.
▼轴测图,axonometric©WY-TO
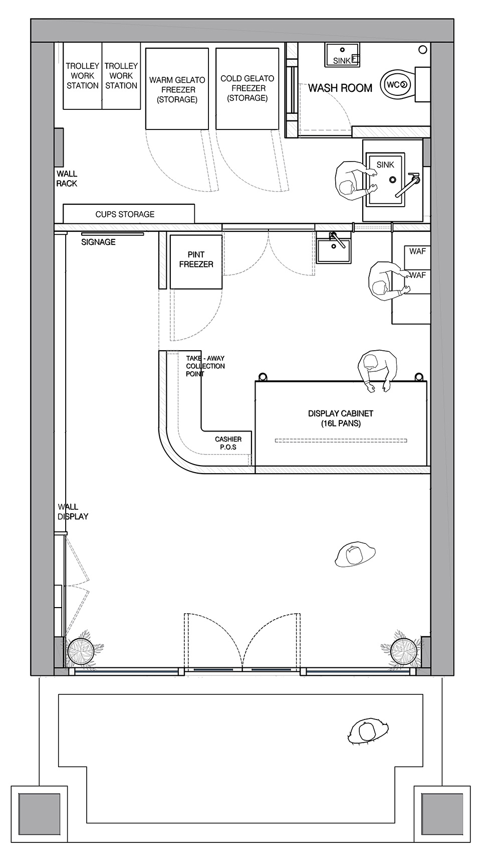
▼平面图,floor plan©WY-TO
项目名称:GEOMETRIC SWIRLS
设计方:商业设计
项目设计: 2021 / 完成年份: 2021
主设计师:YANN FOLLAIN
助理设计师:DAN CHAN, MICHEL SIM
承包商:AURAS SPACE PTE LTD
项目地址:ERSKINE ROAD, 新加坡
建筑面积:38sqm
摄影版权:FRANK PINCKERS
合作方:NA
客户:TABLETALK PTE LTD
品牌:CREMA LISO BRILLO
瓷砖: LIAN SENG HIN 49YR 27/627 BLISTERING SUN 及 19YY 51/758 SUPERNOVA
特色墙: DULUX
表面层压板: ADMIRA
客服
消息
收藏
下载
最近















