查看完整案例


收藏

下载
"望江驿"是上海浦江两岸贯通工程东岸陆家嘴北滨江段的一处服务驿站,为市民提供休憩空间和公共卫生间。驿站位于由临江的跑步道和内侧的骑行道所限定的狭长的堤状滨江绿地内,由一处现存的地下车库楼梯间出入口扩建而成。场地高于城市道路两米以上,且北面临江侧比南侧略高,周围经年成形乔木甚多,如同一片小树林。
"River Viewing Service Station" is a service station at Lujiazui northern riverside section on the eastern bank of the Project on "Connecting Both Sides of Huangpu River of Shanghai", providing citizens with rest spaces and public toilets. The station is within a narrow levee-shaped green field defined by riverside running path and inner riding path. It is an extension of the access of an existing underground garage staircase. The site is more than two meters above the city roads with the northern riverside slightly higher than the southern side. In the neighborhood there are many old trees, forming a small forest.
驿站位于狭长的堤状滨江绿地内,the station is within a narrow levee-shaped green field
为了平衡一个月的极短工期和我们对于完成品质、空间体验的最大诉求的矛盾,并且兼顾施工场地局促、以及控制车库顶板上的结构重量等问题,我们采用了以胶合木结构为主的钢木混合体系来快速建造,工厂预制化率较高,现场基本为环境影响很小的干作业施工。
In order to balance an extremely short project schedule of only one month and our unremitting pursuit for quality and space experience and to give consideration to problems such as space constraint and control of garage roof structural weight, we adopted the steel and wood hybrid system mainly composed of laminated wood to make a rapid construction possible. With a high prefabricated rate, the site is basically adopting dry construction, which has little impact on the environment.
▼演变过程,programming
由于所在场地背靠陆家嘴连绵的摩天楼群,隔江与老外滩及北外滩对望,是上海市中心的一处关键性公共空间,这一微小的驿站给了我们机会来探讨超越其自身尺度的建筑与风景的关系。我们希望驿站在以平易近人的氛围服务市民的同时,更能够强化这块场地自身的特性,从而让建筑有机会成为风景的放大器。“望江驿”这一命名正凸显了驿站的双重述求。
Backed by a succession of skyscrapers in Lujiazui and separated by Huangpu River from Old Bund and North Bund, this site is a key public space in central Shanghai. This small station has provided us with opportunities to explore the relationship between architectures and sceneries that have exceeded its own dimension. We hope that this station can intensify its own features while serving the citizens in an easily approachable atmosphere so that the architectures can become a scenery amplifier. The name of “River Viewing Service Station” has highlighted the double appeals of the service station.
▼营造平易近人的建筑氛围,an easily approachable atmosphere
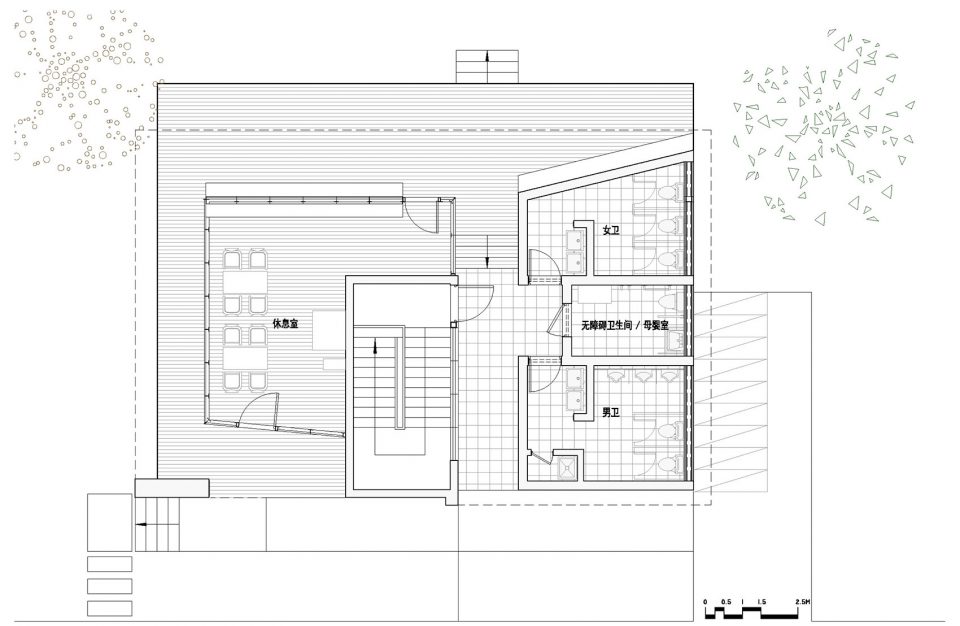
驿站分为东西两个部分:东侧是相对封闭的公共卫生间;西侧是和车库楼梯间结合在一起的L形休息室,面向外滩的北、西两侧都是落地玻璃和休息平台,北侧的望江平台靠着驿站外墙设有长凳供市民小坐。这两部分之间是一条穿越建筑贯通南北的有顶通廊,连接南侧较低处的骑行道和北侧较高处的望江平台。驿站方正的平面轮廓和相对复杂的半螺旋直纹曲面单向檩条木结构仿铜铝镁锰板屋面形成了鲜明的对比。
The station can be divided into two sections: The eastern part is a relatively closed public toilet while the western section is an L-shaped lounge combined with garage staircase. The northern and western sides facing the Bund are both full-height glazing and rest platforms. On the northern river-viewing platform is provided with benches along the station’s external wall, where visitors can take fitness break. Between these two parts there is a roofed vestibule cutting through the architecture, which connects the riding path in relatively low south with the river-viewing platform in relatively high north. The square planar contour of the station is in sharp contrast to the relatively complicated half-spiral straight line curved surface single-direction purline roofing structure made of copper imitated Al-Mg-Mn Alloy Sheeting.
▼东侧是相对封闭的公共卫生间,the eastern part is a relatively closed public toilet
▼西侧是和车库楼梯间结合在一起的L形休息室,the western section is an L-shaped lounge combined with garage staircase
从临江侧看,驿站像是一个微微架空在场地上的出檐深远、屋顶轻盈起翘的大凉亭。整个北侧的反坡屋檐下呈伞状的放射形布置的木檩条成为视觉焦点;檩条汇聚处自然形成一个三角形的天窗,一半在休息室内,一半在通廊上,将幽暗的屋顶深处照亮,强化了空间的进深感。
Viewed from the riverside, the station resembles a large pavilion with far-extending eaves and a lithe crimped roof, which is slightly elevated from the site. The umbrella-shaped radial purlines under the counter-slope eaves in the north have become a visual focus. The purlines converge to form a natural triangular skylight, one half in the lounge and the other half above the vestibule, illuminating the dark roof recesses and strengthening the space depths.
▼从临江侧看,驿站像是一个大凉亭,viewing from the riverside, the station resembles a large pavilion
▼整个北侧的反坡屋檐下呈伞状的放射形布置的木檩条成为视觉焦点,the umbrella-shaped radial purlines under the counter-slope eaves in the north have become a visual focus
▼檩条汇聚处自然形成一个三角形的天窗,the purlines converge to form a natural triangular skylight
▼休息室内部,interior
从南侧骑行道看,驿站的屋顶被分为高低不同、但都向内倾斜的东西两半,特别在正中的西段楼梯间角部的屋顶被压到接近视平线的最低点,而且屋顶仿铜板延续到了西段的南侧立面上;这种特意压低的尺度和屋顶与立面的连续性加强了背江面的进入感,将人由居中的通廊引向江景。
Viewed from the riding path in the south, the station roof is divided into two halves respectively in the east and west, which have different heights but both tilt inward. Especially, the roof at the corner of western-section stair case in the center has been depressed almost to the lowest point of visual horizon and the copper imitated plates roofing has extended to western section´s southern façade. This specially depressed dimension and the continuity between roof and façade have strengthened the entering sense of the side back to the river, guiding visitors from the central vestibule to the river scene.
▼在正中的西段楼梯间角部的屋顶被压到接近视平线的最低点,the roof at the corner of western-section stair case in the center has been depressed almost to the lowest point of visual horizon
人们由骑行道穿过狭小低矮的通廊拾级而上,屋顶在配合身体的运动渐次升高,原来通廊尽端外的密集树冠在视野中缓缓上升,冲破北侧高敞的屋檐;站在望江平台上豁然开朗中视线向下,透过底部的树干,江面在粼粼波光中水平向展开,与江边或散步或奔跑的人影共同构成流动的风景。两侧身后廊下的长凳会吸引人们安坐下来,悠闲地观赏江景。此时人们只能看见闪烁的江面,对岸的城市隐在树从之后,有一种特别的宁静之感。当然,当人们走下平台,顺着树丛中的汀步蜿蜒下行,就是跑步道和亲水平台,在那里,浦江两岸壮丽的城市天际线一览无余。
Ascending step by step from the riding path through the narrow and low-rise vestibule, the roof will gradually rise with your body movement, the dense tree crowns originally at the end of the vestibule will also raise in your field of vision, breaking through the high and spacious eaves in the north. Standing on the open and clear river-viewing platform and viewing through the trunks at the bottom, you can see the glistening river surface is stretching horizontally, constituting a flowing scene with figures walking or running along the riverside. The benches on both sides of the vestibule will attract people to sit idly and appreciate the river scene leisurely. At this moment, you can only see the glistening river surface and feel a special tranquility when the city at the other side of the river is concealed by the trees. Of course, when you descend from the platform and zigzag down the stepping stones in the forest, you will access the running path and waterborne platform, where you can enjoy a panoramic view of the magnificent city skylines across both sides of Huangpu River.
▼夜色中的驿站,architecture in the dark
▼平面图,plan
立面图,elevation
▼剖透视,perspective
▼屋顶平面,roof
项目档案
项目名称:望江驿
建筑师:周蔚 + 张斌 / 致正建筑工作室
主持建筑师:张斌、周蔚
项目建筑师:李姿娜
设计团队:刘晓宇、张吉昊、谢兆荣
合作设计:上海思卡福建筑工程有限公司
建设地点:上海浦东滨江大道、百步街
建设单位:上海陆家嘴(集团)有限公司
施工单位:上海舜杰建设(集团)有限公司
上海思卡福建筑工程有限公司
设计时间:2017.08.11 -2017.08.29
建造时间:2017.08.25 -2017.09.25.
占地面积:235m2
建筑面积:130m2
结构形式:钢木混合结构
建筑层数:地上1层
主要用途:休息室、公共卫生间
主要用材:花旗松胶合木、型钢,花旗松挂板、铝镁锰板、铝型材,平板玻璃、防腐木地板、瓷砖
工程造价:约200万元人民币
摄影师:吴清山
Credits and Data
Project Name:River View Service Station, Lujiazui, Pudong, Shanghai
Architects: ZHOU Wei + ZHANG Bin / Atelier Z+
Partner in Charge: ZHANG Bin, ZHOU Wei
Project Architect: LI Zina
Project Team: LIU Xiaoyu, ZHANG Jihao, XIE Zhaorong
Design Cooperation: Shanghai SKF Construction Co.,Ltd.
Location:Binjiangavenue,Pudong
Client:Shanghai LuJiazui(Group) Co.,Ltd.
General Contractor: Shanghai ShunjieConstruction (Group) Co.,Ltd., Shanghai SKF Construction Co.,Ltd.
Design Period: 11th, Aug., 2017 – 29th,Aug., 2017
Construction Period: 25th, Aug., 2017 – 25th, Sep., 2017
Building Area: 235m2
Gross Floor Area: 130m2
Structure: Hybrid Wood-steel Structure; 1 Story
Principal Use: Rest Room, Public Toilet
Primary Materials: Douglas Fir Glulam, Steel Profile, Douglas Fir Siding, Al-Mg-Mn Alloy Sheeting, Pre-coated Aluminum Profile, Slab Glass, Timber Pavement, Ceramic Tile
Cost: About2,000,000Yuan RMB
Photography: WU Qingshan
客服
消息
收藏
下载
最近































