查看完整案例


收藏

下载
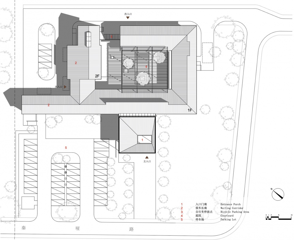
▼一层平面图,First Floor Plan
© 致正建筑工作室
▼二层平面图,Second Floor Plan
© 致正建筑工作室
▼屋顶平面图,Roof Floor Plan
© 致正建筑工作室
▼立面图,Elevations
© 致正建筑工作室
▼剖透视图 1,Perspective Section 1
© 致正建筑工作室
▼剖透视图 2,Perspective Section 2
© 致正建筑工作室
▼剖面图 1-1,Section 1-1
© 致正建筑工作室
▼剖面图 2-2,Section 2-2
© 致正建筑工作室
▼剖面图 3-3,Section 3-3
© 致正建筑工作室
▼剖面图 A-A,Section A-A
© 致正建筑工作室
▼剖面图 B-B
Section B-B
© 致正建筑工作室
▼剖面图 C-C
Section C-C
© 致正建筑工作室
▼剖面图 D-D,Section D-D
© 致正建筑工作室
项目名称:嘉北郊野公园西北游客中心
建筑师:周蔚 + 张斌 / 致正建筑工作室
主持建筑师:张斌
项目建筑师:袁怡(方案、扩初、施工图),王佳绮(后期配合)
设计团队:徐跃,张吉昊,陈振
方案咨询:上海直造建筑设计有限公司 / 水雁飞,侯睿
灯光顾问:上海福豹莱景观灯光设计有限公司 / 龙婷
设计总包:华东集团华东建筑设计研究院有限公司
建设地点:嘉北郊野公园 2 号门内东南侧,近嘉松北路、冈峰公路
建设单位:上海疁景建设发展有限公司
EPC 总包施工单位:上海现代建筑装饰环境设计研究院有限公司
设计时间:2015.06 – 2018.03
建造时间:2018.05 – 2019.05
基地面积:5822.8 m²
占地面积:1588.9 m²
建筑面积:1467.8 m²
结构形式:钢筋混凝土框架,局部钢结构,木结构屋顶
建筑层数:地上 1 层,局部 2 层
主要用途:票务问讯,导游服务,办公,茶室,售卖,游客休息,公共厕所,游览车站
主要用材:花旗松胶合木,花旗松实木板,竹钢,波纹镀铝锌钢板,型钢,铝型材,平板玻璃,涂料,火山岩板,瓷砖
工程造价:约 1,181 万元人民币
摄影师:CreatAR Images
Credits and Data
Project Name: Northwest Visitor Centre, Jiabei Country Park, Jiading, Shanghai, 2015-2019
Architects: ZHOU Wei + ZHANG Bin / Atelier Z+
Partner in Charge: ZHANG Bin
Project Architects: YUAN Yi (Schematic Design, Developing Design, Construction Design), WANG Jiaqi (Construction Coordination)
Project Team: XU Yue, ZHANG Jihao, CHEN Zhen
Schematic Consultant: NATURALBUILD / SHUI Yanfei, HOU Rui
Lighting Consultant: Shanghai Fubaolai Landscape Light Design Co., Ltd. / LONG Ting
Design Cooperation: Arcplus Architecture, Engineering & Consulting Co., Ltd.
Location: In the Southeast inside the No.2 entrance of the Jiabei Country Park, near the Jiasong North Road and Gangfeng Road
Client: Shanghai Liu Jing Investment (Group) Co., Ltd.
EPC General Contractor: Arcplus Architectural Decoration & Landscape Design Research Institute Co., Ltd.
Design Period: Jun.2015 – Mar.2018
Construction Period: May.2018 – May.2019
Site Area: 5822.8 m²
Building Area: 13,005 m²
Gross Floor Area: 1467.8 m²
Structure: Reinforce Concrete Frame Structure, Partial Steel Structure; Wooden Structure Roofing; 1Story, partly 2 Stories
Principal Use: Ticket Information, Guided Tour Service, Office, Teahouse, Selling, Lounge, Public Toilet, Shuttle Bus Station
Primary Materials: Glued Laminated Timber of Douglas Fir, Douglas Fir Timber Plate, Glued Laminated Bamboo, Corrugated Galvanized Steel Sheeting, Steel Profile, Aluminium Profile, Slab Glass, Painting, Volcanics Plate, Ceramic Tile
Cost: About 11,810,000 Yuan RMB
Photography: CreatAR Images
客服
消息
收藏
下载
最近
























































