查看完整案例


收藏

下载
Philips Vingboons于1670年左右设计了Vijzelgracht住宅,项目最初是一栋织布工住宅,现已成为重要的国家遗产。作为保存下来的约八十座织布工房屋之一,本次修复和翻新保留了房屋的初始布局,并尽可能多地展示出原材料。设计师将加建的部分移除,在同一体量内进行了更细致的重建。
Vijzelgracht House is a national heritage site designed by Philips Vingboons in about 1670 as a weaver’s house. It is one of roughly eighty weaver’s houses that have survived. The restoration and renovation preserved the original layout and revealed as much of the original material as possible. Later additions were removed and partly rebuilt to a higher standard within the same volume.
▼项目概览,overview © Jannes Linders
工艺与创新 | Craftsmanship and innovation
织布工离开后,房屋被以各种方式占用,直至2008年大楼倒塌。阿姆斯特丹政府将房屋判定为危房,于2015年为其安装了新的地基。
After the departure of the weavers, the house was occupied and used in various ways. This came to an abrupt end in 2008 when the building subsided. The City of Amsterdam declared the structure to be uninhabitable and fitted it with new foundations in 2015.
▼房屋外观,exterior view © Jannes Linders
▼一层空间,view of the first floor © Jannes Linders
新的时期,Benthem Crouwel事务所将这座拥有丰富历史的房子改造成一栋现代家庭住宅。高标准的翻新广泛运用了新技术和新材料,展示着工艺水准和创新精神。经过多次改建,配备齐全的房屋既可以适应现代需求,同时又保留了许多原始细节。
Benthem Crouwel has transformed the house with its rich history into a contemporary family home. The high-standard renovation involved a very wide range of techniques and materials, displaying both craftsmanship and innovation. Thanks to a number of alterations, the house is now fully equipped for the future, while many original details has been preserved.
▼室内空间概览,overview of the interior space © Jannes Linders
设计师决定将二十世纪时加建的仓储构造改为花园。新增的三层温室取代了1870年代无历史价值的扩建部分,加强了与新花园的联系。
▼起居空间,the living space © Jannes Linders
▼楼梯一角,the stairs © Jannes Linders
▼楼梯通向阁楼,stairs leading to the attic © Jannes Linders
▼玻璃阁楼,the glass attic © Jannes Linders
▼木质阁楼,the wooden attic © Jannes Linders
多样中的统一 | Unity in diversity
新增的布局和遗留的痕迹都透露着房屋的原始功能。每间明亮的房间大小各异,独具特色。旧的布局重新复原,保存完好的旧物在新空间中仍占有一席之地。
The original use of the house is still legible in the new layout and surviving ‘traces’. Each of the bright rooms, which vary greatly in size, has a character of its own. The old layout is revealed once again and original elements, still intact, have acquired a place in the new interior.
▼独具特色的房间,room with a character of its own © Jannes Linders
▼浴室,the bathroom © Jannes Linders
▼餐厅,dining space © Jannes Linders
统一的颜色强调了材料与空间氛围,底层的暗色到阁楼的亮色形成了过渡。精心添加的细节与17世纪的历史要素相互映衬,赋予房屋独特的魅力。
The applied colour palette unites and enhances the various materials and spaces. The palette ranges from dark tones on the lower floor to bright tones on the attic level. The careful new detailing combines with the original seventeenth-century elements to give this house a special character.
▼夜景,night view © Jannes Linders
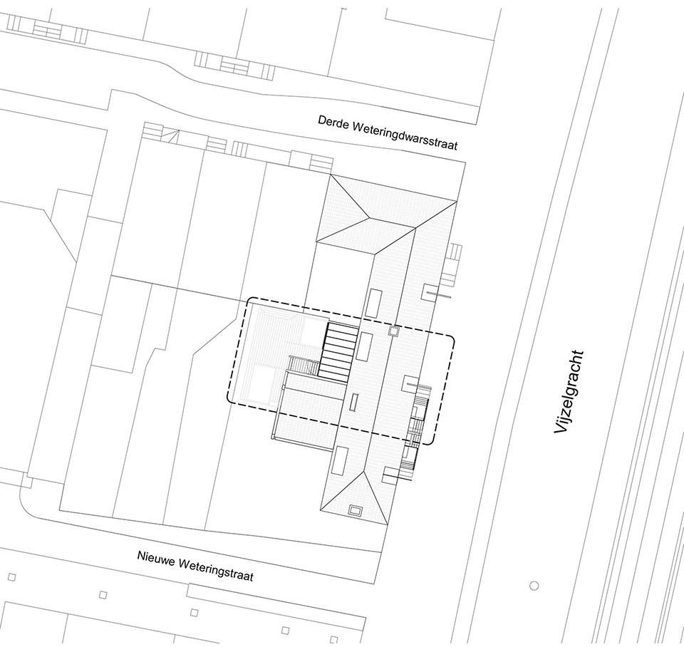
▼总平面,site plan © Benthem Crouwel Architects
▼地下室平面,basement plan © Benthem Crouwel Architects
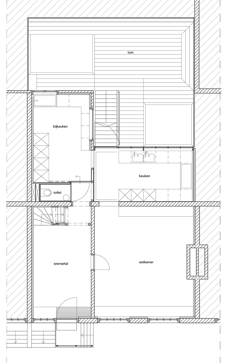
▼首层平面,the first floor plan © Benthem Crouwel Architects
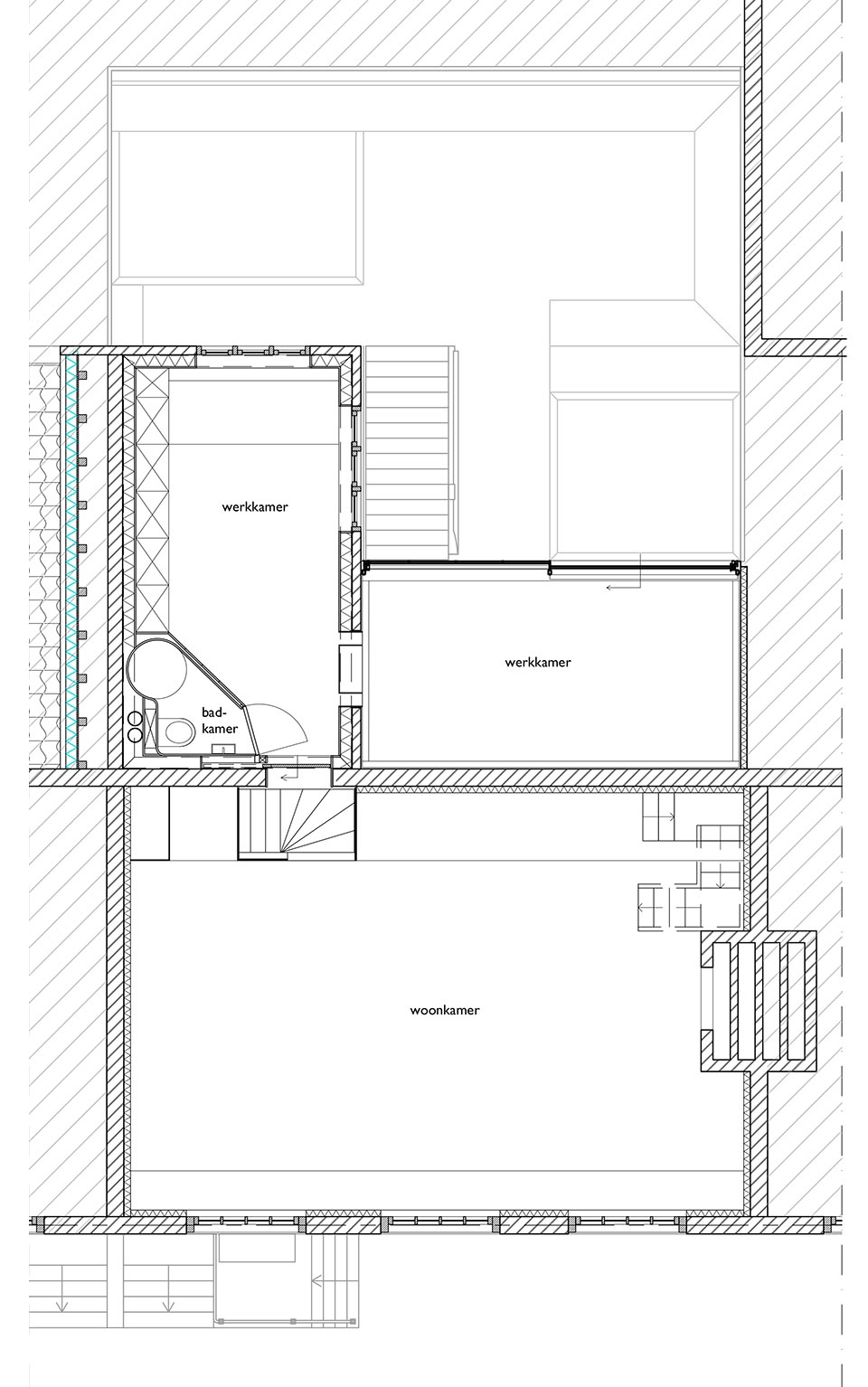
▼二层平面,the second floor plan © Benthem Crouwel Architects
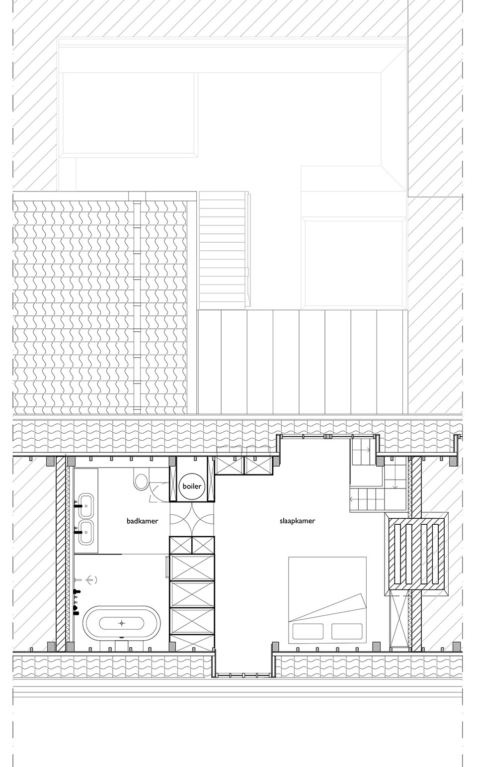
▼三层平面,the third floor plan © Benthem Crouwel Architects
▼立面图,elevation © Benthem Crouwel Architects
▼剖面图,section © Benthem Crouwel Architects
ARCHITECT: Benthem Crouwel Architects
CLIENT: Private individual
LOCATION: Vijzelgracht, Amsterdam
FLOOR AREA: 235 m²
Garden: 40 m²
START DESIGN: 2017
START OF CONSTRUCTION: 2018
OPENING: 2021
PROJECT TEAM: Mels Crouwel, Jeroen Jonk
CONTRACTOR: Van den Brandhof Interieurbouw
PHOTOGRAPHER: Jannes Linders
客服
消息
收藏
下载
最近

























