查看完整案例


收藏

下载
从曼谷向东行驶一小时便可到达该项目的所在地——北柳府,这里是靠近城市、大片工厂以及泰国湾的郊区,其中,临海位置使这里的土壤盐分极高。别墅位于带有人工池塘的平坦地块上。这座人工池塘本计划用于提供饮用水、调节环境和放松氛围。但盐渍导致池塘中出现微咸水,因而不能用于饮用、家用以及农用。为了将其变成淡水,需要引入雨水进行稀释。
▼建筑与环境,the building and the surrounding ©Anan Naruphantawat
The site is an hour’s drive away through the East from Bangkok; Chachoengsao, in which the suburb’s living environment is closed to a city, many factories and the sea (Gulf of Thailand), which produces excessive level of soil salinity. A non-terrain land with an artificial pond is where the villa is located. This man-made pond was built to be used as consuming water as well as an atmospheric visualization and all relaxation senses. As mentioned above, saline soil causes brackish water in the pond, which the water was no longer used for consuming not only for household use, but also agricultural use. In order to alter this low biodiversity water into freshwater, rainwater is needed to dilute an existing water in the pond.
▼临水立面,waterfront facade ©Anan Naruphantawat
建筑是水处理过程的一部分,因此其形制满足治水要求。设计源于一个简单的立方体,设计团队沿对角线将它切成两半,从而产生最大的斜切面,兼做排水屋面和墙壁,并通过布局,使这间小型、经济且实用的房屋满足了家庭居住的所有功能需求以及可持续性要求。
▼生成过程,thinking process ©TOUCH Architect
An architecture is considered to live along and be part of this water treatment process, therefore, shape and approach are designed to support this development. The designed is originated by a simple cube which is diagonally slashed in half to provide the largest slanted cantilevered surface which act as a roof and wall for draining water, together with all the functions serve what a single-family residence needed within a small, affordable, and useful house, as well as sustainability.
▼侧立面:斜切屋顶,lateral facade: sloping roof ©Anan Naruphantawat
▼近景,closer view ©Anan Naruphantawat
▼侧后方视角,rear perspective ©Anan Naruphantawat
▼入口,entrance ©Anan Naruphantawat
生活空间采用开放式布局,与私密区域和半公共区域相连,可用于家庭聚会、用餐和拓展寝区等多种用途。卧室和露台位于亲水一侧,其上方屋檐以锯齿状递减,起到遮阳和区分开放性的作用。其中,屋檐在入口露台开放程度最大,人们可以站着看向远处;生活空间的屋檐位于中间且较低;卧室的屋檐则使居住者坐下或躺下才能看全室外景色。此外,耐久铝板也用于遮阳,为其余墙体隔热。
▼3个层级的开放程度,3-level openness ©TOUCH Architect
An open-plan living space which is arrangeable to multipurpose use, such as family gathering, dining, and extension sleeping area, connects to both private and semi-public area. A water-side edge, in which a bedroom and an outdoor terrace are located, is serratedly subtracted to act as a shading element as well as gaining hierarchical openness; the highest openness at the entrance terrace allows taking sight in standing position, while middle and low for living space and bedroom allows panoramic view in sitting and laying down position, respectively. The other shading elements, a durable aluminum trellis, are apply for the rest wall for heat protection.
▼屋檐以锯齿状递减,the eaves is serratedly subtracted ©Anan Naruphantawat
▼屋檐局部,part of the eaves ©Anan Naruphantawat
▼人站在露台上望远,the woman stands on the terrace for a panoramic view ©Anan Naruphantawat
▼露台内部,inside view of the terrace ©Anan Naruphantawat
▼倾斜屋顶下的生活空间,living space under the sloping roof ©Anan Naruphantawat
▼空间面向池塘,the space faces the pond ©Anan Naruphantawat
▼多功能客厅,multifunctional living room ©Anan Naruphantawat
▼铝板遮阳,aluminum sunshade ©Anan Naruphantawat
▼卧室,bedroom ©Anan Naruphantawat
钢结构与沥青瓦屋面相结合,易于安装、轻质耐用且便于排水。钢架支撑悬挑露台,使雨水直接落入池塘,并通过水蒸发冷却地面上方的空气。铝板不仅经久耐用、维护成本低、使用寿命长,而且夹锁构件使其可以轻松地再应用于其他建筑。
▼水处理系统,water treatment ©TOUCH Architect
▼轴测分解,exploded axon ©TOUCH Architect
▼结构细部,structure details ©Anan Naruphantawat
Steel structure with asphalt shingle roof is used for quick and easy installation with lightweight and durability for water drainage. Steel grating is applied for a cantilevered outdoor terrace, which allows rainwater falls directly to the pond, as well as, cooling the air above the floor from water evaporation. Aluminum trellis is not only durable, low maintenance and last-longer used material, but also can easily be re-used for another building because of a clip-lock installation.
▼夜景,night view ©Anan Naruphantawat
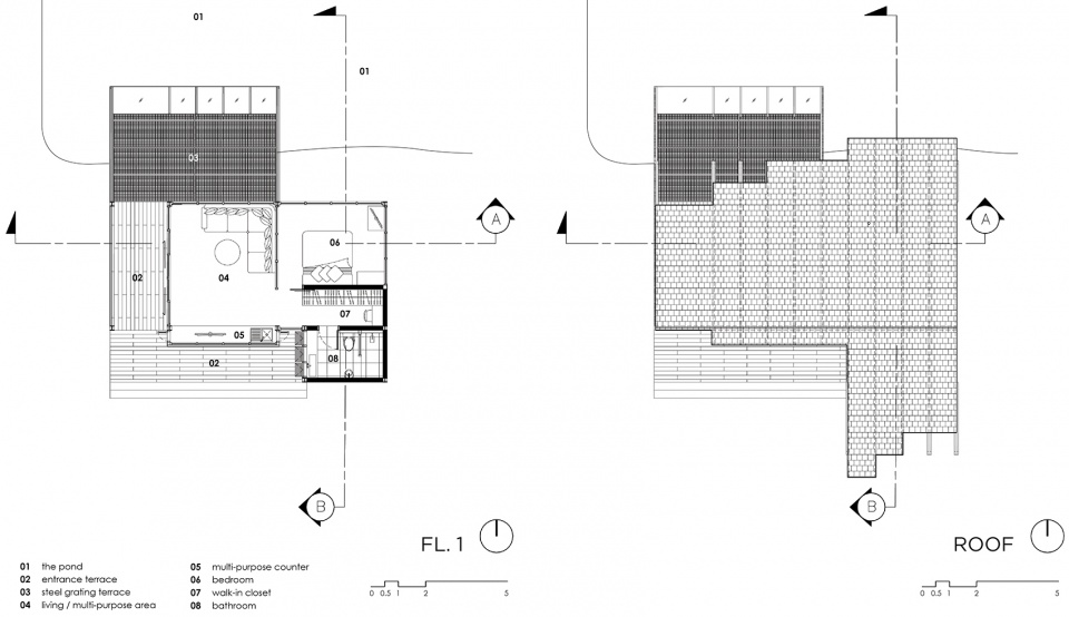
▼平面图,plans ©TOUCH Architect
▼立面图,elevations ©TOUCH Architect
▼剖面图,sections ©TOUCH Architect
▼剖透视,sectional perspective ©TOUCH Architect
Project Name: Villa Backyard
Office Name: TOUCH Architect
Firm Location: Nonthaburi, Thailand
Completion Year: 2021
Gross Built Area: 90 m2
Project location: Muang, Chachoengsao, Thailand
Program: residential
Lead Architects: Setthakarn Yangderm / Parpis Leelaniramol
Design Team: Pitchaya Tiyapitsanupaisan / Tanita Panjawongroj
Clients: Krittaya + Bandhit Pakham
Engineering: Chittinat Wongmaneeprateep
Contractor: DWN Builder
Photo Credits: Anan Naruphantawat
客服
消息
收藏
下载
最近





























