查看完整案例


收藏

下载
英文名称:Thailand NJ villa
位置:泰国
设计公司:TOUCH Architect
摄影师:Chalermwat Wongchompoo
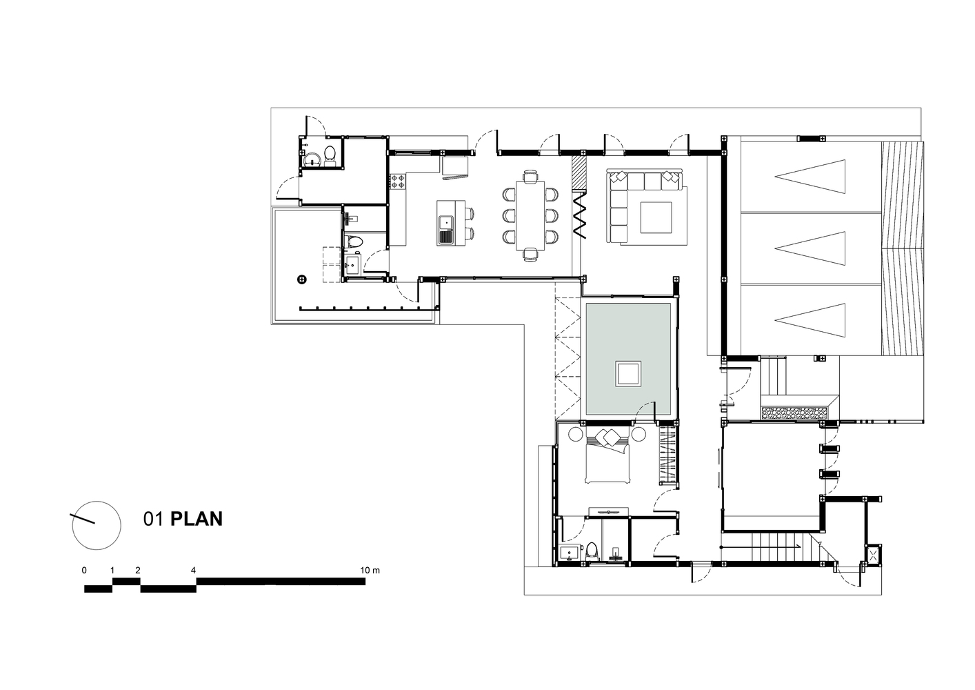
NJ别墅是Nun和Jea夫妇的私人别墅,该建筑的名字取自于这样的目标,希望这座别墅能够提供某种生活方式同时代表他们的个性。建筑的占地面积是100㎡,位于泰国首都曼谷。场地周边是一些独立住宅,只有正面朝向南边的公共街道。建筑设计的挑战在于如何和谐地呼应周边的文脉。由于曼谷缺少绿化,拥有自然空间的别墅就成了塑造空间和建筑形式最主要的方式。建筑师并没有设计一个前院,而是将草坪置入室内,创造了一个半U型形状的建筑,内部是一个较为私密的花园和草坪。这里可以用来举办各种活动,也能形成五种不同的感知,尤其可以看,听,感受。我们可以看到草坪和大树,听见瀑布的声音,从室内感受自然。后院的草坪和鱼塘联系在一起,位于房子的中心。在室内的每个空间,每个走廊包括楼上的空间都能明显地感知到花园和池塘的存在。
建筑的主入口有两个通道,其一是“人行廊道”,被悬臂混凝土板覆盖的廊道连接了公共街道,另一个是“车行道”,三个车库都通往同一个正门门厅。在门厅能看到后院,因为当打开木门的时候,笔直廊道的插入能让人直接看到内部的景色。此外,进入室内前脱下鞋子并挂好雨伞的行为在东方人的习俗中是必须的,长板凳带孔的设计能用来储藏鞋子,木质构件则用来挂雨伞,这些元素都在入口处相互融合在一起。朝南的建筑往往是一天中最热的空间,内部的功能就要据此进行布置,楼梯和服务空间都集中在南边,休息,用餐以及主卧空间都在东北处,属于整栋建筑最凉爽的空间。另外,为了避免太阳直射,每一面上都被安装了可调节的木制百叶,尤其是正立面,当百叶关上的时候,室内同样可以进行自然通风。在双层屋顶——混凝土面板和沥青屋面之间的空隙被用作绝缘层,不仅能抵御泰国的强降雨,也能避暑降温。
泰国NJ别墅外部实景图
泰国NJ别墅局部实景图
泰国NJ别墅外部夜景实景图
泰国NJ别墅内部实景图
泰国NJ别墅剖面图
泰国NJ别墅立面图
泰国NJ别墅平面图
泰国NJ别墅示意图
客服
消息
收藏
下载
最近


































