查看完整案例


收藏

下载
Les Architectes FABG在将Guy-Gagnon体育场改造成凡尔登市Quai5160文化中心的竞赛中获得优胜。项目包含一个360座的演出厅,一间冥想室,一所面向邻里儿童的马戏学校,以及办公室等必要的辅助设施。
A winner of an architectural competition held for the conversion of the Guy-Gagnon Arena into a Cultural Center for the borough of Verdun, Quai 5160 includes a 360-seat performance room, an art gallery, a mediation room, a circus school for the children of the neighborhood as well as the additional offices and spaces necessary to implement this mission.
▼建筑外观,external view of the building ©Steve Montpetit
项目位于滨水步道上,与线性公园相邻。设计的主要目标是将这座封闭的建筑打开,在提升周边安全性的同时,增进城市居民之间的互动。这里曾是一个人们可以游泳娱乐的场所,在建造了大量铺满沥青的工业式建筑后,河水受到污染,一切不复存在。本项目是河岸开发和维护工程的一部分。岸边刚刚设置了一片新的公共沙滩,凡尔登音乐厅的改造正在如火如荼地进行,新的公共室内泳池也在计划中。
The primary objective we pursued was to open this opaque building on the waterfront promenade and adjacent linear park to foster interaction with citizens while enhancing the sense of security around it. The project is part of a broader vision of valorization and development of the river banks that were once places for swimming and recreation before being contaminated by waste spills and the construction of buildings with an industrial character surrounded by vast asphalt areas. A new public beach has just been laid out, the renovation of the Verdun Auditorium is underway and a new public indoor pool is planned.
▼建筑位于滨水道路上,building on the waterfront promenade ©Steve Montpetit
原本的体育场为钢结构建筑,棕色混凝土砖上覆盖彩色亚克力板。建筑外壳部分损毁,但是结构保留完整。扩建部分形成了一个面向公园的宽阔入口,阶梯设计可以满足非正式文化表演和冥想活动的需求。加建空间中的前院也为其他室外活动提供了可能。所有机械设备都被隐藏在建筑下部的卫生空间中,地下室中受到污染的土壤排放的沼气则通过前院外围的鼓风机排出。
The arena was a concrete structure covered with brown concrete bricks and, later, colored acrylic plaster surfaces. The outer shell was partially demolished but the structure was retained. An expansion allowed the addition of a large entrance hall generously open to the park and which includes a step staircase for performances and cultural mediation activities in an informal setting. A forecourt in the extension of the hall encourages complementary activities outside. All the mechanics have been hidden in the sanitary vacuum under the building and the biogas from the soil contaminated by the decaying waste in the basement are channeled and discharged through the drums on the outskirts of the forecourt.
▼扩建部分形成面向公园的宽敞通透入口,expansion creating an open entrance towards the park ©Steve Montpetit
▼温暖的公共空间与白色立面形成对比,contrast between the warm public space and the white facade ©Steve Montpetit
新的建筑围护结构主要在防雨层外设置了一个通风空腔,再覆盖穿孔铝板,在光泽的喷涂表面上形成微妙的视觉变化。金色的点缀和涂油橡木板创造出温暖的公共空间,与冷白色的立面形成对比。原建筑部分砖墙得到保留并被染成黑色,作为黄铜刻板的支撑墙,与艺术整合项目融为一体。
The new building envelope, designed on the principle of rain screen with a ventilated cavity is coated with aluminum panels with small perforations producing a slight visual vibration of the painted surface (fluoropolymer) with a high luster. Golden accents and oiled oak plank siding warm public spaces in contrast to the cold whiteness of the envelope. Some brick surfaces of the original building have been preserved and dyed black. They serve as a support for a wall of brass cut plates, designed as part of the arts integration program.
▼穿孔铝板立面细部,details of the perforated aluminum facade ©Steve Montpetit
▼前厅,vestibule ©Steve Montpetit
▼带有阶梯的入口公共空间,public entrance with steps ©Steve Montpetit
▼通透的空间,transparent space ©Steve Montpetit
▼阶梯可用来举办非正式的活动,steps allow for informal activities ©Steve Montpetit
▼展厅,exhibition room ©Steve Montpetit
▼健身房,gym ©Steve Montpetit
▼剧场,theater ©Steve Montpetit
本次改造项目反映了近年来公共空间、文化活动和环境中的显著变化。从最初的竞赛、公示到送批城市规划委员会,公众、政府官员和建筑师共同参与到了设计过程之中,表达了人们对于该区域发展的共同愿景。
This conversion project reflects the significant change that has occurred in recent years in public space, cultural practices, and the environment. It reflects the expectations of the public, elected officials, and architects who converge through more participatory design processes including the architecture competition, presentations to citizens, and the move to the Urban Planning Advisory Committee.
▼总平面图,site plan ©Les Architectes FABG
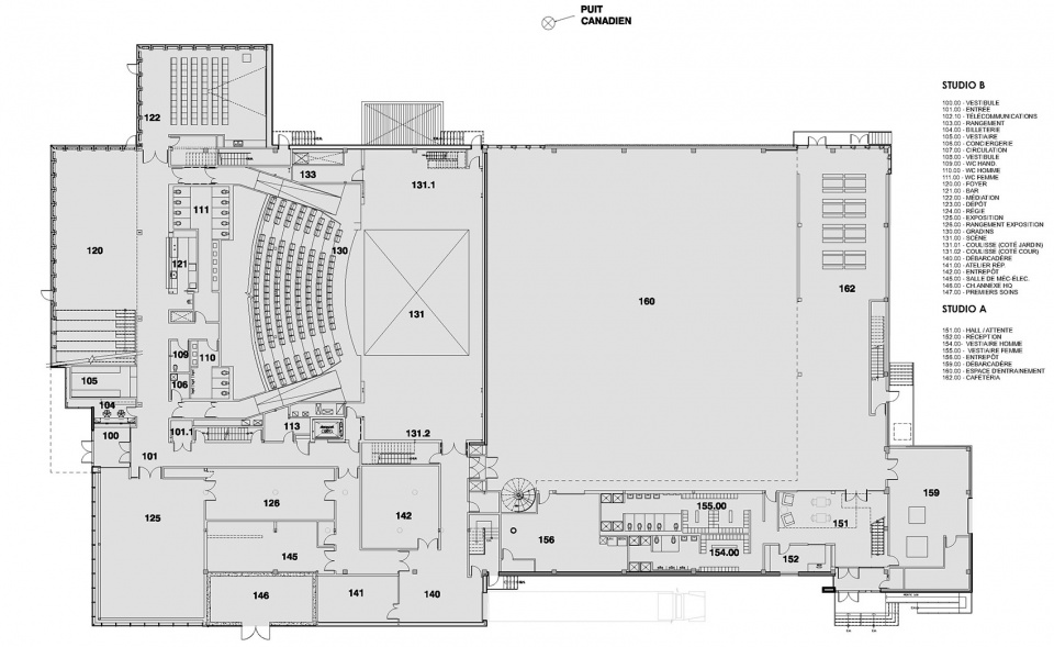
▼一层平面图,first floor plan ©Les Architectes FABG
▼二层平面图,second floor plan ©Les Architectes FABG
▼立面细部,facade details ©Les Architectes FABG
Project Name: Quai 5160-Maison de la Culture Verdun
Location: Verdun, Montreal
Commissioning Date: August 31, 2018
Client: Arrondissement of Verdun representative – Jean-Pierre Gauthier
Architecture Firm: Les Architectes FABG – Éric Gauthier, Marc Paradis, Dominique Potvin
Structure: SNC Lavalin
Mechanical, Electrical: SM Group
General Contractor: Construction TEQ Inc.
Scenography: Go Multimedia
Acoustician: Octave acoustics
Photographer: Steve Montpetit
客服
消息
收藏
下载
最近




















