查看完整案例


收藏

下载
Esplanade Tranquille 是蒙特利尔 Quartier des Spectacles 街区西端公共空间开发项目的最后阶段。项目的名字旨在向 Tranquille 书店致敬,这家书店在魁北克当代历史中占据了重要地位,1948 年,Refus 全球宣言于这里发起。
The Esplanade Tranquille constitutes the last phase of a project to develop the public spaces of the West Pole of the Quartier des Spectacles in Montreal. Its name pays tribute to the Tranquille Bookstore, once located on the site, an important place in the contemporary history of Quebec where the Refus global manifesto was launched in 1948.
▼项目鸟瞰,aerial view of the project
该街区在 Saint-Laurent 大道和 Sainte-Catherine 街的交汇处,堪称城市中心的社交枢纽。落成后的 Esplanade Tranquille 大道在功能上与节日广场互补,并在冬日里为市民提供了一处愉快的溜冰场,而在夏日又为人们带来了绿色与荫凉。各种各样的节目庆典和活动将这里化作一处全年活跃的放松休闲场所,进而为城市中心的转型过程注入了新的活力,使城市中心越来越符合人们多样化生活方式的需求,新公共空间附近越来愈多的新建公寓楼也证实了这一点。
Located at a nerve center of the city core, at the junction of Saint-Laurent Boulevard and Sainte-Catherine Street, the esplanade has a complementary vocation to that of the Place des Festivals by offering citizens a refrigerated ice rink in winter, and a little greenery and freshness in summer. A varied program of shows and activities makes it a place of relaxation and entertainment all year round. It energizes the process of transformation of the city center, which is becoming more and more a living environment inhabited in a diversified way, as validated by the construction of new apartment buildings adjacent to this new public space.
▼顶视图,top view
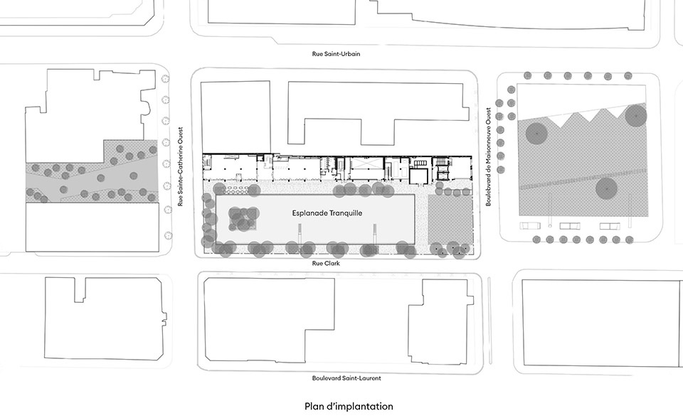
按照 Quartier des Spectacles 区域的开发计划,Esplanade Tranquille 项目中将包括一座垂直于 Sainte-Catherine 街的线性服务设施,该建筑与公共广场接壤。该公共广场在夏季将成为各种节日庆典的理想举办场所,每到冬季又将变身为有趣的溜冰场。为了实现功能的转变,公共家具包括椅子、桌子、雨伞、火盆、种植箱、服务亭、围栏、舞台和移动游戏等都将存储于地下室,以便根据需要进行部署。
Following the Quartier des Spectacles development plan, the esplanade includes a linear service building perpendicular to Sainte-Catherine Street that borders a public square. This public square hosts shows during the festivals that follow one another in summer, and turns into a refrigerated ice rink as soon as the first cold weather arrives. To facilitate these transformations, public furniture including chairs, tables, umbrellas, braziers, planting bins, service kiosks, fences, stage, and mobile games are stored in the basement to be deployed as needed.
▼冬日鸟瞰,aerial view in winter
▼溜冰场,refrigerated ice rink
Esplanade Tranquille 商业空间与 Quartier des Spectacles 项目的整合是通过城市家具中材料和设计元素来体现的,这些意味着本项目第一阶段的完全落成。白色预制混凝土、灰色花岗岩铺装、落地灯、白色铝板,以及项目中最具代表性的红色色调,清晰地标志着这个项目是属于公众、属于社区的。
The integration of the esplanade into the Quartier des Spectacles project was done by implementing the materials and elements of urban furniture characteristic of the first phases already completed. White prefabricated concrete, gray granite paving, floor lamps, white aluminum cladding panels, and red colour accents contribute to clearly marking the belonging of the project to the Neighborhood by respecting the vision that gave birth to it.
▼公共空间景观设计,landscape design of public space
▼最具代表性的红色色调,red colour accents
▼广场上的临时展览,temporary exhibition in the square
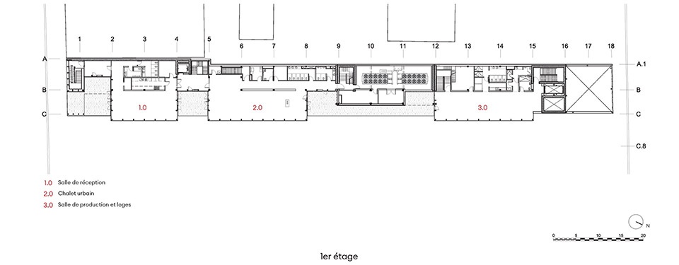
线性的服务建筑体量被分割成三分部,由露台和开窗分隔,让人不禁联想到节日广场上的商店橱窗。三个盒子体量位于二层,包含了公共休闲区,并俯瞰着下方的溜冰场和公共空间,实木结构唤起了小木屋般的安心和温暖的氛围。木质框架的选择源于建筑师希望为可持续发展树立榜样的愿景。溜冰场和建筑所需的能量由地热井网络提供,同时,所有制冷系统释放的热量也均被该系统回收并得到了重新利用。此外,建筑的屋顶也被规划为屋顶花园,花园中种植的草本与蔬菜等植物会在餐馆中得到充分的利用。
▼建筑分析图,analysis diagram of architecture
The volume of the linear building has been segmented into three spaces, separated by terraces and largely fenestrated, and analogous to the inhabited shop windows that line the Place des Festivals. These three boxes, located upstairs and containing public relaxation areas, have a solid wood structure evoking the reassuring and warm atmosphere of a chalet, while overlooking the ice rink and the public space.
The choice of a wooden frame also results from a desire to set an example for sustainable development. Thus, the energy required for the ice rink and the building is supplied by a network of geothermal wells, and all heat released by the pumps of the refrigeration system is recovered. Additionally, the roofs are covered with a garden roof producing herbs and vegetables that are used by the restaurateur, etc…
▼二层公共休闲区,lounge on the upper floor
▼木材的使用符合了生态可持续的原则
use of wood is in line with the principles of ecological sustainability
▼大面积的窗扇引入充足采光与景观视野,large windows bring in plenty of light and views
▼木质框架细部,details of the wooden structure
该建筑地面层设有可完全打开的玻璃幕墙,能够在夏日将室内空间向滨海广场开放。因此,餐厅可以延伸到公共空间的露台上,而滑板租赁室则可以变身为一处快闪式的商业场所,全年为这条街区引入活力。
The ground floor has completely retractable glass walls to open onto the esplanade in summer. Thus, the restaurant can be extended on the terrace in the public space, and the skate rental room is transformed into a pop-up type business to contribute to the vitality of the place throughout the year.
▼底层空间可完全向广场开放,the ground floor has completely retractable glass walls to open onto the esplanade in summer
地下室设有大型仓库,可以存放所有用于 Quartier des Spectacles 区的各种活动的城市家具和设备。两部货运电梯和封闭的楼梯平台创造出便捷高效的交通流线。该项目是由建筑师与多学科专家共同协作的结果,包括工程师、景观设计师、室内设计师、工业设计师、舞台顾问和照明设计师,紧密的跨专业合作创造出丰富的公共空间。
A large warehouse in the basement allows you to store all the urban furniture and equipment used to hold various events in the Quartier des Spectacles. Two freight elevators and a closed landing stage facilitate the logistics of this permanent transformation process. The project is the result of multidisciplinary work coordinated by the architect involving engineers, landscape architects, interior designers, industrial designers, scenography consultants, and lighting designers to produce a public space enriched by this collaborative process.
▼更新后的城市空间更具活力,the updated urban space is more dynamic
在疫情期间,尽管天气条件不稳定,但这条街区的人流量仍然非常大,这表明市政与建筑师有必要也有责任使城市中心的公共空间更加迎合公民的新期望。曾经以酒吧和其他臭名昭著的场所而闻名的红灯区如今正在重生,今后将为人们提供一个安全、愉快和包容的生活环境。Esplanade Tranquille 项目利用了多年来国际区和 Quartier des Spectacle 区发展以来积累的经验。这种转变的核心就是城市中心更新战略的实施,高质量的公共空间,将引起良性的连锁反应,促进郊区房地产产业的发展。
The very high attendance of the Esplanade Tranquille during the pandemic, despite the unsettled weather conditions, illustrates the need to adapt the center of our cities to the new expectations of citizens. Once known for its bars and other infamous establishments, the Red Light sector is being reborn by now offering a safe, pleasant, and inclusive living environment. The Esplanade Tranquille makes use of the experience accumulated over the years since the development of the International District, and then the Quartier des Spectacles. At the heart of this transformation is the implementation of a strategy that consists of developing quality public spaces that cause, by ripple effect, a real estate revitalization on its outskirts.
▼夜景,night views
▼室内夜景,interior night view
仅仅满足规范的被动型城市规划并不足以真正建设好一座城市,Les architectes FABG 事务所的建筑师们很高兴能够为城市实现慷慨和更具变革性的转型做出贡献,可以说此次设计比以往任何时候都更有必要面对第三产业生态系统萧条所带来的挑战。
Passive urban planning that is content to regulate the density and the choice of coatings is not enough to build a city. We are pleased to have been able to contribute to the implementation of a more generous and transformative vision, proving more necessary than ever to face the challenges posed by the weakening of the tertiary sector ecosystem.
▼施工过程,construction process
▼总平面图,master plan
▼底层平面图,ground floor plan
▼二层平面图,first floor plan
▼立面图与剖面图,elevation and sections
Project name : Esplanade Tranquille du Quartier des Spectacles
Location : 1442 Clark, Montreal, Quebec, H2X 2R3
Commissioning date : November 2021
Client : City of Montreal
Client representative : François Hubert
Architect : Les architectes FABG
People who participated in the design and realization :
Eric Gauthier (designer)
Marc-Antoine Fredette (project manager)
Pierre Joly (project coordinator)
Amandine Mortka (site supervisor)
Photo credit: Steve Montpetit
MORE:
Les architectes FABG
,更多请至:
客服
消息
收藏
下载
最近



























