查看完整案例


收藏

下载

翻译
Gravity is a mutual attraction between (any) two objects. All relationship needs at least two objects. It needs a direction, a force and most importantly the attraction itself. In particular cases, you may (carefully) call it love.
You need a lot of things for love. You need a location, an excellent location. It can’t be totally transparent, it needs to be a little bit hidden at a great place. Hiding at plain sight - at the best part of the city. It needs dedication, you need to face a lot of difficulties and the trials of time, basically you need to prove that you want it. To dream about it or to lie around sleepless is much easier, than to take a few step towards a goal - that is the real proof. You have to love to fly high while not being afraid to fall deep down. That’s what gravity is. We did not see this dramatic outcome upon conceiving the original idea. We built a nest together on the top of the city, where we could really feel like home.
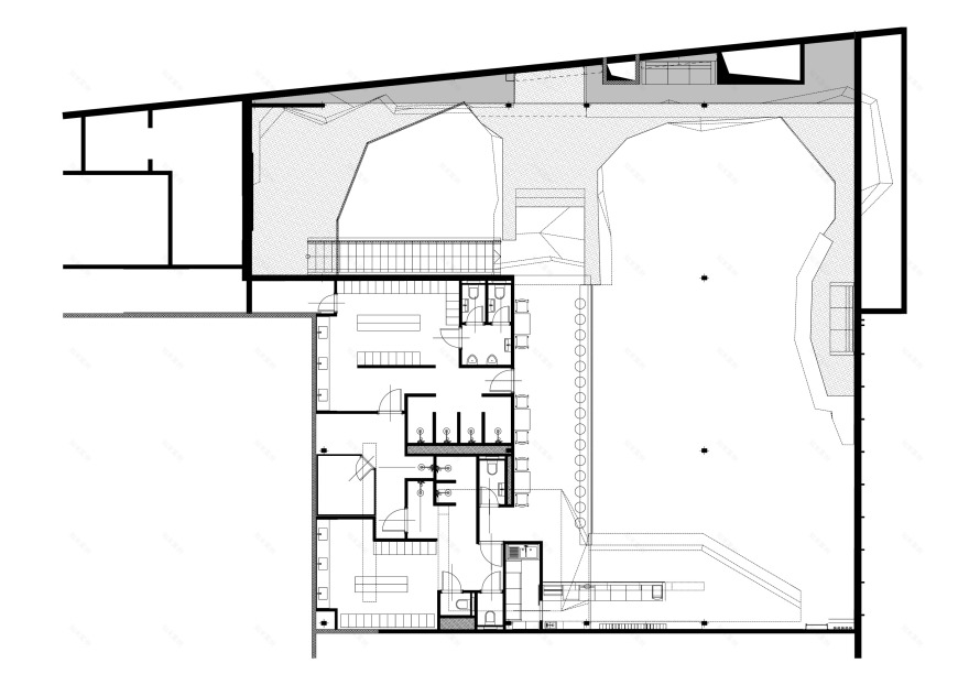
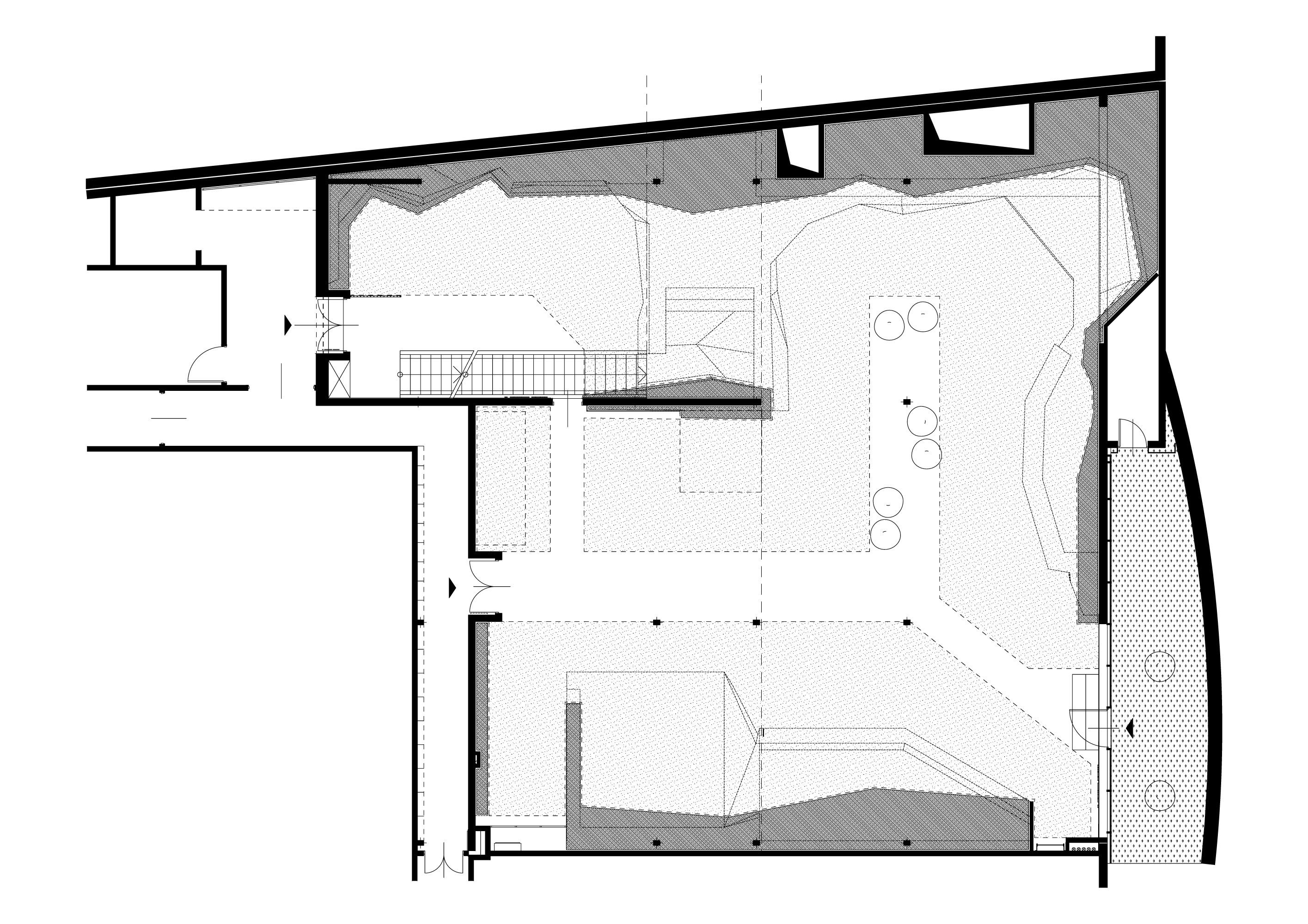
Gravity Boulder Bar is a community space. Built by a community for a community. We wanted to introduce a new standard to the climbing life in Budapest. We wanted to give a new home to the persistence what brought climbers together in Budapest. It needs teamwork, everyone brings its best to the table. Sitting here now, seeing the climbers, watching their helpfulness, hearing their laughter, I just realised, it worth it. We did it.
客服
消息
收藏
下载
最近


























