查看完整案例


收藏

下载
架构师提供的文本描述。3层是一套公寓,从一个非常不寻常的结构转变为一个当代的生活空间。
Text description provided by the architects. 3 Stories is an apartment converted from a most unusual structure to a contemporary living space.
© Bálint Jaksa Photography
(bálint Jaksa)
“我非常怀疑,这套公寓能不能变成一个像样的房子”-在我们第一次看到这个地方几秒钟后,房主的一位近亲说。我几乎不同意。我爱死它了。幸运的是,老板-一位伟大的创新者,一位朋友和一位迪诺爱好者-和我对结果的看法是一致的。这是我见过的最复杂的建筑之一,覆盖着无数层人类历史和不需要的建筑材料。我们必须走一条漫长的道路,发掘这一美丽,把它变成一个当代的家园。
'I highly doubt, that this apartment can be turned into a decent home' - said a close relative of the owner, seconds after we first saw this place. I hardly agreed. I loved it. Luckily, the owner - a great innovator, a friend and a fellow dino enthusiast - and I were on the same page about the outcome. This was one of the most complicated structures, I have ever seen, covered by numerous layers of human history and unwanted building materials. We had to take the long road and uncover this beauty and turn it to a contemporary home.
© Bálint Jaksa Photography
(bálint Jaksa)
© Bálint Jaksa Photography
(bálint Jaksa)
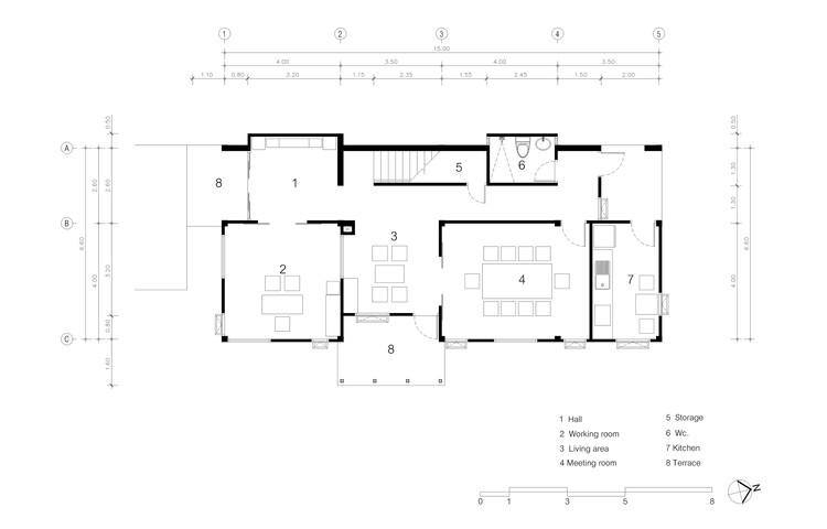
只有一个入口的三层楼简化了公共空间和私人空间的问题,第一层自然变成了公共区域-大堂-厨房-餐厅的组合。由于这套公寓的主要吸引力之一是位于第三层的令人难以置信的屋顶露台,所以我们不得不将它与公共区域连接起来,同时创造出一个安静的私人部分,一个卧室,它的露台和第二层的浴室。于是我们继续在漂亮的屋顶结构下建造了一个舒适的起居室,连接着两个楼梯。这样,我们在所有的空间之间就有了一个完美的、流畅的连接。
Having three stories with one entrance simplifies the question of public and private spaces, naturally the first story became the public zone with the entrance-lobby-kitchen-dining room combo. Since one of the main attractions of the apartment is the incredible roof terrace, located on the third story, we had to connect this to the public zone, while creating a nice quiet private part, a bedroom with its on terrace and a bathroom on the second story. So we went on and created a nice cozy living room underneath the beautiful roof structure, connected with two staircases. This way we have a perfectly fluent connection between all the spaces.
选择这里的材料真的很容易,因为我们有漂亮的木质表面和砖。在混合料中添加混凝土和铁是一个明显的选择,在曲面之间创建对比以突出显示美丽的细节是诀窍。令我惊讶的是,主人的个人物品是如何使这些空间完成的,完美地适应了这一概念。我相信这是一个这样的项目,就像这样的项目应该结束-一切都在正确的地方。
Choosing materials here was really easy, since we had beautiful wooden surfaces, and brick. Adding concrete and iron to the mix was an obvious selection, creating a contrast between the surfaces to highlight the beautiful details was the trick. What amazed me was how the personal belongings of the owner made these spaces complete, fitting perfectly to the concept. I believe this is how a project like this should end - with everything in its right place.
© Bálint Jaksa Photography
(bálint Jaksa)
我们还用了大量的旧木料作家具、楼梯和墙壁覆盖物。这种材料最初用于一座旧建筑的木制结构构件中。我们喜欢这样的想法,即旧材料可以作为新材料继续重复使用。更有趣的是,它是在这房子的木制结构元素旁边。
We used a great deal of repurposed old wood for furniture, stairs and wall covering also. This material was originally used in an old building's wooden structural elements. We liked the idea, that old materials can keep being reused as new. Even more interesting when it is next to this house's wooden structural elements.
客服
消息
收藏
下载
最近









































