查看完整案例


收藏

下载
10年前,我在大学第三年。当时我的女朋友住在罗密兹,所以我不得不坐139路公共汽车,在Don Pepe Menyecske面前下车去接她。
匈牙利现在很少有像唐·佩佩这样的知名连锁餐厅。在过去的25年中,该品牌的持续存在使该品牌在整个社会中享有盛誉.当我意识到改变品牌的实际重要性时,我感到害怕。我很害怕,因为我们这一代不断地打造新品牌,根据我们的喜好塑造它们,并根据我们的习惯来调整它们。与此同时,我们这里有大量的现有用户,常客,所以我们的目标是重新发明当前的概念,并以一种当代的前瞻性方法取代它。
烹饪和餐厅文化的标准是如何提高的,而能够享受它的人的数量却给了我矛盾的感觉。在市中心有一个地方,在美食或设计上都会出现高质量的奇迹,很少有人能负担得起去看它们。我认为这阻碍了当代设计的广泛应用,以防阻碍进展。一定要做点什么。经过多个项目之后,我清楚地知道,只有在幸运和平衡的合作下,才能取得真正好的结果。业主自己创造了这个项目的气氛,她的开放的头脑,伟大的品味,友好和无穷无尽的爱她的工作25年。她是这个地方的灵魂,她把它绽放成了一种更新。
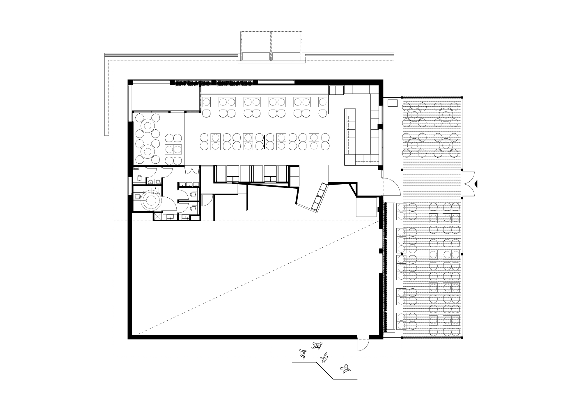
作为两步改造的开始,我们建造了一个很棒的Pergola,它在餐厅周围创造了一个小小的绿洲,它的滑动玻璃墙打开了屋顶结构。你可以想象自己就坐在地中海的任何一个小镇上。与这种空气流通形成鲜明对比的是,室内设计得更黑暗、更性感、更密实。有许多天然材料,如木材,苔藓和铜。霓虹灯的光芒穿过整个空间,在粗糙的灰色砖墙、木地板和闪闪发光的隔板上闪闪发光。除了这些敏感表面外,吊灯的三角形形状和吊顶也有严格的几何形状,隔板和木质墙壁覆盖物也有很强的平行性。在这个空间的中心是一个巨大的,高科技的酒吧,由不锈钢和所有最新的小工具,也可以服务于外部和内部,由于大的新窗户。
我在重开那天坐在那里。第一批顾客是一对年长的夫妇,常客已经25年了。他们坐下来,环顾四周,微笑着。从那以后,你就得预约。
Firm GASPARBONTA & Partners
Type Hospitality + Sport › Restaurant
STATUS Built
YEAR 2017
SIZE 1000 sqft - 3000 sqft
BUDGET Undisclosed
keywords:architecture, architecture news, interiors, interior design, portfolio, spec, brands, marketplace, products DON PEPE MENYECSKE
关键词:建筑、建筑新闻、室内设计、组合、规格、品牌、市场、产品
客服
消息
收藏
下载
最近















































