查看完整案例


收藏

下载
序言Preface
说到西藏,第一印象一定是多彩。正如经幡的五彩,是天空的蓝、云朵的白、炽焰的红、碧水的绿与大地的黄;长久的历史中人们将其赋予建筑、服饰及饮食,成为文化的重要特征。这所海拔最高的医院是青藏高原的第一所真正意义的儿童医院——西藏自治区妇产儿童医院。
When it comes to Tibet, the first impression must be colorful. As the colors of the prayer flags are the blue of the sky, the white of the clouds, the red of the flame, the green of the water, and the yellow of the earth; over a long period of time, it has been endowed in architecture, clothing and food, and it has become an important feature of culture. The hospital, the highest on the plateau, is the first truly children’s hospital in the Tibet autonomous region.
医院正面形象,The front of the hospital ©吕博
舞动的哈达
Dancing Hada
从空中看西藏自治区妇产儿童医院像两条吉祥的哈达在舞动——舞动的哈达;(在藏民族文化中,敬献哈达是一项传统又崇高的礼节,哈达代表了吉祥、祝贺的寓意。)
From the air, the maternity and children’s hospital of Tibet autonomous region is dancing like two lucky Hada — dancing Hada. In the Tibetan culture, it is a traditional and lofty ceremony. Hada represents the meaning of auspiciousness and congratulations.
▼空中看医院像舞动的哈达,Overlooking the hospital like a dancing Hada ©吕博
舞动的哈达南北两翼分别是儿童综合楼和妇女保健综合楼(儿童吵闹、好动又是患者,产妇则需要安静和闲适而且不是病态,适合南北分开),中央多彩的大楼是共享的医疗核心组团。
The Hada’s north and south wings are children’s complex building and woman’s health care complex building respectively, children are noisy, active and patients, and maternal needs to be quiet and relaxed and not sick, is suitable for the north and south. The central colorful building is a shared medical core group.
俯瞰南北两翼与共享组团,Overlooking the north and south wings with a sharing group ©吕博
新落成的西藏自治区妇产儿童医院采用国际先进的理念,拥有国内先进的医疗设备配置,赋有地域的文化特色。
The newly completed maternity and children’s hospital of Tibet adopts the international advanced concept, has the domestic advanced medical equipment configuration, is endowed with the regional cultural characteristics.
▼街景中的西藏自治区妇产儿童医院,The woman’s and children’s hospital of Tibet autonomous region in street view ©吕博
▼空中的“哈达”,Hada in the air©吕博
多彩Colorful
错落颜色的穿孔板灵感来自于藏文化的多彩,这个多彩既是室外景色的框景,又是室内处处的抵景。
The perforated panels with scattered colors are inspired by the colorful Tibetan culture, which is both a frame for the outdoor scenery and a backdrop for the interior.
▼错落颜色的穿孔板,Perforated plates with scattered colors©吕博
渗透的多彩,Permeable coloration ©吕博
阳光Sunshine
南北两翼旋转22°角,争取充分的阳光。
The north and south wings rotate at an angle of 22° for full sunlight.
▼采光天井
Daylighting patio ©吕博
屋顶的采光可以确保室内充足的阳光(不需要开灯)。
Light from the roof ensures plenty of sunlight inside, so don’t need to turn on the lights.
▼入口采光穹顶,Entrance light dome ©吕博
▼中央采光天井,Central lighting patio ©吕博
▼后区采光天井,The back patio ©吕博
大厅里的三种颜色,深蓝代表海洋,绿色代表森林,浅蓝代表天空。
The three colors in the hall, dark blue represents the ocean, green represents the forest, and light blue represents the sky.
大厅的海洋森林天空颜色
Hall of sea forest sky color ©吕博
儿童部分用绿色,可以使得他们更加安静;产妇部分用橙色,可以使他们更加温馨。(色彩系统贯穿未来物品和文件管理)
Use green for children part to make them quieter, use orange for woman part to make them more sweet. The color system is applied in future object and document management.
▼绿色的儿童空间,Green space for children ©吕博
▼橙色的产妇空间,Orange space for pregnant woman ©吕博
结语Conclusion
一座文化的,妇儿喜欢的,先进的西藏自治区妇产儿童医院正在给青藏高原带来新的气息。
A cultural, advanced and well-liked hospital for pregnant women and children in the Tibet autonomous region is bringing new life to the Tibetan plateau.
▼远看西藏自治区妇产儿童医院,A far off the hospital ©吕博
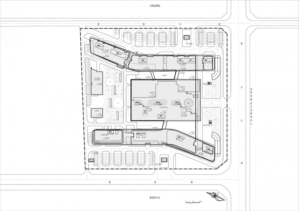
总平面图,siteplan ©八作建筑设计事务所
▼立面图,elevations©八作建筑设计事务所
▼剖面图,section©八作建筑设计事务所
项目名称:一座多彩的西藏妇儿医院
设计方:北京八作建筑设计事务所有限公司
开工日期:2016年
竣工日期:2018年8月
主持建筑师:王淼、张曙辉;
建筑师:石岚、贾若天、杨志强
项目地址:中国西藏自治区拉萨市柳梧新区
建筑面积:88560㎡
摄影版权:吕博
合作方:中国建筑西南设计研究院有限公司
客户:西藏自治区卫生计生委
Project Name: A Marvelous Tibet Woman’s and Children’s Hospital
Design: BAZUO Architecture Studio Co., Ltd.
Design & Completion Year: Commencement date: 2016, completion date: August 2018
Lead architects: Wang Miao and Zhang Shuhui.
Architects: Shi Lan, Jia Ruotian, Yang Zhiqiang
Project Location: Liuwu New District, Lhasa, Tibet, China
Gross Built Area: 88560㎡
Photo Credits: Lv Bo
Partners: China Architecture Southwest Design and Research Institute Co.
Clients: Tibet Family Planning Commission
客服
消息
收藏
下载
最近



























