查看完整案例


收藏

下载
©吕博
Yao Cafe 耀咖啡处于白塔寺药店一层西北角,原为白塔寺药店的经营空间一部分。如何在加入新的业态的同时,也能对药店的经营起到带动作用,并把传统中医文化传递给年轻一代是改造中需要考虑的重要问题。
八作建筑设计事务所
白塔寺药店得名于北京妙应白塔寺,已有超过百年历史。现白塔寺药店原为妙应白塔寺东侧一座上世纪70年代末的五层建筑,2013年经改造降为二层,立面风格与周围统一。近年来,医药企业探索新业务成为一种趋势。吸引更宽的年龄层,多样化经营成为白塔寺药店新的改造着手点,Yao Cafe 耀咖啡应运而生。
©吕博
Yao Cafe 耀咖啡处于白塔寺药店一层西北角,原为白塔寺药店的经营空间一部分。如何在加入新的业态的同时,也能对药店的经营起到带动作用,并把传统中医文化传递给年轻一代是改造中需要考虑的重要问题。
©八组建筑设计事务所
©吕博
咖啡馆与药店的融合
客人从石板小径进入咖啡馆后,需要使用位于药店内部的垂直交通才能来到位于屋顶的露天景观平台俯瞰白塔寺。过程中可以停下来欣赏传统中药的制作过程,感受中药店氛围。年轻群体可以在品咖啡,观白塔的同时参观传统药店,接触中医文化。
▲垂直楼层分布分析及轴侧-首层空间爆炸分析
▲入口石板小径
©吕博
©吕博
红墙与咖啡馆的对话
建筑师将白塔寺药店西侧部分围墙拆除并加入新的立面与外摆空间,将白塔寺东夹道红墙纳入咖啡馆的视野范围内,互相成为彼此的景观。将中国古典木架构体系抽象运用于外立面,并用现代材料模拟传统屋面瓦片,实现传统与现代相结合的立面效果。
©吕博
©吕博
▲靠窗布置座位区
©吕博
©吕博
传统药店建筑的现代演绎
从北京建筑传统青砖木构的配色中提取灰色与木本色,运用在建筑内外元素中。用现代的材料重新演绎传统空间美学。将传统中药店的“药斗”抽象重组,形成新的吧台背景陈列。将传统建筑中的“坐榻”引入到咖啡馆,形成半私密的小隔间。
©吕博
©吕博
©吕博
俯视妙应白塔寺
咖啡馆与白塔寺药店共享屋顶景观平台,可鸟瞰妙应白塔寺的庭院与白塔。西侧水磨石台面提供休闲座椅的功能,同时遮挡屋顶的空调设备管线。
▲屋顶平台提供了良好的视野
©吕博
▲入口夜景
©吕博
项目图纸
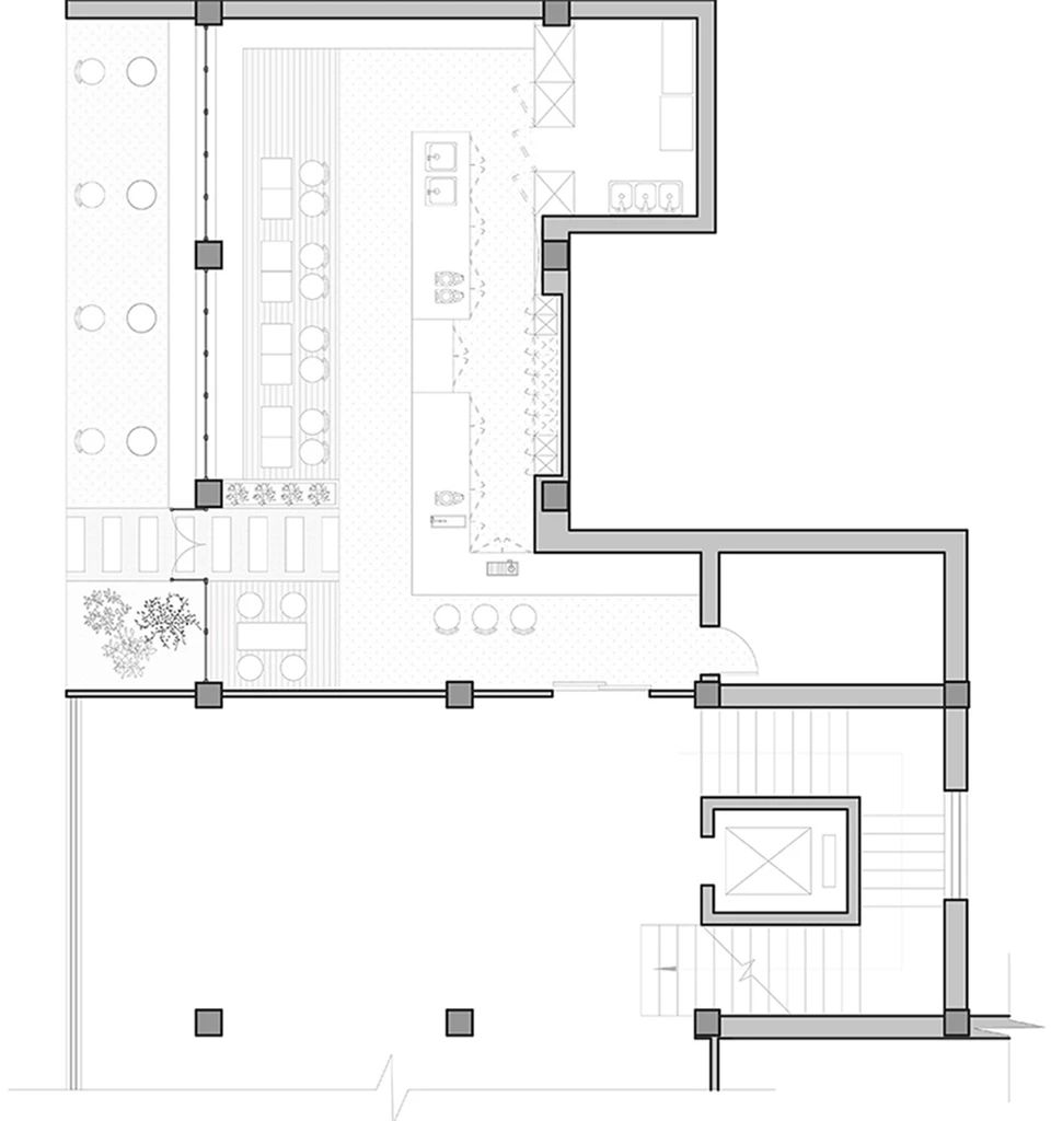
▲首层平面
©八作建筑设计事务所
▲屋顶平面
©八作建筑设计事务所
项目名称:Yao Cafe 耀咖啡
项目类型:建筑
设计方:八作建筑设计事务所
项目设计-完成年份:2022
项目合伙人:王淼
项目建筑师:曲茂琨
设计团队:英紫薇、乔麟然
项目地址:北京市西城区阜成门内大街165号1幢一层白塔寺药店西侧
建筑面积:86㎡
摄影版权:吕博
客户:北京金象复星医药股份有限公司
客服
消息
收藏
下载
最近




















