查看完整案例


收藏

下载
该项目旨在建立一种社会、城市和建筑之间的过渡关系,以回应区域内各个层级的建筑原型所构成的网络。设计方案试图通过两个体量来增强结构的清晰度。
The aim is to propose a social, urban, and architectural transition. This is to answer to the network of various built archetypes within the district on many levels. It offers to articulate the structure in two volumes.
▼建筑外观,exterior view ©Luc Boegly
这种清晰的表达方式能够将视角引向相邻的城市环境和氛围。花园空间呼应了艺术之家(Maison des Art)的设计,为这块位于巴黎城郊的场地增添了一份美学价值。附近的环城公路使其与交通系统形成密切的联系。
This articulation allows to direct the perspectives and orientations that relate to different urban environments and atmospheres. The garden made in the liking of the Maison des Art’s counterpart, will provide an added value this piece of the outskirts of Paris. It will be highly exposed to vehicle traffic, particularly due to the beltway situated nearby.
▼鸟瞰图,aerial view ©Luc Boegly
▼花园空间,garden ©Luc Boegly
▼从花园内部看建筑立面,view to the building facade from the garden ©Luc Boegly
▼檐下休息空间,the sheltered seating area ©Luc Boegly
建筑的另一侧朝向巴黎国际大学,与工艺美术馆形成互动。建筑以典型的“巴黎市郊风格”(faubourg)融入了前端的城市立面,并呈现出丰富而多变的水平层次:地面层以玻璃围合,二层空间通过立柱抬升于地面,上方的三个楼层以落叶松木包覆,最顶层则以穿孔铝板围合。
On the other side, facing the “Cite Internationale Universitaire de Paris”, the building will interact with La Maison des Arts et Métiers, where it will send a real urban facade to the frontal side by fitting in a “faubourg” piece of architecture. Thus, the facade shows a variety of horizontal layers: A glass-based ground extended by piles under the lowest floor, three larchwood floors, and finally the top floor in drilled aluminum sheets.
▼立面呈现出丰富而多变的水平层次, the facade shows a variety of horizontal layers ©Luc Boegly
▼松木板立面细部,larchwood facade detailed view ©Luc Boegly
▼二层空间通过立柱抬升于地面,the ground extended by piles under the lowest floor ©Luc Boegly
▼户外露台空间,outdoor terrace ©Luc Boegly
▼地面层以玻璃围合,the glass-based ground floor ©Luc Boegly
建筑外观上选用的材料同时满足了功能、经济和环境上的要求。楼内公寓的大小从20平方米到40平方米不等,并配备以用于工作和休息的公共区域。每套公寓均设有独立的入口,以及小厨房、客厅和浴室。
The selected materials take part in the appearance of the building and answer to all functional, economical, and environmental requirements. The residence will accommodate apartments from 20 to 40 square meters, as well as common rooms for either work and leisure. Each housing will comprise and include an entrance with a kitchenette beside it, as well as a living room and a bathroom.
▼内部公共空间,common area ©Luc Boegly
▼宿舍内部空间,apartment interior view ©Luc Boegly
▼户外花园,garden space ©Luc Boegly
▼场地平面图,site plan ©AAVP Architecture
▼首层平面图,ground floor plan ©AAVP Architecture
▼公寓层平面图,floor plan ©AAVP Architecture
▼东立面图,east elevation ©AAVP Architecture
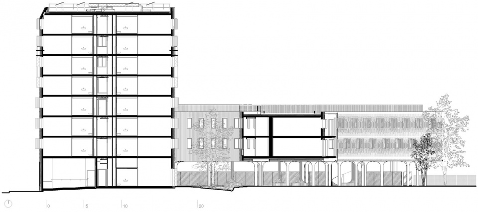
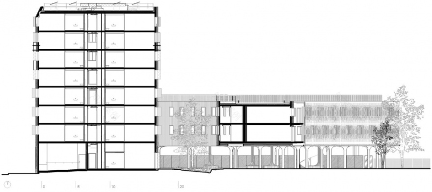
▼剖面图,section ©AAVP Architecture
Client : ESPACIL HABITAT
Architect(s) : AAVP ARCHITECTURE Paris (75011) Vincent PARREIRA, architecte mandataire
Prime contractor team :
12ECO (economy)
LBE (fluids engineering)
AIA (Structure engineering)
ALTIA (Acoustician)
IDEEL ENVIRONNEMENT (sustainable environment engineering)
ATEVE (Civil engineering)
Location : Paris 14 – Cité Internationale Universitaire de Paris
Deliery date : 2018
Program : 190 housing of a student residence
Competition year : 2013
Duration of studies : 18 months
Duration of construction phase : 24 months
Surface area : 5 611 sq.meters
Construction costs : 10.400.000€
Materials used : Wood, Concrete, aluminium board
Building companies : Angevin IDF, Isore Bâtiment, Dacquin IDF Nord – Ouest Eiffage Contruction Industries, Laboratoires Sublimm 79, A.G.H, UNISOL, Morais David
Environnemental labels : RT 2012 – H&E – PLAN CLIMAT PARIS
Awards : Nominated at the BIM d’OR 2016
Photographs: Luc Boegly
客服
消息
收藏
下载
最近





















