查看完整案例


收藏

下载
c‘est en 1891 que la Ville de Paris enRegia a la voie de 100 mètres ouverte deux和auparavant sur les terines du sieur Delessert,Enre la rue Pierre Dupont et le quai de Valmy.e l’extréMITéOriale,le Santa-Martin,autred‘huu un lieu de promenade et de villégiature,àl’époque une Artère duisant au de la Villette,quatrième港口工业公司el fran apais marseille,Le hav re et Bordeaux。这是一种很好的选择。APRéhendant le Conhendant le Conme le mélange de Populations,de mémores,d‘activités et de maties d’activités et de多人,b‘ties共存于au sein d’un mème lieu,l‘opé口粮comporte un ghumase,venu en Vefaàla ville de Paris,Sulequel se假设有69种社交活动。“埃莱尔”在“居住的时间”中提出了“伟大的工业”。L‘immeuble prend place le llong du way,tient l’anges deux ruant de se retourner sur la rue Pierre-Dupont.Lédédempe un mème母题f
De loggia en mélèze répétésur cinq niveaux,sans volontéd‘effacer ou d’amoindrir sa présence et le bouleversement cplités PAR son arrivée sur la dernière parcelle vide du quartier,un ruolique地形模糊的长模板
L‘adieu艰难时刻-关于巴黎的真皮-巴黎,La致密化d’un espaceouexexique le recres-收藏品La致密化s‘accompain néanmoins d’une多样化de Program qui profiteàl‘embledu quartier,et d’une义务de MiiitéProgrammatque in Scrite au PLU。Institutionéle Long du Passage Delesserdans un音量半企业,l‘équipement induit des intes qui fonentles spearités du projet。
“不可抗力”,“逻辑部分”,“结构与体操”,UNSérie de,Uésérie de
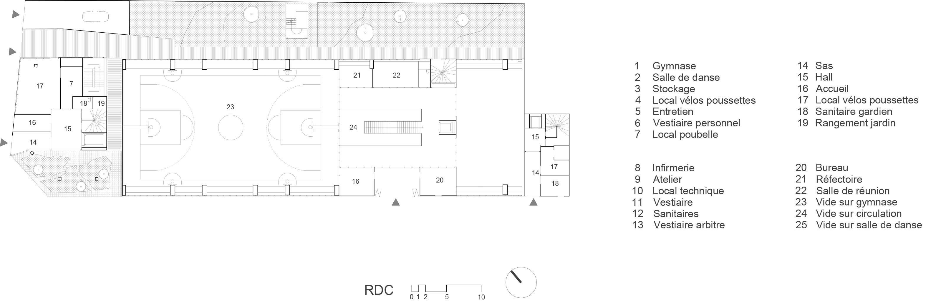
波蒂克特许经营公司加20米港口,不要为代理总理尼沃·德罗门特提供咨询服务,并为客户提供咨询服务。Un Faille Verticale sépare un premier Complex e Gyase/Logement d‘un plots de moindre维度,Comprevenant des logementes ené太奇ainsi que’rie de locaux de service en rez-de chaussée:accill gardien,locaux de stagedien,accès parking等。
礼拜堂(L‘accèsàchaque logement est une promenade Parière qui débute dans le Hall)
校长,OUVT UN JARIN半私有化,优柔寡断的联合国的不满。DU MARBRE PusieUnter unCalePiaNeN点de Hongrie AcCuele Le VisteUR et L'居住者,Voon et 'D'FoFrr DANS Le CeTurr社会UNE QualeTeLe Serve E AUX节目Hude de GAMME。L''TuffieDeSt.R.U.S.T.E.彼埃尔,SunueNe'Quuuux,A.P.E'ReNe Quune,Sun'GeNe'Reer-de Surc]。这是我的梦想。UnTeSeuIL,une CouthPaselyLouth-QuiDounina ACC的Un LoguToujsTraveSouthCout'dun'TealasePaysAsRePoeEe Surle Soule DudinaseTunes Les PrimeStand EN R 1。La上层建筑Des Cursives MealTales,形成Un PaysAsE.Soi-AuoCo de '''''.''''.''''.'''''.'''''.'''''.'''''.'''''.'''''.''''.CaqLogeStay-Dune'ununLogyPaulela,不La PrimoDurr变量EST CalCuLe倾泻Lass'L'Su'LayiTimeTimeTime.我们有一段时间。
Loggias,追求者,路人,代管人,esspace卫生棉条和jardins:L‘opéariation métage l’imitémais乘les transparens和les porosités vielle,quteàalleràl‘ensee d’une manie conporaine qui vit que la finalitéd‘une’unstruction soit d‘soler tement tout un chacun de la vue de l’autre。La descente aux salles sementerrées est Magifiée PAR unescalier Central Multiiant les Transparens dans les quatre Grandes directions cardinales。Les héberges des mitoyens divienent un visionle qui se déploie au cheminement de l‘cilant,littéralement projetédans un univers Multiiel de Cours arrière et Courettes grissants de destins Multiiels。
考虑到Put t du c tédes pittoresques parCours domestiques de on Onclede Jacques Tati,Ou des Vaties de Fenêtre Suour?d‘Alfred Hitchcock,le b timent se veut autant une Machineàcer quune-录象机。VILE,PASANT,CORERD‘LOX,VOISIN,TOUT se VILILE et Se DévoILILEàTURE au Grédu déplace,CES VISION fugace amp ifiant le Potel des Rencontres,Magnifiant la Diversit et l’énerqui字体le meilleur des métroc es。
Firm AAVP architecture
Type Residential › Multi Unit Housing
STATUS Built
YEAR 2016
SIZE 1000 sqft - 3000 sqft
Photos LUC BOEGLY 2016, Luc Boegly
keywordsarchitecture, architecture news, interiors, interior design, portfolio, spec, brands, marketplace, products LESS
关键词建筑,建筑新闻,室内设计,产品组合,规格,品牌,市场,产品少。
客服
消息
收藏
下载
最近
























































