查看完整案例


收藏

下载

翻译
Transart is a multifaceted platform for the creative activities of an artist and independent curator in Houston, Texas. Designed by SCHAUM/SHIEH of Houston and New York, the new building will house visitors, art, exhibitions and performances, and will host conversations that spark broader community dialogue about the role of art in our lives, providing a space for the critical intersection between art and anthropology.
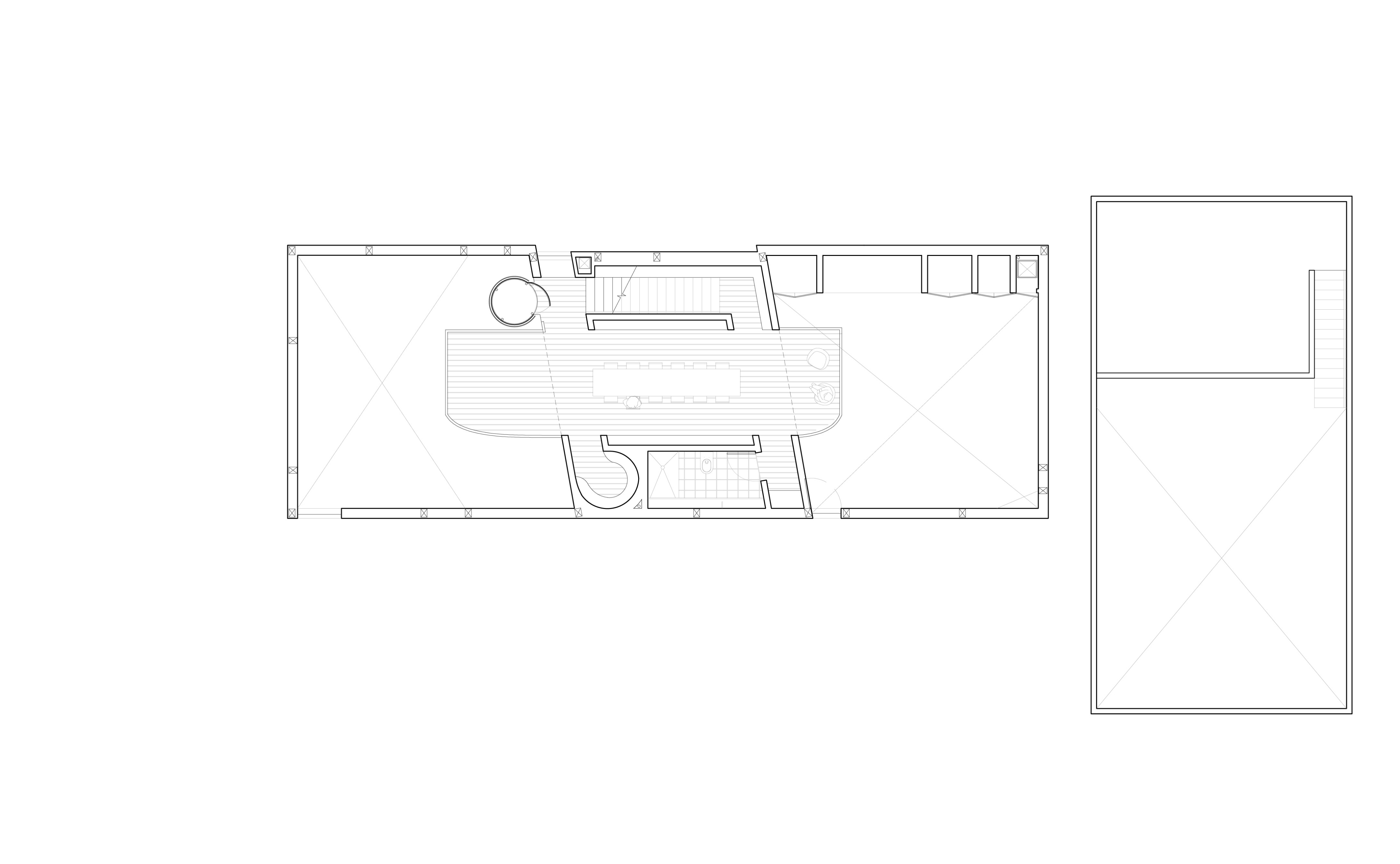
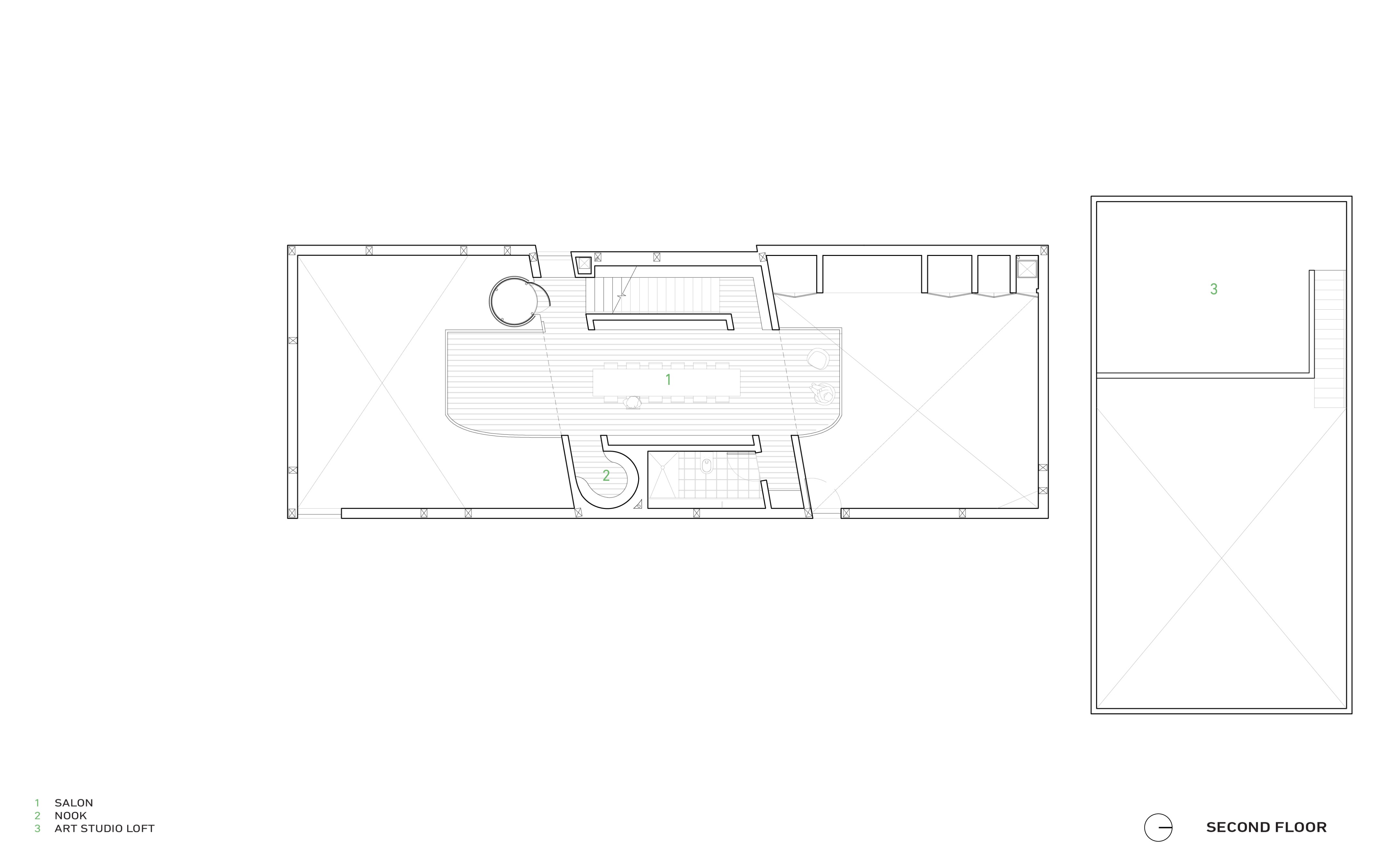
The project is designed around a 3,000squarefoot gallery & library. This large “living room” is punctuated in the middle by a circulation core that integrates steps and a library, expanding into a secondfloor salon that is open to the space below, effectively dividing the gallery into two adjacent exhibition spaces. The front exhibition space, naturally lit and facing the street, is reserved for more traditional exhibitions, the back has less natural light and is reserved for new media or performance works that require lighting control. A cylindrical steel and acrylic elevator is positioned in the back of the core for alternative access.
The second floor also contains an intimate space for oneonone meetings or personal meditation, and a bathroom. The third floor of the core contains an ample office and a roof deck and garden. "We introduced some playful moments into the otherwise taut plan", says SCHAUM/SHIEH of the interior. "There is a sink lathed out of a tree salvaged from Hurricane Harvey; a sculpted, cavelike nook tucked into the wall off the seminar area; and a galvanized steel beam is used as a bathroom countertop." Adjacent to the primary building, an existing photography studio on the site was wrapped in gray cementitious planks with a metal roof, providing extra space that will extend the potential for art programming and provide separate quarters for visiting artists and scholars.
The exterior facade of the primary building is smooth white stucco panels, creating a tectonic language in which the gaps and seams can let light in by forming swooping windows. The structure is built from thick heavy timber in a manner akin to a Dutch barn; carved so that the front corners come together precisely in front.
"We were pursuing a sense of overall lightness; specifically, we were interested in how the geometry and material finish might make the building feel like it could blow away in the wind, ruffle like fabric, or disperse and scatter like cards", says SCHAUM/SHIEH.
The modest scale of the Transart preserves an open relationship to the street and reinforces the walkability of the neighborhood, extending the tradition of the nearby Menil Collection, Rothko Chapel, and St. Thomas Campus. The curving fenestration of the envelope provides controlled indirect light for exhibitions and oblique views outward, while protecting the interior from direct solar gain. In particular, thick timber exterior walls filled with high rvalue closedcell insulation allow for high performance through conventional construction methods. A simple system of passive cooling is paired with a highefficiency air conditioning system for further efficiency.
Transart is located at 1412 West Alabama Street, Houston, TX 77019.
- 4,200squarefoot space (3,000squarefoot primary building, 1,200squarefoot adjacent studio building/living quarters)
- Exterior made of smooth white stucco panels
- Curving fenestration created by gaps in the panels, offering controlled indirect light for exhibitions and protecting interior from hefty solar gain
- Front gallery reserved for traditional exhibitions, while back gallery features controlled lighting conditions for new media and performance
- Compressed middle core with spaces for dedicated activities (library, offices, intimate meeting room) that contrasts with flexible and sweeping exhibition spaces in front and back
- Other sustainable elements: cavities filled with high rvalue, closedcell insulation allow for high performance; passive cooling is paired with highefficiency air conditioning
- Kitchen embedded in back service wall
- Custom furniture includes galvanized steel beanshaped sink with lathed white oak log as pedestal base; triangular glass office desk that is integrated into the wall
Project Info
Location: Houston, Texas – Montrose Neighborhood
Size: 4,000sf
Residence/Studio/Library for an artist and curator who explores the intersection between Art and Anthropology. Designed to house large library, host dinners and artist conversations, and exhibit her work as an artist/curator. An art studio in back serves as a space for artistic production.
Project Credits
Architect:
SCHAUM/SHIEH (always with all caps in print)
Team: Giorgio Angelini, Tucker Douglas, Ane Gonzalez, Nathan Keibler, Kevin Lin, Anika Schwarzwald, Ian Searcy, Anastasia Yee, Yixin Zhou
Structural Engineer:
Zia Engineering - Steve Wilkerson
Contractor:
Welch Construction - Rallin Welch
A/V:
RC Automations - Fernando Tapia
Lighting Designer:
Lighting Associates Inc. – Dustin Graper
Custom Nook Fabrication:
Jeff Jennings and Steve Croatt
Custom Steel Windows:
Cedar Mill Company
Pneumatic Elevator:
Home Elevator of Houston
客服
消息
收藏
下载
最近































































