查看完整案例


收藏

下载
本项目位于距北京城区西北方向70 公里外的妫河北岸,用地是一块待开发的用地,拟在用地上建设一片文化创意园,供艺术家和设计师使用。管理用房将为园区内的物业管理人员提供办公、宿舍和餐厅,同时还为来访的访客提供住宿服务。
The project is located on the north bank of Gui River 70 kilometers northwest of the urban area of Beijing, on a piece of land that remains to be developed. A cultural and creative park is planned on the land for artists and designers. The administrative buildings will provide offices, dormitories and dining rooms for property management staff in the park, and accommodation for visitors.
▼建筑外观,external view of the building
建筑位于园区北侧主入口的东边,面对一片空旷的场地,我们必须让建筑担当双重角色。一个孤独的建筑以及未来在一个有相当密度的小型聚落中的一员,而难题在于这个变化的周期难于预测,它必须首先为园区未来的建筑风格定调,同时它又必须真实地表达她自己所扮演的角色。由于建筑北面是园区的围墙,墙外是一条公路,建筑南侧则是园区以及远处的湖面和森林公园。
The building is situated on the east of the main North Entrance to the park. Facing an open space, the building must play a dual role, namely, a lonely building and a member of a relatively dense settlement in the future. The difficulty lies with the uncertainties for future changes and the time the process might take. The building must first set the tone for the future architectural style of the park and at the same time truly interpret its own role. On the north side of the building is the enclosure wall of the park, and outside the wall is a highway, while on the south side of the building is the park itself and the distant lake and forest park.
▼建筑外观,呼应道路和自然环境,external view of the building corresponded to the roads and natural environment
▼轴测图,建筑由三部分组成,axonometric drawing, the building is composed by three parts
建筑物在园区的特殊位置及特殊时间的建造决定了它的样貌,一种高标准的、亮丽的形象,用来吸引潜在的投资者进入园区,在矩形的用地上,建筑物采用三个几何元素构筑,一个位于西北侧的三层的L 型白色体块和一个位于东南侧的一层和L 型深灰色体块相对而置,并在中间形成了一个小院。两组由若干随意摆放的黄色小块组合的房子分别布置在北侧L 型体块和南侧L 型体块的下面和上面。这种体块的布置试图为一个以设计为主的创意园区制定一种基调。
The building’s special location in the park and the time of its construction inevitably mean that it should be built to high standards with a bright image to attract potential investors into the park. On the rectangular piece of land, the building is composed of three geometric elements, a three-storey L-shaped white block on the northwest side opposite to a one-storey L-shaped dark gray block on the southeast side, forming a small courtyard in the middle. Two groups of houses composed of randomly arranged yellow blocks are built below and above the L-shaped blocks on the north and south side, respectively. The layout of these blocks attempts to set the tone for a park based on creative design.
▼入口,entrance
▼黄色的立面吸引人进入园区,facade in bright yellow attracts people into the park
▼庭院,courtyard
▼建筑上随意摆放的黄色盒子,连接不同空间,制定设计基调,yellow boxes on the building, connecting different spaces while setting a tone of creation
▼黄色走廊内部空间,interior space of the yellow corridor
▼办公入口空间,entrance space of the office
▼餐厅,Canteen
▼客房,guest room
▼夜景,night view
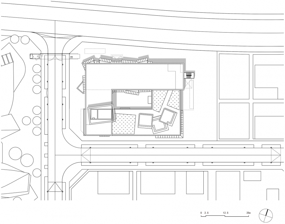
▼总平面图,site plan
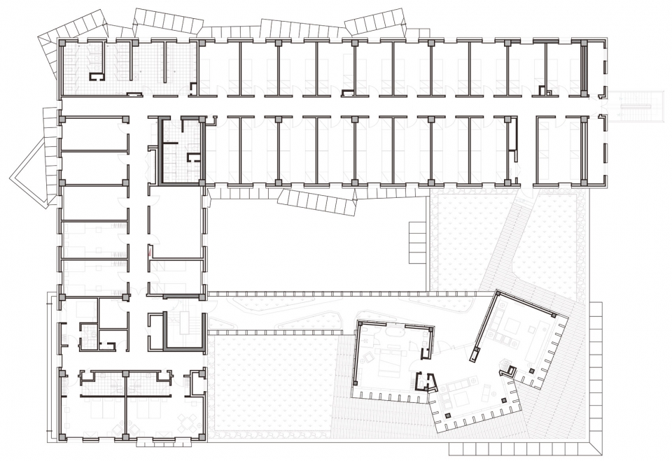
▼一层平面图,first floor plan
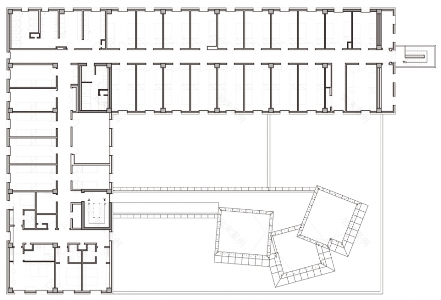
▼二层平面图,second floor plan
▼三层平面图,third floor plan
▼立面图,elevations
▼剖面图,sections
项目名称:北京妫河建筑创意区综合管理用房
建筑师或者建筑公司:BIAD胡越工作室
项目设计 & 完成年份:2014年1月设计,2017年4月完成
主创及设计团队:胡越、邰方晴、项曦、冯阳、刘军、陈宇、王威、李硕、张成、郭琦、逢京
项目地址:北京市延庆区延农路8#
建筑面积:6257㎡
摄影师:陈溯、付兴
客户:北京建院建筑设计创意有限公司
客服
消息
收藏
下载
最近































