查看完整案例


收藏

下载
▲8号院改造前后示意轴测图
▲19号改造前后轴侧示意图
本案以满足住户基本生活需求为前提,力图在极端拥挤的环境中重现传统合院建筑的空间格局。我们通过部分的拆改和加建,使得每个住户都能分享内院空间,都能获得充足的阳光,都能获得良好的通风条件,亦使每个住户重新体验到传统合院的静谧安逸,重新获得生活的乐趣和尊严。
▲19号-北侧院落
▲19号-北院长廊
▲19号-南侧院落
▲19号-耳房采光井
▲19号-沿胡同里面
▲19号-立面局部
▲19号-改造前后对比
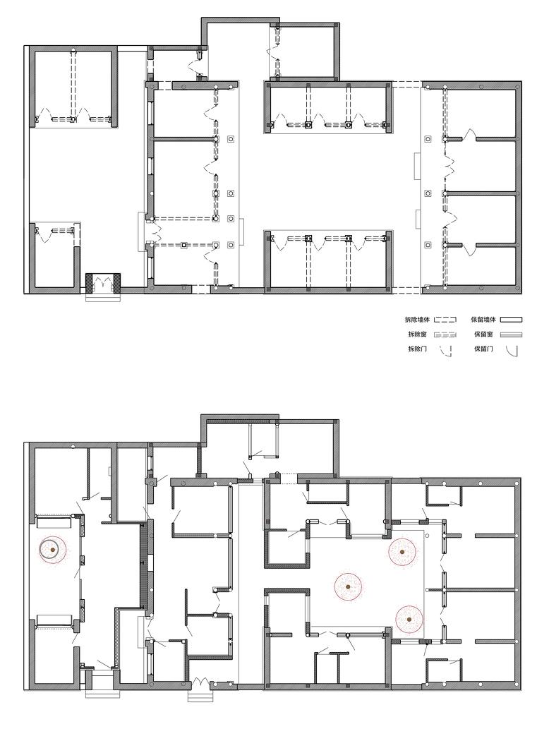
▲19号-改造前后对比平面图
▲8号-主入口
▲8号-沿胡同立面
▲8号-庭院
▲8号-从客厅看庭院
▲8号-从卧室看庭院
▲8号-从西侧看庭院
▲8号-从北侧看庭院
▲8号-东向西俯视
▲8号-院落局部前后对比
反思
在8号院和19号院改造过程中,我们曾反复思考:传统建筑在当代城市生活中的角色和关系。我们发现传统建筑与现代城市的冲突表现在尺度和角色转换两方面
▲概念示意
胖子——尺度的转换
院子中有一个10米高的充气人偶——胖子。他的身高是推算得来的。过去北京一般胡同宽度约4-5米,而现代一般城市次级路得宽度是30米、主路宽达百米以上。随着技术的进步,城市尺度越来越大,怡人的小空间被非人的巨大空间取代。按照过去人的身高与街道宽度比值(1.7/5)反推,根据现代道路宽度(30米),人的身高至少要达到10.2米。其实我们日常生活的空间单元(如居室)与过去相比是有所减少的。但我们的公共空间以及构成他们的尺度却如此巨大。在这里你看到了变化和冲突,希望他能引起观众深刻的思考。
▲传统肌理尺度下的胖子a
▲传统肌理尺度下的胖子b
▲内院中的胖子
饺子——角色的转换
作为一种传统食品,在这里饺子是靠垫,是沙发。它徒有外形,功能,尺度,材质已转换。这正是许多传统文化在当下的境况,你看后是否还联想到别的什么?
▲饺子沙发
建设地点:北京市东城区草场四条胡同8号院和19号院
创作时间:2015.5-2015.10
建成时间:2015.12
建筑面积:435.4㎡
高度:5m
层数:局部加建二层
创作团队:胡越、邰方晴、姜然、吴汉成、赵默超
业主:北京天街集团有限公司
创作团队:胡越、邰方晴、姜然、吴汉成、赵默超
设计单位:胡越工作室
摄影师:杨超英;陈溯
客服
消息
收藏
下载
最近




































