查看完整案例


收藏

下载
既要与老城、老剧场相协调,又要保证北京人艺的国际形象,古典复兴式的首都剧场、新建的现代北京国际戏剧中心、老北京传统四合院,这三者戏剧性地融合在一起,形成了富有张力的建筑群。
北京国际戏剧中心是北京人民艺术剧院的扩建工程,位于东城区王府井大街北京人民艺术剧院内,现状首都剧场的东侧,是一座集话剧演出、艺术创作、排练、展示、机房、停车等于一体的综合观演建筑。北京国际戏剧中心由北京市建筑设计研究院有限公司胡越工作室设计,于2021年7月竣工并投入使用,获得了各方好评。
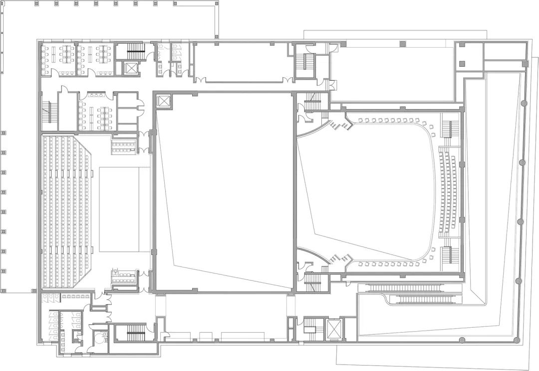
北京国际戏剧中心的建成,使享誉中外的北京人民艺术剧院又增添了两座驻团新剧场,包括一座中型专业话剧剧场“曹禺剧场”,容纳约700名观众;一座“人艺小剧场”,容纳约300名观众。项目总建筑面积2.3万平方米,地上3层、地下4层,建筑最高处台塔高度为25米,结构形式为钢筋混凝土框架剪力墙结构。专业流线包括独立的演员流线、舞台布景流线、贵宾流线,与观众流线完全分开。
坐落于东城区老城中心的胡同里,周围是北京四合院的传统民居,项目用地异常紧张,设计需要利用紧凑的布局化解用地和功能需求的矛盾。项目布局为南北向,小剧场位于曹禺剧场后舞台的上方。由于毗邻着50年代建成的文物建筑“首都剧场”,因此在外立面设计上,与老剧场的色彩相协调,同时风格上则采取简约大气的现代风格。项目位于四合院之中,在剧场外复建了一座传统四合院,与周围环境相协调。
既要与老城、老剧场相协调,又要保证北京人艺的国际形象,古典复兴式的首都剧场、新建的现代北京国际戏剧中心、老北京传统四合院,这三者戏剧性地融合在一起,形成了富有张力的建筑群。
进入剧院,前厅富有视觉冲击力的12米高的玻璃砖墙展现在人们面前,这是亚洲最高的玻璃砖墙。玻璃砖的尺寸模仿了四合院的青砖尺寸,半透明质感的玻璃砖幕墙为观众在进入观众厅前,带来一种神秘感。尽端的一部木质旋转楼梯从二层休息平台悬挑出来,以有机的形态活跃了室内休息大厅空间。
通透的落地玻璃幕墙使人们能够欣赏到室外周围四合院的风景,室内与室外的边界被“模糊化”,使得休息大厅和周围四合院融合在一起。登上旋转楼梯,可以将人们带到曹禺剧场池座后部的入口。晚间演出前,休息大厅顶部黑色吊顶上满天星的灯光熠熠生辉,烘托出戏剧的神秘之光。
▲剧场二层入口处 - 玻璃砖墙
以木色、灰砖色为主调的“曹禺剧场”可容纳约700人,在室内设计上,契合北京传统民居四合院的特点。整个观众厅的围合感很好,尺度合宜,使人感到稳重、传统和亲切。观众厅由池座和两层楼座组成,设计以自然声直达的1.1秒为混响时间。观众厅内部空间运用了A级防火木饰面板,设计出多种表面凹凸造型与肌理,既为观众厅提供了微扩散面的声学效果;另一方面,实木造型与后部凹凸不平的深灰色错落有致的“灰砖”GRG墙面一起,形成冷暖与深浅对比,映射出老北京胡同的设计元素。观众厅上部三条飘浮在吊顶下的空中木色飘带,是两道面光桥和一道追光桥。红色座椅,与木色墙面、深灰色GRG墙面、黑色吊顶一起,美美与共,烘托出热烈的演出氛围。
为了满足人艺的演出需求,舞台尺寸是标准较高尺寸较大的品字形舞台,采用镜框式舞台、伸出式舞台两种使用形式,观众厅前部乐池依靠机械设备可升起成为舞台的一部分变成伸出式舞台,也可作为活动座椅区增加一部分观众。当乐池升至伸出式舞台台面标高时,表演区将前移,使观众最大限度地听到演员清晰的自然声和观赏到演员细腻的表情,形成良好的观演气氛。在目前国际戏剧中心先期启动的曹禺三部曲的《日出》和《雷雨》中,乐池区均是作为伸出式舞台使用。
“曹禺剧场”和“人艺小剧场”被视为与其演出功能相关的两个独立个体,每个剧场均有独立的化妆区、技术用房和观众休息区。“人艺小剧场”的休息厅同时也是戏剧展廊,上部自然光天窗为展廊带来一天中变换的光影。
墙面黑灰色为主调的“人艺小剧场”,是典型的黑匣子式实验小剧场,蓝色的机械座椅可以根据演出需要任意组合,适用于多种剧目演出。墙面采用与“曹禺剧场“相同的A级防火木饰面板,分为普通和微穿孔吸声两种表面处理方式,每块板材设计成900×600的表面楔形单元块,颜色从黑色过度到深浅不同的暖灰色,共四种颜色随机排列。根据建声顾问的精确计算,在不同立面分设有不同的吸声面积和排布要求。
以浅黄色为主调的排练厅共有三间,两间较小的呈正方形,一间较大的为长方形,且上部有天窗作为自然采光。有着横向长圆孔的浅色A级木饰面穿孔吸音板,采用15.5%的穿孔率以达到建声的计算要求。以1200×600为板材模数,立面上与门高和窗高分别对齐。
北京国际戏剧中心项目落成后,于2021年7月进行了试运行,观众反馈非常好。整个观众席形成一个非常好的包围性氛围,保证了观看视线的舒适度,观众无论坐在哪个位置,都能够听清舞台上的一念一叹,将艺术家们的一颦一笑尽收眼底。与此同时,这些凹凸不平、错落有致的“灰砖”,与幕天席地、环绕四周的“木材”一起形成了最适合话剧演出的建筑声场,让北京人艺演员不戴麦克风仅用自然声,就能达到满意的声场效果。
继承首都剧场的优秀传统,本着和而不同的精神,北京国际戏剧中心项目打造了具有时代特色的新型剧场,为王府井核心区又增添了一处重要的文化新地标。
北京国际戏剧中心 2011-2021 中国,北京
类型:剧院
占地面积:17755 m2
建筑面积:23026 m2
建筑高度:25m(台塔),17m(檐口) 业主:北京人民艺术剧院
建筑设计:北京市建筑师设计研究院有限公司胡越工作室
主持建筑师:胡越
设计团队:胡越、邰方晴、游亚鹏、陈威、赵默超、梁雪成、陈向飞、吴爽、张燕平、奚琦、杨晓宇、马云飞、薛沙舟、赵墨、严一、申伟、吴威、张林
古建筑顾问:北京方州基业建筑设计有限公司
建筑幕墙顾问:建研科技股份有限公司
舞台工艺顾问:北京博奥特舞台设计咨询有限公司
声学顾问:华东建筑设计研究院有限公司 声学及剧院专项设计研究所
室内设计顾问:中孚泰文化建筑股份有限公司
建筑照明顾问:天合光音照明设计(北京)有限公司
标识设计顾问:北京良好文化传播有限公司
施工单位:北京城建亚泰建设集团有限公司
客服
消息
收藏
下载
最近































