查看完整案例


收藏

下载
该项目旨在为一家现代农贸公司翻新其7层办公大楼,设计师在这里创造了一种新的工作场所体验,特别是 “水稻梯田”的这一设计充分体现了公司的商业运营理念。
In rethinking a 7-storey office building for a leading agricultural trading company, we envision a new workplace experience by approaching the design with a concept of the ‘rice terrace’ that becomes an architectural embodiment of the company’s philosophy and business operation.
▼远眺位于居住区中的建筑,the overview of the buildings in the residential area
由于各种场地限制,如地界、高度限制和不规则的场地边界,同时为了满足公司的办公要求,设计师认为该建筑必须展现高效这一概念,每个楼层的体量都被改造为略微不同的形式,由此形成了一系列重叠的悬挑露台结构。 简洁的堆叠式露台也将室外的动植物景观渗透到建筑内部的多个功能区域中。
Due to various site restrictions such as setback regulations, height limits, and the unusual site boundary, it became necessary for the architectural massing to be efficient in order to fulfill the functional requirements of the company. This was resolved by shifting the mass of each floor to slightly different from each other, creating a series of overlapping cantilevers and terraces. The simplicity of the stacked terrace has become a sophisticated solution allowing the local flora and fauna of the outdoor landscape to permeate into multiple areas and functions of the architecture.
▼建筑外览,the exterior
▼以 “水稻梯田”为主题的的建筑侧面,the facade of the building with the theme of “rice terraces”
▼每个楼层间相互错落重叠,each floor overlaping with each other
整个“水稻梯田”建筑为所有人提供了灵活的公共空间,让人们意识到公司的归属感和公共认同感。屋檐下的空间也作为户外聚会、分享、工作的理想场所,为员工提供了多种多样的空间使用方式,也为整个工作场所营造出了一种自然而知性的氛围。不同于简单的划分空间,错落的空间设计能够给人带来了更多的联系和互动,消除内外部之间的界限。
▼结构示意图,the diagram of the facade
These ‘rice terraces’ become a flexible common area for all, encouraging an awareness of place to foster a sense of belonging and shared identity for the company as a whole.The overhanging eaves provide ample of shading for gathering, sharing, working outdoors during the day which allows for multiple and diverse use of space. This provides a natural and intuitive atmosphere for the overall workplace inciting connectedness and interaction over compartmentalization; dissolving the boundaries between the interior and the exterior.
▼俯瞰郁郁葱葱的露台空间,overlooking the lush terrace space
▼与办公区相连接的上层庭院空间,upper courtyard space connected to the office area
▼沿袭建筑风格的底层入口庭院,the entrance courtyard that follows the architectural style
整个项目不光满足了办公功能需要,同时设计师还根据泰国的热带气候制定了一套环境策略。一个由铝制垂直翼片构成的特色的立面成为了外部和内部之间的多重媒介。通过计算太阳角度及其运行轨道后,每个翼片将会跟随各个方向上的太阳光线而改变,这样的设计既可以作为遮阳设备,还可以作为自然通风的通道,同时为住宅的提供更多隐私性。这些垂直板条有助于过滤掉太阳光所带来的多余热量,从而减少对空调的依赖。每层楼的“水稻梯田”也有助于缓解建筑物的制冷负荷,以完全自然的方式抵御热量的吸收,营造出建筑物特有的微气候,中和可能出现的不平衡气候。
▼每个翼片将会跟随各个方向上的太阳光线而改变,the dimensions of each fins was calibrated to resolve the orientation of the sun’s ray in all directions
Beyond functionality, we have created an environmental design strategy in accord with the tropical climate of Thailand. One of this feature includes the aluminum vertical fins of the facade that has become a multi-mediator between the exterior and the interior. In calculating the sun angle and its cycle, the dimensions of each fins was calibrated to resolve the orientation of the sun’s ray in all directions. More than a shading device, it also acts as a passageway for natural ventilation, and a privacy filter from the neighbouring residences. These vertical slats help to significantly reduce the reliance on air-conditioners by filtering over-exposed light and excess heats from the sun. The sheer mass of the ‘rice terrace’ on each floor also helps to soften the cooling load of the building acting as a completely natural insulation from the direct heat gain. This results in the creation of a microclimate for the building which helps to neutralize the imbalanced climate conditions that may arise.
▼由铝制垂直翼片构成的特色的立面,a characteristic façade made up of aluminum vertical fins
▼从下向上仰视立面结构,looking up from the bottom up the facade structure
此外,这里的工作环境不同于典型的办公楼,它不仅能创造一种新的工作体验,同时也可以成为提高每个办公室成员生活质量的催化剂,以及与周围环境相融合的绿色空间。
We envision a working environment that is distinct from a typical office building, not only by seeking to create a new working experience that can become a catalyst to increase the quality of life for each office member, but also to extends beyond the site to become a green space for the surrounding context as well.
▼一楼接待大厅,reception hall on the first floor
▼外立面结构为房间内部带来独特光影效果,facade structure brings unique light and shadow to the interior of the room
▼外露的楼梯,the exposed stairs
▼建筑夜间效果,the building at night
▼夜间上层平台效果,the night effect of the upper platform
▼建筑轴测,the axon
▼一层平面,the 1st floor plan
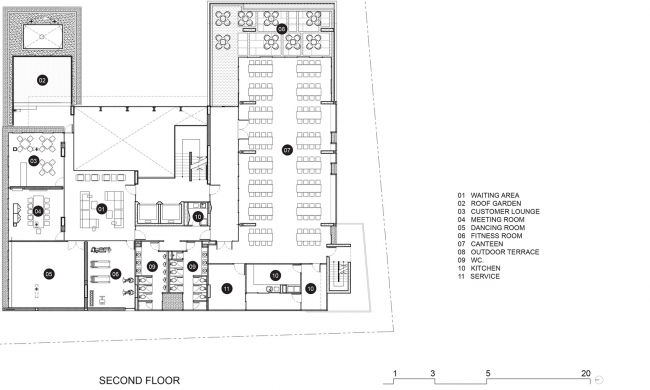
▼二层平面,the 2nd floor plan
▼剖面图,sections
Location:Bangkok, Thailand
Type:Architecture and Interior Design
Program:Office Building
Client:Inter Crop Co.,Ltd.
Site Area:2,450 sqm.
Built Area:3,500 sqm.
Design:2014-5
Completion: 2018
Construction Cost:N/A baht
客服
消息
收藏
下载
最近


























