查看完整案例


收藏

下载
© Ketsiree Wongwan
c.凯西里·王湾(Ketsiree Wongwan)
架构师提供的文本描述。当男孩日久计划将沙龙扩展到上层,以提供更多的等候区域和多用途空间时,Stu/D/O开发了一种将两层连接在一起的方法,以及一个连续的钢棒环,这主要是作为新的移动式切割装置的一种结构。
Text description provided by the architects. As BOY Rikyu planned to expand the salon to the upper floor to provide more waiting area and multi-purpose space, Stu/D/O has developed a way to tie two levels together with a loop of continuous steel rod, which serves mainly as a structure for the new mobile cutting units.
这种原钢棒从前台到切割区,穿过空隙,进入等待和多用途区域,然后在一个连续的循环中返回,将不同的功能编织到一个统一的空间中。镜面单元和架子单元的设计是与这个杆系统,而不是附在墙上,所以家具可以定位,以适应任何目的或情况。
This raw steel rod runs from the front reception to the cutting area, up through the open void, into the waiting and multi-purpose area, and back down in a continuous loop, weaving different functions into a united space. Mirror units and shelving units are designed to hang with this rod system rather than attaching to walls, so furnishings can be positioned to fit any purpose or situation.
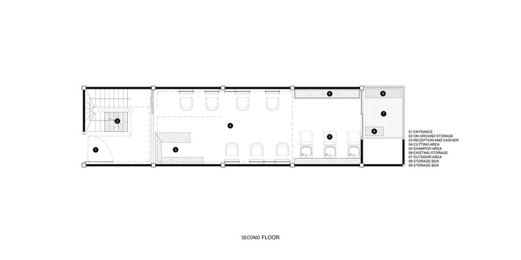
Second floor plan
二层平面图
© Ketsiree Wongwan
c.凯西里·王湾(Ketsiree Wongwan)
Third floor plan
三楼图则
虽然楼层和服务柜台采用天然混凝土颜色,但室内漆成白色,为客户提供中立感,并强调房间中的用户和活动。
While the floor and service counters were in natural concrete color, the interior was painted white to provide a sense of neutrality for client and to accent the users and activities in the room.
© Ketsiree Wongwan
c.凯西里·王湾(Ketsiree Wongwan)
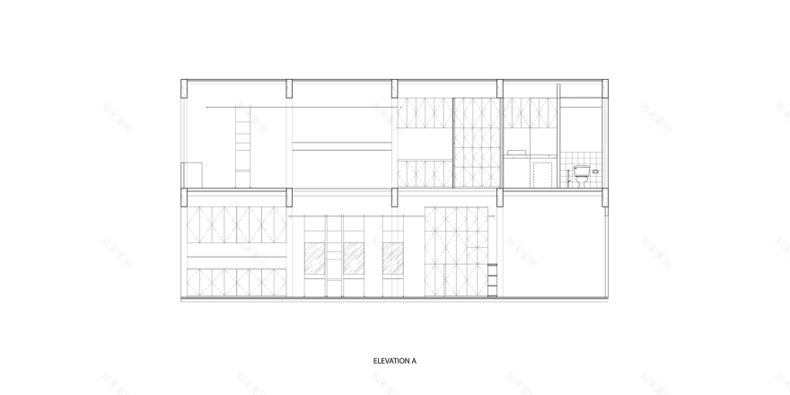
Elevation B
标高B
© Ketsiree Wongwan
c.凯西里·王湾(Ketsiree Wongwan)
男孩是以一种简单的方式设计的,考虑到“连通性”,以反映美容院员工和客户之间紧密联系的体验。空间被缩小到它的主要功能,以强调在沙龙内的人,但允许动态适应性为用户服务。
BOY was designed in a simple approach with ‘connectivity’ in mind to reflect the salon’s closely knitted experience between staffs and customers. The space is minimized down to its main functions in order to emphasize the people within the salon, yet allowed dynamic adaptability to serve the users.
© Ketsiree Wongwan
c.凯西里·王湾(Ketsiree Wongwan)
Architects Stu/D/O Architects
Location Bangkok, Thailand
Project Team Apichart Srirojanapinyo, Chanasit Cholasuek, Park Lertchanyakul, Thanipath Thanawuttimanas
Area 120.0 m2
Project Year 2016
Photographs Ketsiree Wongwan
Category Interior Design
客服
消息
收藏
下载
最近



































