查看完整案例


收藏

下载
三上料理起源于80年代的香港,在杭州相继开设了多家分店,此项目位于杭州西湖文化广场银泰百货5楼,客户希望对餐厅的中庭进行改造,以包厢的形式来提升消费档次和就餐的私密性。
Shanshang Cuisine originated in Hongkong until the 1980s with many branches opened gradually in Hangzhou. This project is located on the fifth floor of Intime Retail Group in Hangzhou West Lake Culture Square. And customers suggest to reconstruct its atrium into the form of private rooms to raise the level of consumption and ensure the privacy.
▼空间内景,interior view
▼餐厅外立面,the front facade
我们在空白的中庭区域植入了和室建筑,分隔成五个独立的包房,有两个通过中间活动的隔断可以灵活的组建成大的包房,满足团队集体就餐的需求。
Therefore, in the blank atrium area, we implant the Japanese style building separated into five independent space. Two of them can be flexibly formed into a large room by the removable panels in the middle, to meet the needs of group gathering.
▼在空白的中庭区域植入了和室建筑,in the blank atrium area, we implant the Japanese style building
▼包厢过道,the corridor
▼包厢入口,entrance to the room
包房采用日式传统的和室风格,全部由木质框架构建,保留了木榫结构,整个底层架空,显出轻盈之感。为了避免室内空间狭小导致的封闭感受,我们在包房的墙体开设了大小不一、形状各异的窗洞,达到室内外的沟通和交流。窗和移门采用了木格和日式宣纸结合,自然通风而采光,营造出诧寂之美。
Private rooms using the traditional Japanese style are all constructed by wooden frame, retain the wooden tenon structure, and show the lightness through the ground open floor. In order to avoid the depression feeling from the small indoor space, there will be some openings in the walls with different sizes and shape, to achieve the indoor-outdoor communication. Windows and sliding doors use timber conpartment combined with Japanese Xuan paper, realize the natural ventilation and sufficient daylighting, and create the beauty of stillness.
▼包房采用日式传统的和室风格,private rooms using the traditional Japanese style
▼包房墙体开设了大小不一、形状各异的窗洞,openings on the walls with different sizes and shape contribute to the indoor-outdoor conections
▼轴测图,axonometric
▼结构示意图,structure analysis
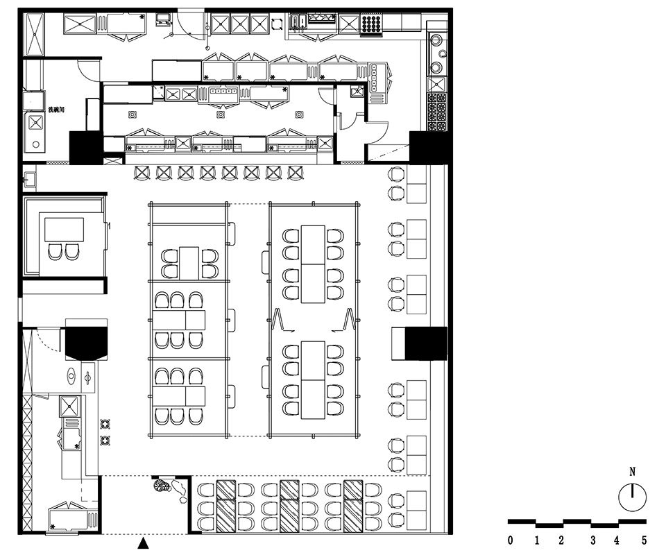
▼平面图,plan
项目名称:三上日料西湖文化广场店
设计公司:杭州上宅良营空间设计有限公司
设计者:汪春林
业务联系:13588295546
摄影:稳摄影
竣工时间:2018年5月26
项目地址:西湖文化广场18号银泰百货5楼5A-05
面积:200m_
施工单位:杭州融建建筑装饰工程有限公司
施工监理:王贵平
Name of the project: Shanshang Cuisine Restaurant
Design Firm: ShangzhaiLiangyin
Name of designer: Wang Chunlin
Photos: WEN Photography
Completion Date: May ,2018
Location of the project: On the fifth floor of Intime Retail Group in Hangzhou West Lake Culture Square
Floor space: 200m^2
Construction organization: Hangzhou Rongjian
Construction supervision: Wang Guiping
上宅良营空间设计
Hangzhou ShangzhaiLiangyin Interior Design Co.,Ltd
客服
消息
收藏
下载
最近























