查看完整案例


收藏

下载

翻译
As the COVID-19 pandemic spreads internationally, the first prototype of an open-source project to create plug-in intensive care units (ICU) from shipping container is built and installed at a hospital in Italy. CURA (acronym for “Connected Units for Respiratory Ailments” and also “Cure” in Latin) proposes a quick-to-deploy solution to expand emergency facilities and ease the pressure on healthcare systems treating patients infected by coronavirus. CURA strives to be as fast to be mounted as a hospital tent, but as safe as a regular isolation ward to work in, thanks to the comprehensive biocontainment equipment. The first CURA pod will start to admit patients on April 19th, 2020 at a new temporary hospital set up in Turin, northern Italy, one of the world’s hardest-hit regions by the pandemic.
CURA was designed and produced in four weeks as a result of the joined effort of an international task force. The group includes, among the others, designers at Carlo Ratti Associati with Italo Rota, engineers at Jacobs, and health technology company Philips for medical equipment supply. The first prototype in Turin has been developed with the financial sponsorship of the Pan European bank UniCredit. CURA is supported by the World Economic Forum (COVID-19 Action Platform and Cities, and Infrastructure and Urban Services Platform). The list of contributors feature Humanitas Research Hospital (Medical Engineering), Policlinico di Milano (Medical Consultancy), MIT Senseable City Lab (Research), Studio FM Milano (Visual Identity & Graphic Design), Squint/Opera (Digital Media), IEC Engineering (Fulvio Sabato - Safety and Certifications), Alex Neame of Team Rubicon UK (Logistics), Ivan Pavanello of Projema (MEP Engineering), Dr. Maurizio Lanfranco of Ospedale Cottolengo (Medical Consultancy), Gruppo Boero (Painting Products).
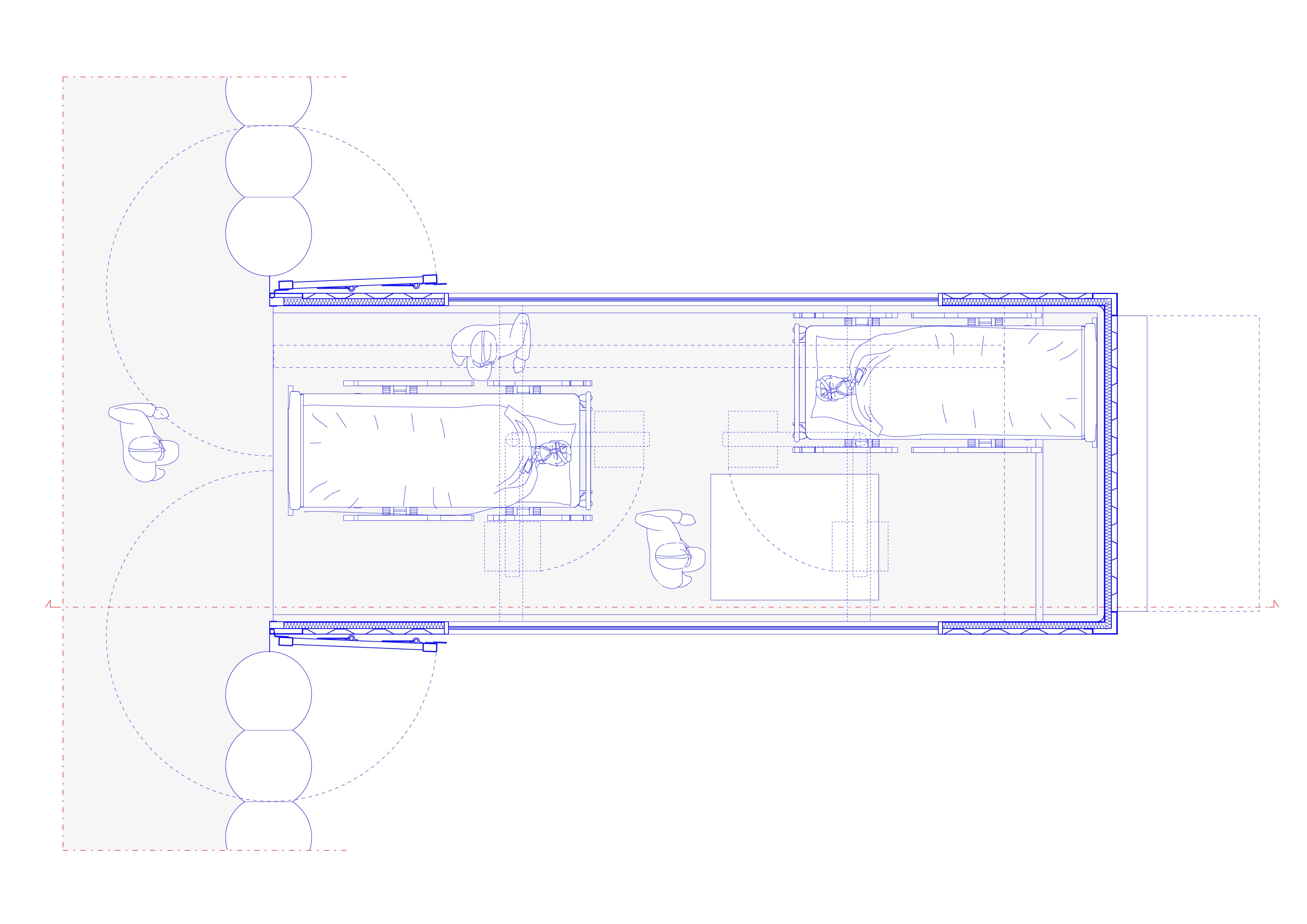
In the last weeks, hospitals in the countries most affected by COVID-19 have been struggling to increase their ICU capacity to admit a growing number of patients suffering from severe respiratory diseases, who are in need of ventilators. Regardless of how the pandemic situation would unfold, it is expected that more ICUs will be needed internationally in the next few months. CURA aims to improve the efficiency of the existing design solutions of field hospitals, producing a compact ICU pod that is quick-to-deploy and safe to work in for medical professionals.
Each unit is hosted in a 20-foot intermodal container, repurposed with biocontainment equipment. An extractor creates indoor negative pressure, complying with the standards of Airborne Infection Isolation Rooms AIIRs. Two glass windows carved on the opposite sides of the containers are meant for doctors to always get a sense of the status of patients both inside and outside the pods. Also, this would potentially allow external visitors to get closer to their relatives in a safer and more humane setting. Each pod works autonomously and can be promptly shipped to any location around the world, adapting to the needs of the local healthcare infrastructure.
The first CURA pod has been built and installed in the framework of the temporary hospital set up by top Italian health authorities in the former OGR industrial complex in the city of Turin (more info about the hospital below). CURA provides ICUs for the hospital, which has about 90 beds for patients affected by coronavirus. The pod contains all the medical equipment needed for two ICU patients, including ventilators and monitors as well as intravenous fluid stands and syringe drivers. The unit is connected to the rest of the hospital by an inflatable structure, which serves as storage and changing room. Potentially, the inflatable unit can be used to connect more than one pod to create multiple modular configurations, either in proximity to a hospital or as a self-standing field hospital.
CURA-Connected Units for Respiratory Ailments:
The first unit of CURA, sponsored by UniCredit, is built and installed at the OGR temporary hospital in Turin, Italy
List of people and organizations who have contributed to CURA: CRA-Carlo Ratti Associati with Italo Rota (Design and Innovation), Humanitas Research Hospital (Medical Engineering), Policlinico di Milano (Medical Consultancy), Jacobs (Alberto Riva - Master Planning, Design, Construction and Logistics Support Services), MIT Senseable City Lab (Research), Studio FM Milano (Visual Identity & Graphic Design), Squint/Opera (Digital Media), IEC Engineering (Fulvio Sabato - Safety and Certifications), Alex Neame of Team Rubicon UK (Logistics), Ivan Pavanello of Projema (MEP Engineering), Dr. Maurizio Lanfranco of Ospedale Cottolengo (Medical Consultancy), Philips (Medical Equipment Supply), Gruppo Boero (Painting Products)
With the support of the World Economic Forum: COVID-19 Action Platform, and Cities, Infrastructure and Urban Services Platform
Photo credits: Max Tomasinelli
ABOUT THE TEMPORARY HOSPITAL AT TURIN’S OGR
As COVID-19 hit Italy’s northern region of Piedmont, a temporary hospital has been set up in the OGR (Officine Grandi Riparazioni) complex in Turin. The project is the result of an agreement signed between the Piedmont Region, Prefettura di Torino, Comune di Torino, Società OGR–CRT, and Fondazione CRT. OGR is owned by the Fondazione CRT, which redeveloped the former industrial complex as a cultural and technological center a few years ago and has now made it available free of charge for the construction of the makeshift hospital. The conversion has been financed by Fondazione Compagnia di San Paolo. Construction started on April 6th, 2020 and was managed by the Genio Infrastrutture of the Italian Air Force and the Protezione Civile, with the coordination of the Crisis Unit of the Piedmont Region. The hospital extends over an area of about 8900 square meters and features 92 beds.
客服
消息
收藏
下载
最近
























