查看完整案例


收藏

下载

翻译
EN - The 18th century urban layout that shaped the parcel of land (built up before the war) on the corner of two streets intersecting at a sharp angle became the background for the designed construction. It was the express wish of the Metropolitan Monument Conservator Office that the envisaged structure on this important, prominent street corner should be as “light” and as much glazed as possible.
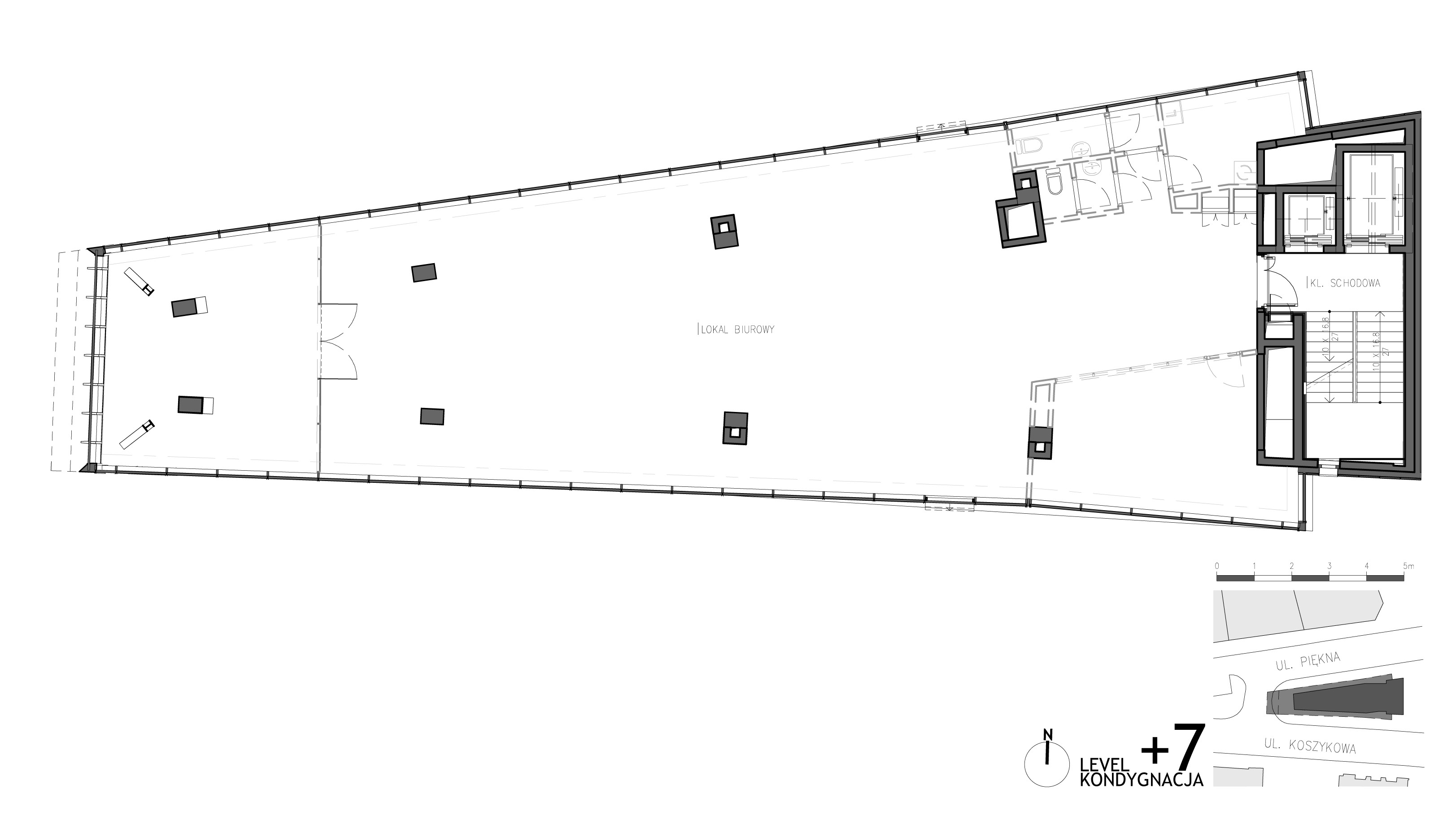
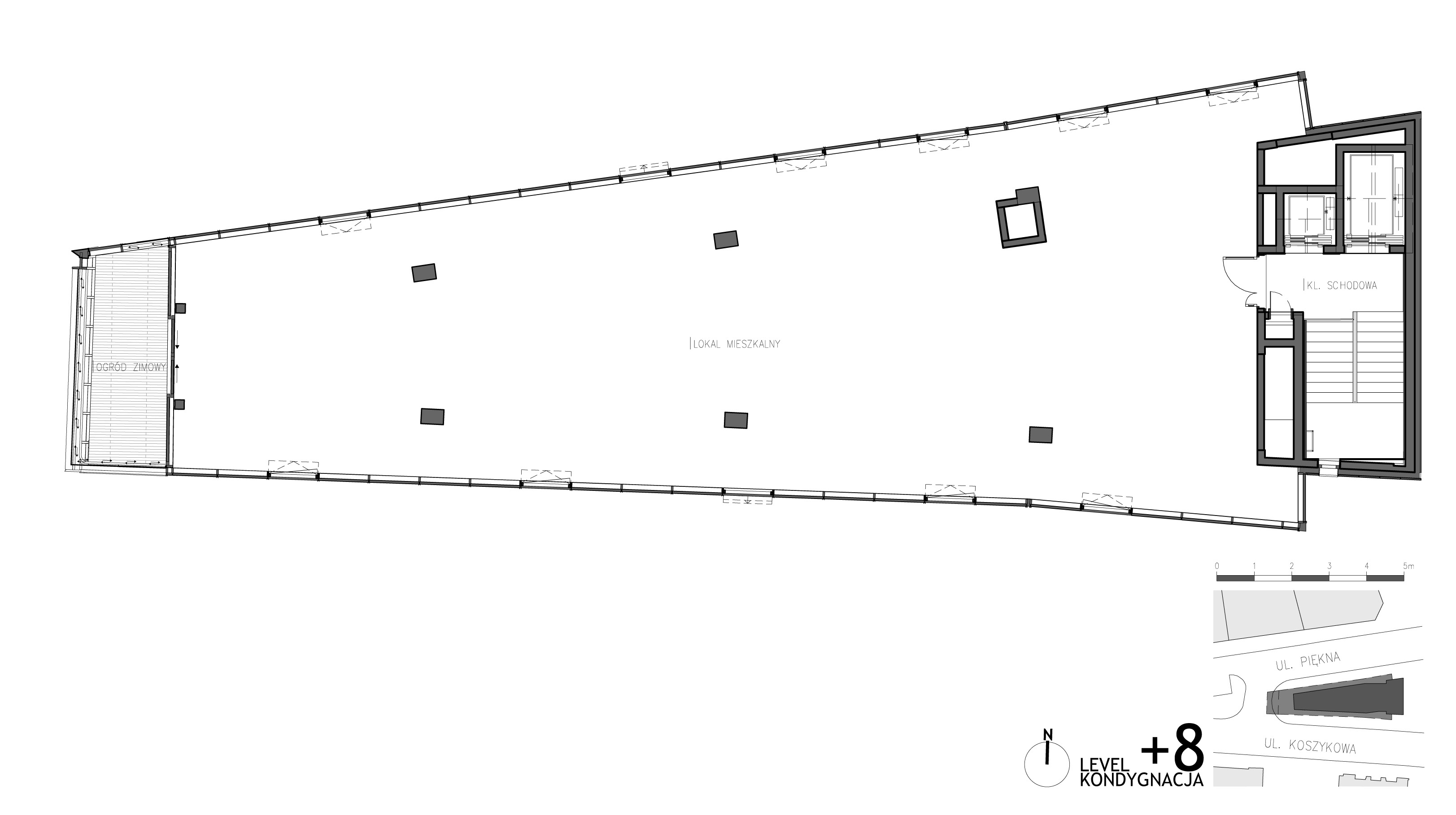
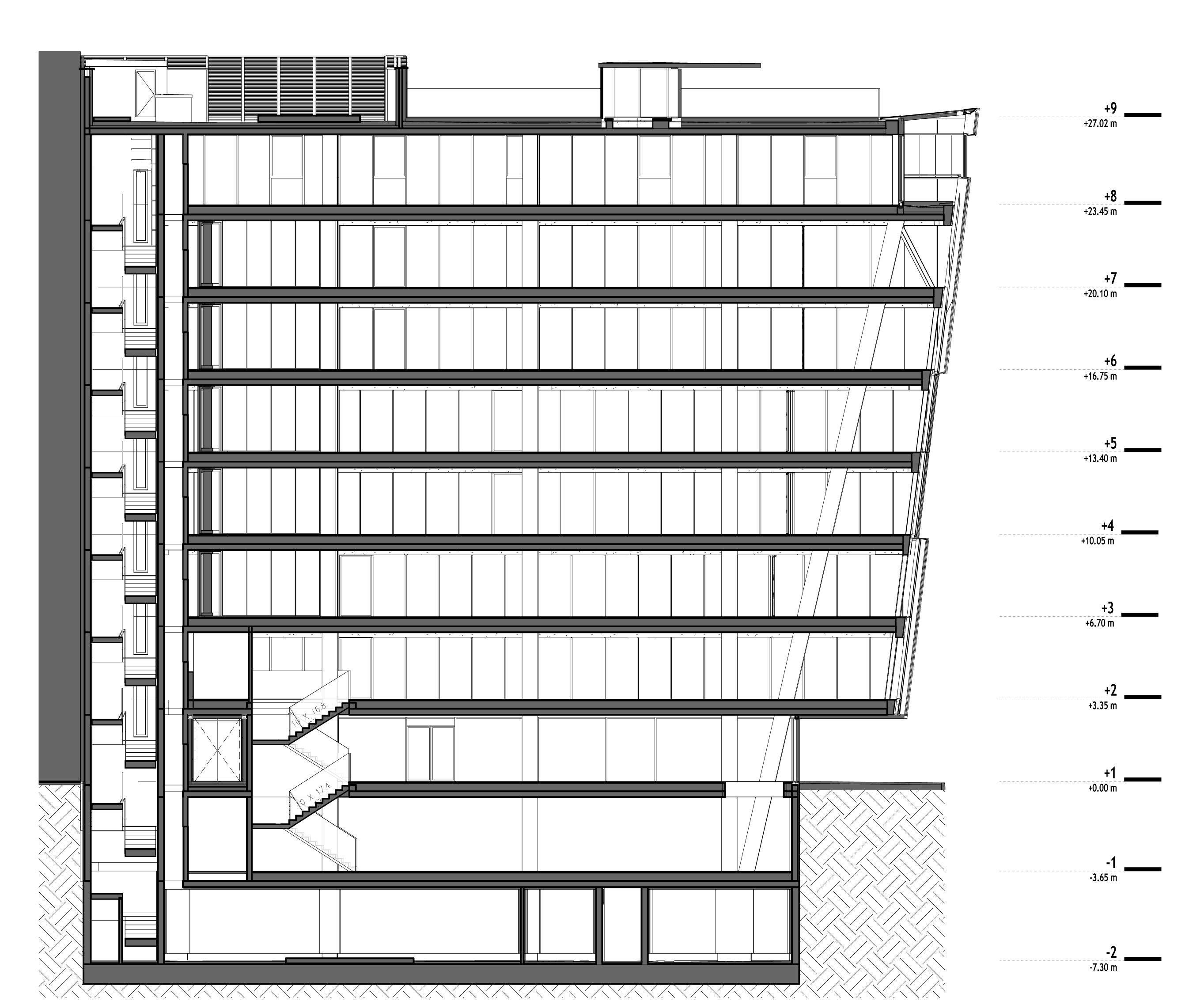
Local development conditions for this long and narrow plot envisioned a possibility of overhangs at the first floor level over two nearby streets – Piekna and Koszykowa – that would reiterate the bays and balconies of neighbouring tenement houses. Dense municipal utility infrastructure in the area meant that the ground floor outline had to be pushed further back from the street intersection and diagonal pillars as well as steel cables for supporting the cantilever ceilings needed to be installed there – all this in order to shift the load generated by the weight of the 7.5 m overhang at the front. The need to maintain vertical clearance, so as not to hinder traffic at the street intersection, caused the overhang to slant – at its base it measures 4.40 m.
The form of the building is characterized by an overhang just 2.55 m from the level of the pavement. The resulting structure naturally divides the building into two parts.
A monolithic, matt, dark, stone core of the staircase spans the building from the ground floor and reaches high above the rooftop. This particular element is closed and opaque in character, and provides a striking contrast with the second, compositionally different part of the building - a glazed overhang, divided into three segments at the 2nd and 3rd floor level, respectively. It forms a light, translucent element that on the one hand exposes the building’s interior and on the other reflects the surrounding tenement houses and the “Koszyki” Market Hall opposite. The design concept brings out the best both in the neighbouring buildings and original local urban layout.
Beza Interiors were commissioned to design interiors for The Nest – a modern coworking space.
What is the real mean of the coworking space, how do we work nowadays? We tend to spend more and more time at work, or actually the border between work and leisure is being blurred. You may fight with that or just adapt.
The Nest is a place for a modern self-confident person who values its time – may work only few hours a day or maybe the whole weekend. Our main goal was to create spaces that aren’t office like, they are more like club, where you should feel comfy and cosy.
The edge between work and leisure is being blurred – like in life, you may seat in cafe with your phone or work in your own office with a great view.
We were given a great piece of architecture designed by famous Polish architects G5 Architekci. We wanted to keep as much of the open plans as possible. On the other hand our goal was to create something warm and rich in therms of details and textures.
In contrast with very graphic and angular architecture of the building and based on design brief delivered by Futu design agency we have decided to create our own language of colours, patterns, textures and materials that would be very organic and vivid.
Our floor plans introduce round corners in order to balance the outer edgy shapes. As a humane being we are used to textures that are not plain, our skin does not have one particular colour, we have looked for materials that fit our colour pallet but on the other hand they should not be mono-coloured or boring.
Part of The Nest brand identity system are beautiful marbling textures made by Kasia Korzeniecka – we have decided to make wallpapers out of them to incorporate them in the whole design. They are always applied on the pillars that go through the whole building, they change it therms of patterns, but create a consistent space perception.
Our materials library included many custom details, like ceramic tiles, wallpapers, carpets recoloured according to our needs. We have used simple materials like coloured MDF combined with real veneer.
We have designed two systems of furniture especially for the Nest. One of them is dedicated to the open space and it consists of tables and sofas, that can be combined together to make comfy islands on the open area. It also includes special elevated places for plants or other items for exposition. The second system is dedicated strictly for the office areas, it consist of desk, cabinets and two sided bookstands. It’s far more traditional but at some point you also need this at work. Our goal was to give the users a spectrum of workplaces places to choose.
Each floor introduces a slightly different layout and approach. Reception is connected with a showroom, it’s not a traditional reception desk, rather a table were you can seat as partner. The First floor has a coffee bar and a big lounge with hot desk places. The Second floor is a child-friendly area: it has a day care room where you can leave your child with a qualified nanny, and work for a while. The Third floor is a mix of open space and office space. The Fourth floor is dedicated to events. The Fifth floor is divided into office spaces. The Six floor also has great offices and amazing conference room at the very top of the building.
PL - Zostaliśmy poproszeni o stworzenie wnętrz dla „The Nest” – nowoczesnego co-workingu. Nasz projekt zaczęliśmy od postawienia przed sobą kilku pytań: jakie jest dziś znaczenie słowa „co-working”, jak dziś pracujemy? Okazało się, że coraz więcej czasu spędzamy właśnie w pracy, lub granica między nią i życiem prywatnym się zaciera. Można z tym walczyć lub wypracować system pracy, który zaadaptuje się do tych potrzeb.
„The Nest” to miejsce dla nowoczesnej, pewnej siebie osoby, która przede wszystkim ceni swój czas, niezależnie od tego czy pracuje kilka godzin dziennie czy też cały weekend. Naszym celem było stworzenie przestrzeni, która nie przypomina typowego biura lecz przytulny i wygodny klub. Ponieważ granica między byciem w pracy, a czasem wolnym coraz bardziej się zaciera stworzyliśmy zróżnicowane miejsca do pracy: możesz usiąść w kawiarni i pracować z telefonem w ręku bądź też skorzystać z wygodnego biura ze wspaniałym widokiem.
Budynek został zaprojektowany przez znaną warszawską pracownię G5 Architekci i stwarzał doskonałe możliwości architektoniczne. Zależało nam na zachowaniu otwartego planu w każdym miejscu, w którym będzie to możliwe. Naszym kolejnym celem było stworzenie przytulnej przestrzeni z wykorzystaniem bogatych tekstur. W kontraście do dość regularnej i prostokątnej fasady budynku i na podstawie koncepcji marki opracowanej przez agencję Futu postawiliśmy na organiczny, odrębny język kolorów, form, wzorów i materiałów.
Aby zniwelować liczne kąty i prostopadłe przestrzenie zdecydowaliśmy się na zaokrąglone zakończenia ścian i mebli. Jako ludzie jesteśmy przyzwyczajeni do tekstur i wzorów, które nie są równomierne – zupełnie jak ludzka skóra, która nie jest tylko w jednym kolorze. Dlatego też szukaliśmy materiałów, które nie są utrzymane tylko w jednym kolorze i nie są nudne.
Częścią systemu identyfikacji wizualnej The Nest są piękne marblingi wykonane przez Kasię Korzeniecką – zdecydowaliśmy się wykorzystać ten wzór na tapetach, które pokryły wewnętrzne filary ciągnące się przez wszystkie kondygnacje budynku. Choć na różnych piętrach tapeta zmienia kolor, poprzez swój wzór tworzy spójną całość.
Jeśli chodzi o materiały, zdecydowaliśmy się na rozwiązania customizowane: ręcznie robione płytki, tapety, wykładziny zrekolorowane na nasze zamówienie. Udało nam się połączyć proste materiały takie jak MDF z prawdziwą okleiną.
Z myślą o wnętrzach „The Nest” stworzyliśmy dwa systemy meblowe: jeden przeznaczony wspólnej przestrzeni coworkingowej i drugi do biur. Ten pierwszy składa się z systemu biurek i kanap, stanowiących całość. Można zestawiać je w wygodne meblowe wyspy. Dodatkowo przewidziano przestrzenie ekspozycje oraz miejsca na ekspozycję kwiatów. Drugi system jest bardziej tradycyjny: składa się z biurek, szafek i regałów na książki i przeznaczony jest ściśle do do biur. Dzięki takiemu podejściu, użytkownik „The Nest” ma szerokie spectrum wyboru, w jakim miejscu chce pracować: od kanapy, aż po wygodne biurko.
Każde z pięter ma trochę inny plan i reprezentuje inne podejście. Recepcja połączona jest z showroomem, a okrągły stół nie wygląda jak tradycyjna lada recepcyjna. Na pierwszym piętrze znajduje się kawiarnia ze sferą wypoczynkową oraz hot-deskami. Drugie piętro to miejsce ze strefą child-friendly z wykwalifikowaną nianią, której można powierzyć opiekę nad dzieckiem. Trzecie piętro to połączenie openspace’u i biur. Czwarte piętro przeznaczone jest na eventy, na piątym znajdują się biura. Na szóstym piętrze budynku również znajdują się biura i sala konferencyjna z zapierającym dech w piersiach widokiem.
Podczas pracy nad tym projektem spotkaliśmy na swojej drodze wspaniałych partnerów i współpracowników, był to wielki grupowy wysiłek. Stworzyliśmy kompeksowe rozwiązania, biorąc pod uwagę zarówno ogólne założenia jak i detale.
Pracujemy z pasją, a każdy z naszych projektów to oddzielna historia i wyzwanie.
客服
消息
收藏
下载
最近



































































